The Keenor Estate Agent says ..
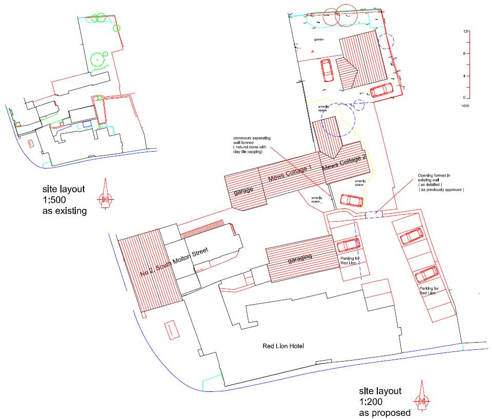
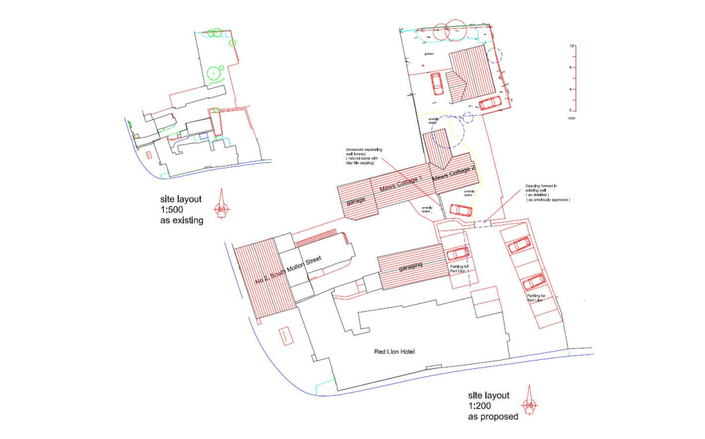
An exciting opportunity to purchase a TWO PROPERTY SITE in the centre of Chulmleigh with planning permission to create a DETACHED THREE BEDROOM HOUSE and to convert a TWO BEDROOM MEWS STYLE COTTAGE both with OFF-ROAD PARKING and AMENITY SPACE.
Property Oracle says ..
This property in Chulmleigh, North Devon, presents itself as a significant development opportunity rather than a ready-to-move-in home. The existing structure, shown in photographs, is a dilapidated building requiring extensive renovations. The property’s location in Chulmleigh offers proximity to local schools (Chulmleigh Community College and Chulmleigh Primary School, both within a short distance) and amenities, and is situated within a short distance of railway stations at Eggesford, Kings Nympton, and Lapford. The accompanying architectural plans detail proposals for the development of a three-bedroom house and a two-bedroom mews-style cottage on the site. The land itself provides reasonable space for this development, although not extensive. The listing price of £150,000 reflects the substantial work needed, which could potentially increase the property’s eventual value once the renovation is complete. However, prospective buyers must factor in the substantial costs associated with the complete rebuild and renovation works to create two separate dwelling units. It would be crucial for potential buyers to secure comprehensive building cost estimates before committing to purchase.
Therefore, we give this property 5 / 10. *Disclaimer: This is our option and does constitute a recommendation or financial advice. Do your own research. *
- Price
- 6
- Condition
- 4
- Location
- 7
- Land
- 3
- Bedrooms
- 0
- Bathrooms
- 0
- Sqft (est)
- 1,259.38
The heatmap indicates the level of crime in the area. The color of the heatmap indicates the crime severity and recency.
Metrics Year-on-Year
- Average area value
- 661,000.00 £Increased by 29.29 %
- Est sale value
- 682,583.96 £Increased by 47.28 %
- Average area rental value
- 2,410.00 £/moIncreased by 120.90 %
- Est letting value
- 1,259.38 £/mo
- Est rental Yield
- 4.38 %Increased by 71.09 %
- Crime Rate
- 160.00 %Unchanged by 0.00 %
Agent Activity
The Keenor Estate Agent created the listing.
Nearby Schools
| Name | Type | Ofsted | Distance |
|---|---|---|---|
| Chulmleigh Community College | Academy Converter | Good | 0.30 KM |
| Chulmleigh Primary School | Academy Converter | Requires improvement | 0.39 KM |
| Kings Nympton Community Primary School | Foundation School | Good | 4.93 KM |
| Lapford Community Primary School | Academy Converter | Good | 9.59 KM |
Images
Nearby Streets
| Name | Average Price | Average Sqft | Distance |
|---|---|---|---|
| Crossways | £ 0 | 0 | 0.00 KM |
Nearby Transport
| Name | NLC | TLC | Distance |
|---|---|---|---|
| Eggesford | 5822 | EGG | 2.97 KM |
| Kings Nympton | 5823 | KGN | 4.66 KM |
| Lapford | 5824 | LAP | 9.08 KM |
Nearby Listings
| Address | Price | Type | Score | Distance |
|---|---|---|---|---|
| CHULMLEIGH | £ 150,000 | BUY | 5 / 10 | 0.00 KM |
| CHULMLEIGH | £ 210,000 | BUY | Unknown | 0.07 KM |
| CHULMLEIGH | £ 300,000 | BUY | 7 / 10 | 0.07 KM |
| CHULMLEIGH | £ 180,000 | BUY | Unknown | 0.07 KM |
| South Molton Street, Chulmleigh, Devon, EX18 | £ 125,000 | BUY | Unknown | 0.08 KM |
Nearby Properties
| Address | Price | Distance |
|---|---|---|
| Rose Cottage | £ 170,000 | 0.00 KM |
| Higher Ivyside | £ 152,000 | 0.00 KM |
| Ashleigh Cottage | £ 147,500 | 0.00 KM |
| Abigails | £ 240,000 | 0.00 KM |
| Pecks Meadow | £ 392,000 | 0.00 KM |