Frogmore Lane, Horndean
By Archbold & Edwards
£ 385,000
Reviews
3 out of 5 stars
Archbold & Edwards says ..
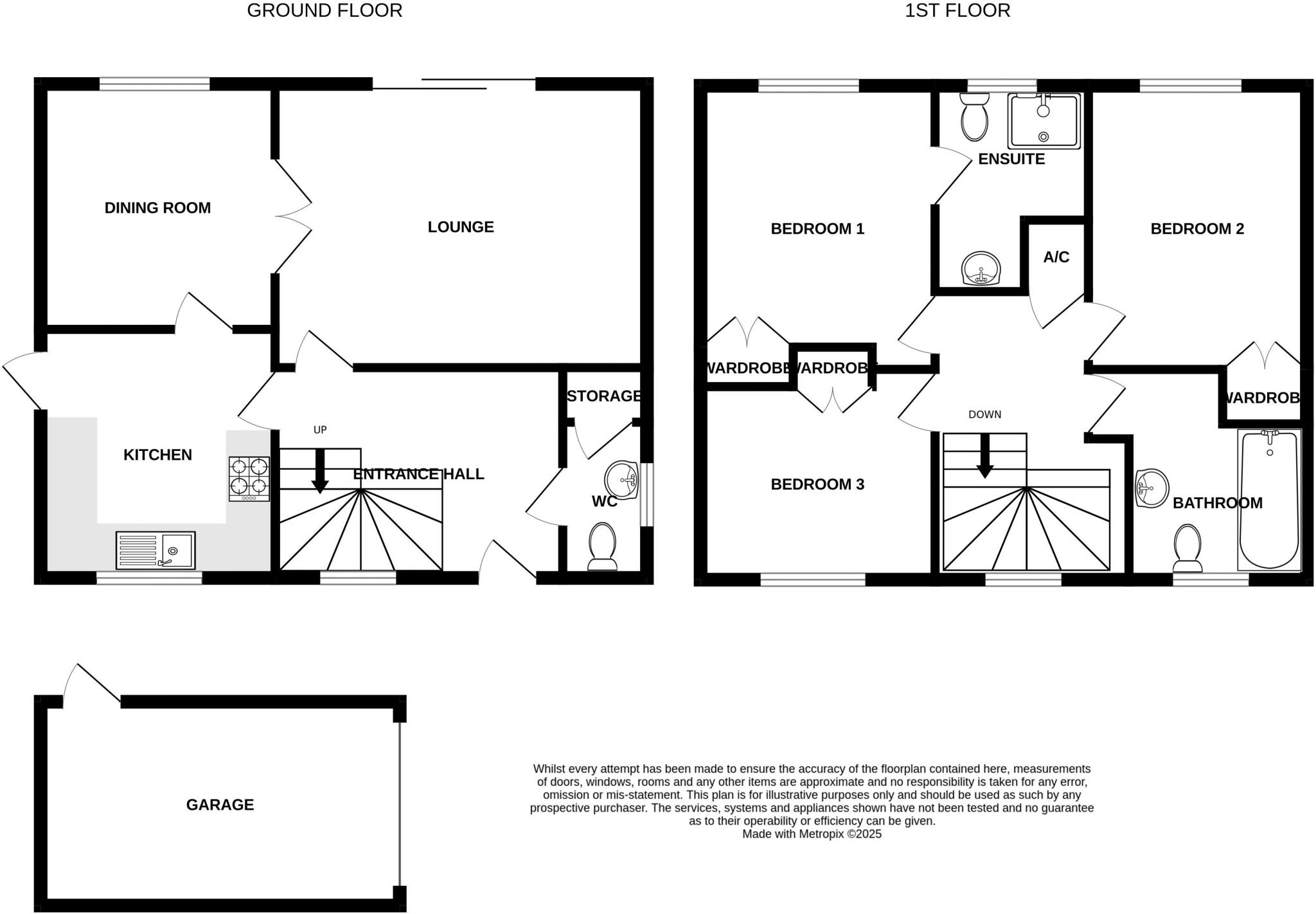
THREE BEDROOM DETACHED HOME IN HORNDEAN WITHIN WALKING DISTANCE OF LOCAL SCHOOLS OFFERED WITH NO CHAIN AHEAD. A three bedroom detached house located in Horndean near Lovedean and Waterlooville. This property benefits from double glazing, gas central heating system, garage and driveway parking for...
Property Oracle says ..
This is a detached property located on Frogmore Lane, Horndean. It features three bedrooms and two bathrooms, with a total square footage of 1,140. The property includes a garden, garage, and off-street parking. While generally well-maintained, some areas like the kitchen and bathrooms could benefit from modernization. The location is favorable, with proximity to schools and amenities, and transportation links are within a reasonable distance. The asking price of £385,000 appears reasonable given the property’s size, features, and location, especially when considering the price per square foot compared to the area average.
Therefore, we give this property 6 / 10. *Disclaimer: This is our option and does constitute a recommendation or financial advice. Do your own research. *
- Price
- 7
- Condition
- 7
- Location
- 7
- Land
- 6
- Bedrooms
- 3
- Bathrooms
- 2
- Sqft (est)
- 1,140.00
The heatmap indicates the level of crime in the area. The color of the heatmap indicates the crime severity and recency.
Metrics Year-on-Year
- Average area value
- 339,998.00 £Decreased by 8.55 %
- Est sale value
- 414,960.00 £Increased by 0.28 %
- Average area rental value
- 1,500.00 £/moDecreased by 4.28 %
- Est letting value
- 1,140.00 £/moUnchanged by 0.00 %
- Est rental Yield
- 5.29 %Increased by 4.55 %
- Crime Rate
- 4.00 %Unchanged by 0.00 %
Agent Activity
Archbold & Edwards created the listing.
Nearby Schools
| Name | Type | Ofsted | Distance |
|---|---|---|---|
| Branches Children'S Centre | Children's Centre | 0.92 KM | |
| Horndean Technology College | Community School | Good | 1.11 KM |
| Woodcroft Primary | Community School | Good | 1.12 KM |
| Kingscourt School | Other Independent School | 1.35 KM | |
| Horndean Infant School | Community School | Outstanding | 1.70 KM |
Images
Nearby Streets
| Name | Average Price | Average Sqft | Distance |
|---|---|---|---|
| The Spinney | £ 334,000 | 0 | 0.00 KM |
| Wilton Drive | £ 341,000 | 0 | 0.00 KM |
| Tilford Road | £ 0 | 0 | 0.00 KM |
| Westbrooke Close | £ 0 | 0 | 0.00 KM |
| Sandpiper Close | £ 343,000 | 0 | 0.00 KM |
Nearby Transport
| Name | NLC | TLC | Distance |
|---|---|---|---|
| Bedhampton | 5538 | BDH | 6.64 KM |
| Rowlands Castle | 5658 | RLN | 6.91 KM |
| Havant | 5532 | HAV | 7.31 KM |
| Warblington | 5264 | WBL | 8.37 KM |
| Cosham | 5896 | CSA | 9.34 KM |
Nearby Listings
| Address | Price | Type | Score | Distance |
|---|---|---|---|---|
| Frogmore Lane, Horndean | £ 385,000 | BUY | 6 / 10 | 0.00 KM |
| Frogmore Lane, Horndean | £ 500,000 | BUY | 6 / 10 | 0.04 KM |
| Frogmore Lane, Lovedean | £ 575,000 | BUY | 6 / 10 | 0.05 KM |
| Frogmore Lane, Lovedean | £ 375,000 | BUY | 7 / 10 | 0.05 KM |
| The Coppice, WATERLOOVILLE, Hampshire, PO8 | £ 350,000 | BUY | 7 / 10 | 0.11 KM |
Nearby Properties
| Address | Price | Distance |
|---|---|---|
| 80a Frogmore Lane | £ 215,000 | 0.04 KM |
| 79 Frogmore Lane | £ 272,500 | 0.04 KM |
| 85 Frogmore Lane | £ 375,000 | 0.05 KM |
| 75 Frogmore Lane | £ 290,000 | 0.05 KM |
| 82 Frogmore Lane | £ 400,000 | 0.05 KM |