Alnwickhill Road, Edinburgh, Midlothian
RE

Alnwickhill Road, Edinburgh, Midlothian

By Rettie & Co

£ 645,000

Reviews

3 out of 5 stars

Rettie & Co says ..

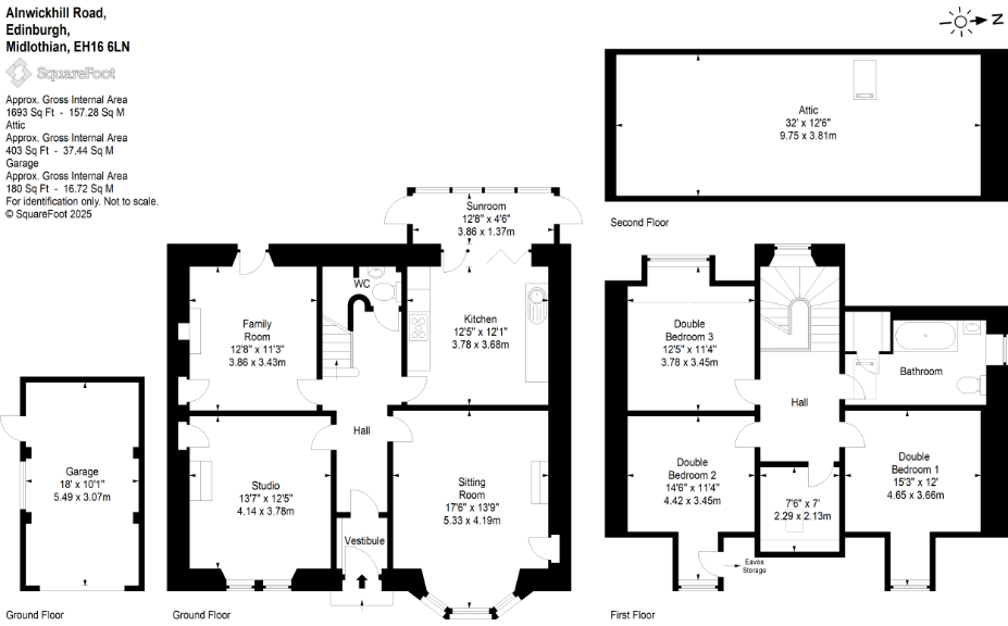
26 Alnwickhill Road is a corner plot, semi-detached family home nestled on a peaceful street in the desirable Alnwickhill area of Edinburgh. This beautifully presented family home offers generous living space across two floors, and is in excellent condition throughout. One of the standout feature...

Property Oracle says ..

This property is a traditional semi-detached house located in the Liberton/Gilmerton area of Edinburgh. The location benefits from being within reasonable distance of several train stations, providing convenient access to the city center. While the provided information lacks details on nearby schools and shops, the property itself appears well-maintained and recently renovated, showing a modern kitchen and updated bathrooms. The house includes a sizable garden, adding to its appeal. The list price is significantly higher than the average price for the area, but this is likely justified by the size of the plot, the apparent quality of the renovation, and the larger-than-average garden.

Therefore, we give this property 7 / 10. *Disclaimer: This is our option and does constitute a recommendation or financial advice. Do your own research. *

Price
6
Condition
9
Location
7
Land
8
Bedrooms
3
Bathrooms
2
Lot (est)
1,693.00

The heatmap indicates the level of crime in the area. The color of the heatmap indicates the crime severity and recency.

Metrics Year-on-Year

Average area value
300,499.00 £
Decreased by 1.04 %
from 303,666.00 £
Average area rental value
1,368.00 £/mo
Decreased by 2.29 %
from 1,400.00 £/mo
Est rental Yield
5.46 %
Decreased by 1.27 %
from 5.53 %
Crime Rate
0.00 %
from 0.00 %

Agent Activity

  • Rettie & Co created the listing.

Nearby Schools

NameTypeOfstedDistance
Merchiston Castle SchoolOffshore Schools9.42 KM

Images

Picture No. 02 Picture No. 13 Picture No. 03 Picture No. 04 Picture No. 06 Picture No. 24 Picture No. 07 Picture No. 08 Picture No. 09 Picture No. 10 Picture No. 11 Picture No. 12 Picture No. 14 Picture No. 15 Picture No. 16 Picture No. 17 Picture No. 18 Picture No. 19 Picture No. 20 Picture No. 21 Picture No. 22 Picture No. 23 Picture No. 25

Nearby Streets

NameAverage PriceAverage SqftDistance
Kedslie Place £ 000.00 KM
Beauchamp Road £ 525,00000.00 KM
Wolrige Road £ 000.00 KM
Thorters Place £ 310,00000.00 KM
Liberton Road £ 310,00000.00 KM

Nearby Transport

NameNLCTLCDistance
Edinburgh9328EDB4.78 KM
Haymarket9419HYM6.55 KM
Brunstane8807BSU8.10 KM
Slateford9236SLA8.41 KM
Newcraighall8808NEW8.84 KM

Nearby Listings

AddressPriceTypeScoreDistance
Alnwickhill Road, Edinburgh, Midlothian £ 645,000BUY7 / 100.00 KM
Leadervale Terrace, Edinburgh, EH16 £ 380,000BUYUnknown0.14 KM
47 Alnwickhill Road, Liberton, Edinburgh, EH16 6LP £ 585,000BUY6 / 100.17 KM
16 Kedslie Place, Liberton, Edinburgh, EH16 6NU £ 600,000BUY8 / 100.19 KM
20 Kedslie Place, Liberton, Edinburgh, EH16 6NU £ 415,000BUY5 / 100.21 KM