Brook Road, Merstham, Redhill, Surrey, RH1
By Choices
£ 625,000
Reviews
3 out of 5 stars
Choices says ..
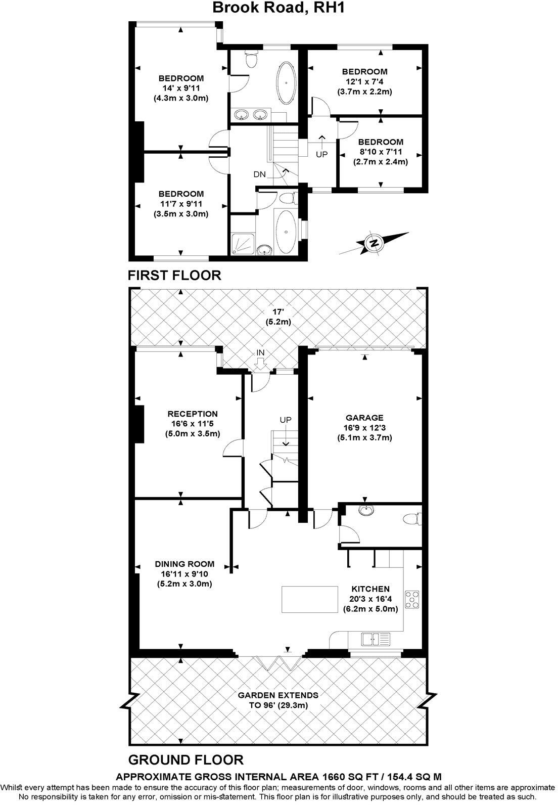
Extended 4-Bed Family Home | Open-Plan Living | Prime Merstham Location Nestled in a sought-after residential road close to the heart of Merstham village, this beautifully extended and much-improved four-bedroom semi-detached family home offers spacious, stylish and versatile accommoda...
Property Oracle says ..
This semi-detached property on Brook Road in Merstham offers a spacious and well-presented family home. The property benefits from a modern kitchen and bathrooms, a decent-sized garden, and off-street parking with a garage. While some rooms may benefit from cosmetic updates, the property is generally in good condition and offers excellent value for money. The property’s convenient location, close to local amenities, schools, and transportation, makes it an ideal choice for families and commuters alike.
Therefore, we give this property 6 / 10. *Disclaimer: This is our option and does constitute a recommendation or financial advice. Do your own research. *
- Price
- 7
- Condition
- 7
- Location
- 7
- Land
- 6
- Bedrooms
- 4
- Bathrooms
- 2
- Sqft (est)
- 1,661.95
The heatmap indicates the level of crime in the area. The color of the heatmap indicates the crime severity and recency.
Metrics Year-on-Year
- Average area value
- 569,604.00 £Increased by 7.23 %
- Est sale value
- 842,608.65 £Decreased by 9.63 %
- Average area rental value
- 1,685.00 £/moIncreased by 1.08 %
- Est letting value
- 1,661.95 £/moUnchanged by 0.00 %
- Est rental Yield
- 3.55 %Decreased by 5.84 %
- Crime Rate
- 7.00 %Unchanged by 0.00 %
Agent Activity
Choices created the listing.
Nearby Schools
| Name | Type | Ofsted | Distance |
|---|---|---|---|
| Merstham Primary School | Academy Converter | 0.47 KM | |
| Merstham Park School | Free Schools | 0.96 KM | |
| Unified Academy | Academy Special Sponsor Led | Special Measures | 0.96 KM |
| The Red Oak Sure Start Children'S Centre | Children's Centre | 1.03 KM | |
| Furzefield Primary School | Community School | Good | 1.07 KM |
Images
Nearby Streets
| Name | Average Price | Average Sqft | Distance |
|---|---|---|---|
| Ashcombe Road | £ 0 | 0 | 0.00 KM |
| All Saints Gardens | £ 0 | 0 | 0.00 KM |
| Bourne Road | £ 0 | 0 | 0.00 KM |
| Orpin Road | £ 139,000 | 0 | 0.00 KM |
Nearby Transport
| Name | NLC | TLC | Distance |
|---|---|---|---|
| Merstham | 5475 | MHM | 0.22 KM |
| Redhill | 5478 | RDH | 3.24 KM |
| Nutfield | 5476 | NUF | 4.44 KM |
| Earlswood (Surrey) | 5414 | ELD | 4.73 KM |
| Chipstead | 5353 | CHP | 5.61 KM |
Nearby Listings
| Address | Price | Type | Score | Distance |
|---|---|---|---|---|
| Brook Road, Merstham, Redhill, Surrey, RH1 | £ 625,000 | BUY | 6 / 10 | 0.00 KM |
| Brook Road, Merstham | £ 530,000 | BUY | 7 / 10 | 0.06 KM |
| Brook Road, Merstham | £ 500,000 | BUY | 7 / 10 | 0.06 KM |
| Brook Road, Merstham, Redhill | £ 575,000 | BUY | 7 / 10 | 0.12 KM |
| Brook Road, Merstham, Redhill | £ 695,000 | BUY | 7 / 10 | 0.12 KM |
Nearby Properties
| Address | Price | Distance |
|---|---|---|
| 10 Malmstone Avenue | £ 355,000 | 0.12 KM |
| 4 Malmstone Avenue | £ 185,000 | 0.12 KM |
| 8 Malmstone Avenue | £ 335,500 | 0.12 KM |
| 68 Brook Road | £ 240,000 | 0.12 KM |
| 74 Brook Road | £ 345,000 | 0.12 KM |