a & b Offerton Lane, Stockport
Edward Mellor Ltd logo

a & b Offerton Lane, Stockport

By Edward Mellor Ltd

£ 160,000

Reviews

2 out of 5 stars

Edward Mellor Ltd says ..

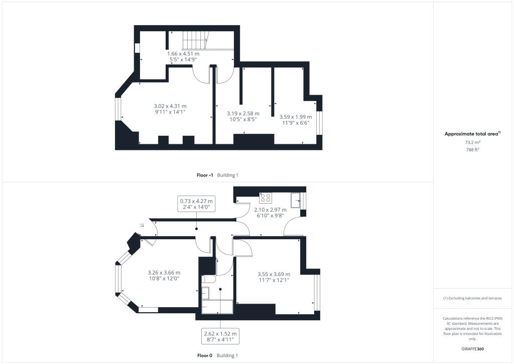
TO BE SOLD BY ONLINE AUCTION ON 12TH NOVEMBER 2025 UNLESS SOLD PRIOR UNDER AUCTION TERMS.76A & 76B Offerton Lane, Stockport, SK2 5BS****VIRTUAL TOUR AVAILABLE****A fantastic opportunity for investors, developers, or those looking for a project with long-term potential....

Property Oracle says ..

This end-of-terrace property on Offerton Lane, Stockport, presents a renovation opportunity. While the location offers proximity to schools and transport links, the property itself requires considerable work to bring it up to modern standards. The garden and outbuilding also need attention. The asking price of £160,000 reflects the condition and provides scope for improvement, making it an attractive prospect for buyers looking to add value.

Therefore, we give this property 5 / 10. *Disclaimer: This is our option and does constitute a recommendation or financial advice. Do your own research. *

Price
7
Condition
3
Location
6
Land
6
Bedrooms
2
Bathrooms
2
Sqft (est)
388.58

The heatmap indicates the level of crime in the area. The color of the heatmap indicates the crime severity and recency.

Metrics Year-on-Year

Average area value
387,843.00 £
Increased by 1.47 %
from 382,238.00 £
Est sale value
150,380.46 £
Increased by 24.84 %
from 120,459.80 £
Average area rental value
1,806.00 £/mo
Increased by 16.22 %
from 1,554.00 £/mo
Est letting value
388.58 £/mo
Unchanged by 0.00 %
from 388.58 £/mo
Est rental Yield
5.59 %
Increased by 14.55 %
from 4.88 %
Crime Rate
0.00 %
from 0.00 %

Agent Activity

  • Edward Mellor Ltd created the listing.

Nearby Schools

NameTypeOfstedDistance
Banks Lane Junior SchoolCommunity SchoolGood0.94 KM
Banks Lane Infant SchoolCommunity SchoolOutstanding0.94 KM
Stockport SchoolCommunity SchoolGood1.39 KM
St Philip'S Catholic Primary SchoolVoluntary Aided SchoolGood1.49 KM
Aquinas CollegeFurther EducationGood1.51 KM

Images

32022_P2391_IMG_00_0000_max_656x437.jpeg CAM05098G0-PR0014-STILL004.jpg CAM05098G0-PR0014-STILL006.jpg CAM05098G0-PR0014-STILL010.jpg CAM05098G0-PR0014-BUILD01-FLOOR00.jpg CAM05098G0-PR0014-BUILD01.jpg CAM05098G0-PR0014-BUILD02-FLOOR00.jpg CAM05098G0-PR0014-ALL_BUILD.jpg CAM05098G0-PR0014-STILL001.jpg CAM05098G0-PR0014-STILL003.jpg CAM05098G0-PR0014-STILL002.jpg CAM05098G0-PR0014-BUILD03-FLOOR00.jpg CAM05098G0-PR0014-STILL005.jpg CAM05098G0-PR0014-STILL007.jpg

Nearby Streets

NameAverage PriceAverage SqftDistance
Williams Avenue £ 325,00000.00 KM
Salcombe Road £ 000.00 KM
St. Simons Close £ 000.00 KM
Edgar Lane £ 000.00 KM
Garth Road £ 270,00000.00 KM

Nearby Transport

NameNLCTLCDistance
Woodsmoor2773WSR2.03 KM
Davenport2770DVN2.52 KM
Hazel Grove2768HAZ3.05 KM
Stockport2771SPT3.29 KM
Brinnington2603BNT3.30 KM

Nearby Listings

AddressPriceTypeScoreDistance
a & b Offerton Lane, Stockport £ 160,000BUY5 / 100.00 KM
Woodlands Drive, Stockport £ 500,000BUYUnknown0.09 KM
Williams Avenue, Offerton, Stockport, SK2 £ 120,000BUY7 / 100.10 KM
Offerton Lane, Stockport, SK2 £ 200,000BUY5 / 100.12 KM
Hempshaw Lane, Offerton, Stockport, SK2 5TP £ 250,000BUY6 / 100.13 KM

Nearby Properties

AddressPriceDistance
31 Sydney Street £ 177,5000.08 KM
37 Sydney Street £ 38,0000.08 KM
13 Sydney Street £ 160,0000.08 KM
15 Sydney Street £ 46,2500.08 KM
27 Sydney Street £ 185,0000.08 KM