Hudson Moody says ..
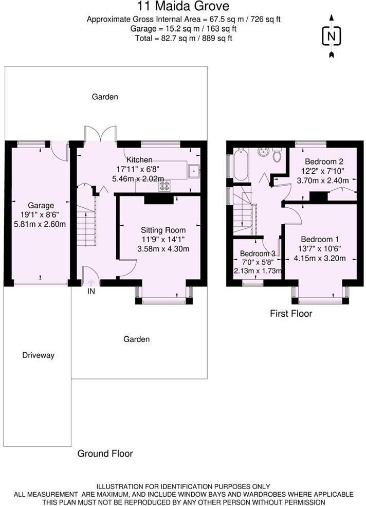
A beautifully maintained three-bedroom semi-detached home, ideally located in the ever-popular Fishergate area, offering charm, comfort, and modern upgrades throughout.
Property Oracle says ..
Therefore, we give this property 7 / 10. *Disclaimer: This is our option and does constitute a recommendation or financial advice. Do your own research. *
- Price
- 7
- Condition
- 8
- Location
- 8
- Land
- 7
- Bedrooms
- 3
- Bathrooms
- 1
- Sqft (est)
- 726.67
The heatmap indicates the level of crime in the area. The color of the heatmap indicates the crime severity and recency.
Metrics Year-on-Year
- Average area value
- 391,421.00 £Increased by 20.41 %
- Est sale value
- 290,668.00 £Decreased by 8.05 %
- Average area rental value
- 1,243.00 £/moDecreased by 1.97 %
- Est letting value
- 726.67 £/moUnchanged by 0.00 %
- Est rental Yield
- 3.81 %Decreased by 18.59 %
- Crime Rate
- 2.00 %Unchanged by 0.00 %
from 325,064.00 £
from 316,101.45 £
from 1,268.00 £/mo
from 726.67 £/mo
from 4.68 %
from 2.00 %
Agent Activity
Hudson Moody marked this listing as sold.
Hudson Moody created the listing.
Nearby Schools
| Name | Type | Ofsted | Distance |
|---|---|---|---|
| St George'S Catholic Primary School - A Catholic Voluntary Academy | Academy Converter | 0.31 KM | |
| Fishergate Primary School | Community School | Good | 0.48 KM |
| Danesgate Community | Pupil Referral Unit | Good | 0.70 KM |
| York Steiner School | Other Independent School | Inadequate | 0.82 KM |
| St Lawrence'S Children'S Centre | Children's Centre | 0.94 KM |
Images
Nearby Streets
| Name | Average Price | Average Sqft | Distance |
|---|---|---|---|
| Dower Court | £ 0 | 0 | 0.00 KM |
| St Ann's Court | £ 0 | 0 | 0.00 KM |
| Garden Court | £ 0 | 0 | 0.00 KM |
| Lawrence Court | £ 0 | 0 | 0.00 KM |
| Lawrence Lane | £ 0 | 0 | 0.00 KM |
Nearby Transport
| Name | NLC | TLC | Distance |
|---|---|---|---|
| York | 8263 | YRK | 2.49 KM |
| Poppleton | 8254 | POP | 8.92 KM |
Nearby Listings
| Address | Price | Type | Score | Distance |
|---|---|---|---|---|
| Maida Grove, York, YO10 4EU | £ 350,000 | BUY | 7 / 10 | 0.00 KM |
| Edgeware Road, Fulford | £ 350,000 | BUY | 6 / 10 | 0.12 KM |
| Flat 2, 66 Cemetery Road, York, North Yorkshire, YO10 | £ 220,000 | BUY | 5 / 10 | 0.12 KM |
| Cemetery Road, York | £ 325,000 | BUY | 6 / 10 | 0.13 KM |
| Plot 14 Fulford Court, York | £ 140,500 | BUY | 6 / 10 | 0.14 KM |
Nearby Properties
| Address | Price | Distance |
|---|---|---|
| 14 Maida Grove | £ 310,000 | 0.03 KM |
| 18 Maida Grove | £ 80,000 | 0.03 KM |
| 6 Maida Grove | £ 235,000 | 0.03 KM |
| 20 Maida Grove | £ 165,000 | 0.03 KM |
| 11 Maida Grove | £ 174,500 | 0.03 KM |