Elm Park Road, London, SW3
By Harding Green
£ 1,200,000
Reviews
3 out of 5 stars
Harding Green says ..
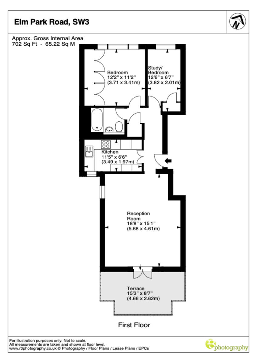
A delightful two bedroom flat (1st floor, lift) with a lovely south facing roof terrace
Property Oracle says ..
This property is a 2 bedroom, 1 bathroom apartment located in the desirable Elm Park Gardens area of Chelsea, London. The apartment is well-presented and benefits from a private balcony/patio. The location is excellent, with good access to transport links and local amenities. However, the property is smaller than the average for the area, and the list price is below the average price per square foot, suggesting it may represent good value for money. More information on the condition of the property would be needed for a more complete assessment.
Therefore, we give this property 7 / 10. *Disclaimer: This is our option and does constitute a recommendation or financial advice. Do your own research. *
- Price
- 7
- Condition
- 8
- Location
- 9
- Land
- 6
- Bedrooms
- 2
- Bathrooms
- 1
- Sqft (est)
- 714.00
- Lot (est)
- 702.00
The heatmap indicates the level of crime in the area. The color of the heatmap indicates the crime severity and recency.
Metrics Year-on-Year
- Average area value
- 1,230,783.00 £Decreased by 28.62 %
- Est sale value
- 824,670.00 £Decreased by 15.07 %
- Average area rental value
- 2,056.00 £/moDecreased by 2.00 %
- Est letting value
- 714.00 £/moUnchanged by 0.00 %
- Est rental Yield
- 2.00 %Increased by 36.99 %
- Crime Rate
- 3.00 %Unchanged by 0.00 %
Agent Activity
Harding Green created the listing.
Nearby Schools
| Name | Type | Ofsted | Distance |
|---|---|---|---|
| Cameron Vale School | Other Independent School | 0.17 KM | |
| Park Walk Primary School | Community School | Good | 0.36 KM |
| The Hampshire School Chelsea | Other Independent School | 0.42 KM | |
| Institute Of Cancer Research | Higher Education Institutions | 0.45 KM | |
| Chelsea Community Hospital School | Community Special School | Outstanding | 0.65 KM |
Images
Nearby Streets
| Name | Average Price | Average Sqft | Distance |
|---|---|---|---|
| Paultons Square | £ 4,950,000 | 0 | 0.00 KM |
| Milborne Grove | £ 0 | 0 | 0.00 KM |
| Dovehouse Street | £ 0 | 0 | 0.00 KM |
| Netherton Grove | £ 0 | 0 | 0.00 KM |
| Glendower Place | £ 1,137,500 | 0 | 0.00 KM |
Nearby Transport
| Name | NLC | TLC | Distance |
|---|---|---|---|
| Imperial Wharf | 9586 | IMW | 1.51 KM |
| West Brompton | 8875 | WBP | 2.15 KM |
| Clapham Junction | 5595 | CLJ | 2.60 KM |
| Wandsworth Town | 5576 | WNT | 3.16 KM |
| Paddington | 3087 | PAD | 3.25 KM |
Nearby Listings
| Address | Price | Type | Score | Distance |
|---|---|---|---|---|
| Elm Park Road, London, SW3 | £ 1,200,000 | BUY | 7 / 10 | 0.00 KM |
| Elm Park Gardens, London, SW10 | £ 2,000,000 | BUY | 5 / 10 | 0.01 KM |
| Elm Park Gardens, Chelsea, London, SW10 | £ 600,000 | BUY | Unknown | 0.05 KM |
| Elm Park Gardens, London, SW10 | £ 2,275,000 | BUY | 6 / 10 | 0.07 KM |
| Elm Park Gardens, London, SW10 | £ 2,275,000 | BUY | 8 / 10 | 0.08 KM |
Nearby Properties
| Address | Price | Distance |
|---|---|---|
| 66b Elm Park Road | £ 2,250,000 | 0.08 KM |
| 88 Elm Park Road | £ 5,600,000 | 0.10 KM |
| 82 Elm Park Road | £ 5,800,000 | 0.10 KM |
| 80 Elm Park Road | £ 13,315,000 | 0.10 KM |
| 84 Elm Park Road | £ 1,900,000 | 0.10 KM |