Hunters says ..
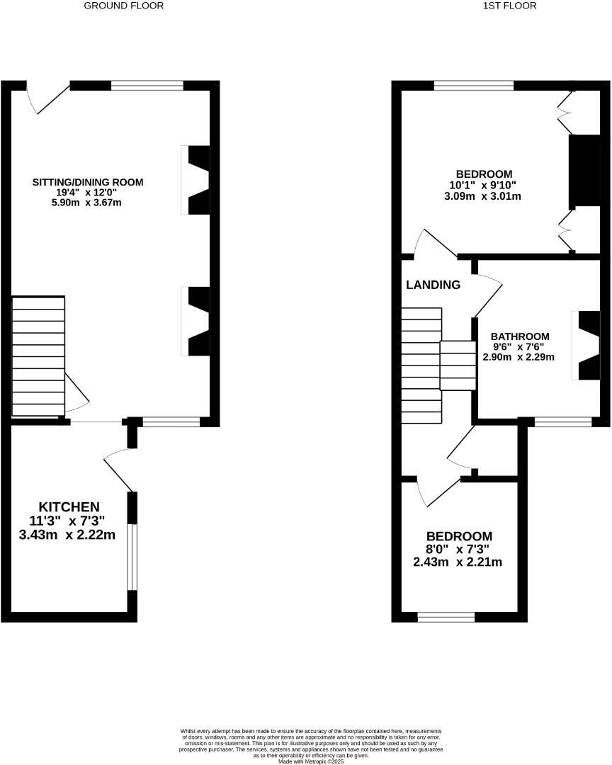
Nestled in the charming area of Victoria Grove, Hythe, this delightful mid-terrace house offers a perfect blend of comfort and convenience. With two well-proportioned bedrooms, this property is ideal for small families, couples, or individuals seeking a peaceful retreat. Upon entering, ...
Property Oracle says ..
This property is a 2 bedroom terraced house located in Hythe, Kent. The property benefits from being close to local amenities and schools, with several highly-rated primary schools within a short distance. Transport links are also reasonable, with several Southeastern train stations within a 4-6km radius. The property itself is in good condition and has been recently renovated. The kitchen has been modernised with new units and flooring and the bathroom has been updated. The property also benefits from a small rear garden. However, the plot size is very small. The list price is below the average price for the area, but this is likely due to the small plot size and the fact that it is a terraced property.
Therefore, we give this property 6 / 10. *Disclaimer: This is our option and does constitute a recommendation or financial advice. Do your own research. *
- Price
- 7
- Condition
- 8
- Location
- 7
- Land
- 3
- Bedrooms
- 2
- Bathrooms
- 1
- Sqft (est)
- 3,356.19
The heatmap indicates the level of crime in the area. The color of the heatmap indicates the crime severity and recency.
Metrics Year-on-Year
- Average area value
- 695,750.00 £Increased by 35.80 %
- Est sale value
- 1,956,658.77 £Increased by 15.22 %
- Average area rental value
- 1,400.00 £/moDecreased by 11.56 %
- Est letting value
- 3,356.19 £/moUnchanged by 0.00 %
- Est rental Yield
- 2.41 %Decreased by 35.04 %
- Crime Rate
- 34.00 %Unchanged by 0.00 %
Agent Activity
Hunters created the listing.
Nearby Schools
| Name | Type | Ofsted | Distance |
|---|---|---|---|
| Seabrook Church Of England Primary School | Voluntary Controlled School | Outstanding | 0.18 KM |
| Folkestone, St Martin'S Church Of England Primary School | Voluntary Controlled School | Outstanding | 1.62 KM |
| Cheriton Primary School | Foundation School | Good | 2.19 KM |
| All Soul'S Church Of England Primary School | Academy Converter | 3.11 KM | |
| Harcourt Primary School | Foundation School | Good | 3.43 KM |
Images
Nearby Streets
| Name | Average Price | Average Sqft | Distance |
|---|---|---|---|
| Victoria Terrace | £ 0 | 0 | 0.00 KM |
| Brook Close | £ 0 | 0 | 0.00 KM |
| Sandy Lane | £ 570,000 | 0 | 0.00 KM |
| Colin's Way | £ 0 | 0 | 0.00 KM |
| (Helena Villas) Hospital Hill | £ 570,000 | 0 | 0.00 KM |
Nearby Transport
| Name | NLC | TLC | Distance |
|---|---|---|---|
| Folkestone West | 5027 | FKW | 4.15 KM |
| Folkestone Central | 5035 | FKC | 5.76 KM |
| Sandling | 5025 | SDG | 6.13 KM |
| Westenhanger | 5030 | WHA | 9.24 KM |
Nearby Listings
| Address | Price | Type | Score | Distance |
|---|---|---|---|---|
| Victoria Grove, Hythe | £ 259,000 | BUY | 6 / 10 | 0.00 KM |
| Victoria Grove, Hythe | £ 385,000 | BUY | 6 / 10 | 0.04 KM |
| Seabrook Road, Hythe, CT21 | £ 345,000 | BUY | 7 / 10 | 0.05 KM |
| Seabrook Road, Hythe | £ 150,000 | BUY | 8 / 10 | 0.05 KM |
| 3 Victoria Terrace, Hythe, CT21 | £ 325,000 | BUY | 7 / 10 | 0.06 KM |
Nearby Properties
| Address | Price | Distance |
|---|---|---|
| 4 Victoria Grove | £ 150,000 | 0.02 KM |
| 3 Victoria Grove | £ 40,000 | 0.02 KM |
| 1 Victoria Grove | £ 157,000 | 0.02 KM |
| 2 Victoria Grove | £ 259,000 | 0.02 KM |
| 248 Seabrook Road | £ 226,000 | 0.03 KM |