EX
Coleridge Road, North Finchley, N12
By eXp UK
£ 500,000
Reviews
3 out of 5 stars
eXp UK says ..
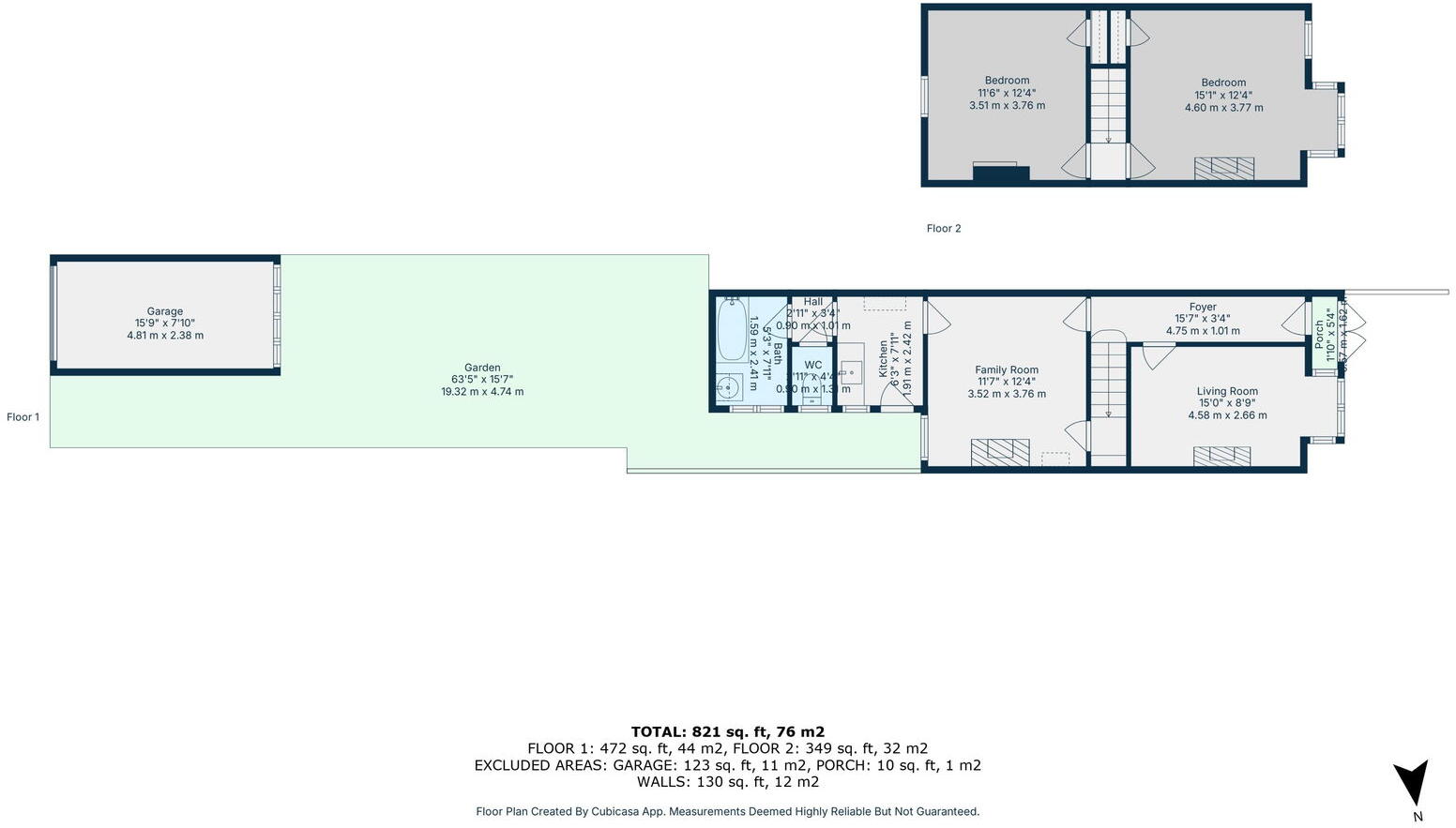
Set on a quiet residential road just a stone's throw from North Finchley High Street, this two-bedroom terrace house presents an exciting opportunity for those eager to create their ideal home. Offered chain-free, this property is a fantastic project, ready for a new owner to add their own per...
Property Oracle says ..
Therefore, we give this property 6 / 10. *Disclaimer: This is our option and does constitute a recommendation or financial advice. Do your own research. *
- Price
- 7
- Condition
- 3
- Location
- 8
- Land
- 7
- Bedrooms
- 2
- Bathrooms
- 1
The heatmap indicates the level of crime in the area. The color of the heatmap indicates the crime severity and recency.
Metrics Year-on-Year
- Average area value
- 659,086.00 £Increased by 6.43 %
- Average area rental value
- 2,352.00 £/moDecreased by 3.41 %
- Est rental Yield
- 4.28 %Decreased by 9.32 %
- Crime Rate
- 14.00 %Unchanged by 0.00 %
from 619,265.00 £
from 2,435.00 £/mo
from 4.72 %
from 14.00 %
Agent Activity
eXp UK marked this listing as sold.
eXp UK created the listing.
Nearby Schools
| Name | Type | Ofsted | Distance |
|---|---|---|---|
| Northside Primary School | Community School | Outstanding | 0.17 KM |
| St Michael'S Catholic Grammar School | Voluntary Aided School | Outstanding | 0.26 KM |
| Sacks Morasha Jewish Primary School | Academy Converter | 0.46 KM | |
| Woodside School | Other Independent Special School | 0.66 KM | |
| The Holmewood School | Other Independent Special School | Good | 0.78 KM |
Images
Nearby Streets
| Name | Average Price | Average Sqft | Distance |
|---|---|---|---|
| Coleridge Road | £ 0 | 0 | 0.00 KM |
| High Road | £ 0 | 0 | 0.00 KM |
| Castle Mews | £ 0 | 0 | 0.00 KM |
| A1003 | £ 379,000 | 0 | 0.00 KM |
| Woodside Court | £ 850,000 | 0 | 0.00 KM |
Nearby Transport
| Name | NLC | TLC | Distance |
|---|---|---|---|
| Oakleigh Park | 6020 | OKL | 2.89 KM |
| New Barnet | 6018 | NBA | 3.81 KM |
| New Southgate | 6019 | NSG | 3.92 KM |
| Hadley Wood | 6075 | HDW | 5.99 KM |
| Bowes Park | 6027 | BOP | 6.46 KM |
Nearby Listings
| Address | Price | Type | Score | Distance |
|---|---|---|---|---|
| Coleridge Road, North Finchley, N12 | £ 500,000 | BUY | 6 / 10 | 0.00 KM |
| Coleridge Road, London, N12 | £ 800,000 | BUY | 7 / 10 | 0.02 KM |
| Coleridge Road, North Finchley | £ 775,000 | BUY | 8 / 10 | 0.06 KM |
| Coleridge Road, London, N12 | £ 375,000 | BUY | 6 / 10 | 0.07 KM |
| Derby Avenue, North Finchley, London, N12 | £ 750,000 | BUY | 8 / 10 | 0.08 KM |
Nearby Properties
| Address | Price | Distance |
|---|---|---|
| 36 Coleridge Road | £ 630,000 | 0.01 KM |
| 12 Coleridge Road | £ 697,000 | 0.01 KM |
| 34 Coleridge Road | £ 550,000 | 0.01 KM |
| 16 Coleridge Road | £ 427,682 | 0.01 KM |
| 54 Coleridge Road | £ 355,000 | 0.02 KM |