Adjacent former Three Horse Shoes Public House Lamb Row South Cornelly, South Cornelly, Bridgend
By Harris & Birt
£ 130,000
Reviews
2 out of 5 stars
Harris & Birt says ..
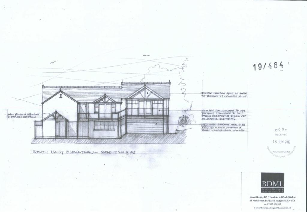
Harris & Birt are pleased to offer to market this flat, private and secluded building plot with detailed planning permission granted to build a three bedroom, detached house situated in circa. 0.24 acres of gardens and grounds. The property is set in an elevated position in fantastic views across...
Property Oracle says ..
This property is located in South Cornelly, Bridgend. The listing price is £130,000. The property size is 1,883.68 sqft.
Based on available data, the average price per sqft in the area is £219. The average property price in the area is £198,077 with an average property size of 901 sqft.
The images suggest this is a plot of land that previously housed the Three Horse Shoes Public House. Planning permission appears to have been granted for a detached dwelling.
The location is near Corneli Primary School and Pyle railway station.
Given the current state of the land and the need for complete construction, the condition is poor. However, the plot offers a good amount of land for development. The listing price of £130,000 seems reasonable considering the average property price in the area.
Therefore, we give this property 5 / 10. *Disclaimer: This is our option and does constitute a recommendation or financial advice. Do your own research. *
- Price
- 8
- Condition
- 2
- Location
- 6
- Land
- 7
- Bedrooms
- 0
- Bathrooms
- 0
- Sqft (est)
- 1,883.68
The heatmap indicates the level of crime in the area. The color of the heatmap indicates the crime severity and recency.
Metrics Year-on-Year
- Average area value
- 285,800.00 £Increased by 13.94 %
- Est sale value
- 506,709.92 £Increased by 55.49 %
- Average area rental value
- 750.00 £/moIncreased by 5.19 %
- Est letting value
- 0.00 £/mo
- Est rental Yield
- 3.15 %Decreased by 7.62 %
- Crime Rate
- 12.00 %Unchanged by 0.00 %
Agent Activity
Harris & Birt created the listing.
Nearby Schools
| Name | Type | Ofsted | Distance |
|---|---|---|---|
| Corneli Primary School | Welsh Establishment | 1.25 KM | |
| Ysgol Y Ferch O'R Sger | Welsh Establishment | 1.33 KM | |
| Afon-Y-Felin Primary School | Welsh Establishment | 1.76 KM | |
| West Park Primary School | Welsh Establishment | 2.17 KM | |
| Pil Primary School | Welsh Establishment | 2.48 KM |
Images
Nearby Streets
| Name | Average Price | Average Sqft | Distance |
|---|---|---|---|
| Lamb Row | £ 437,500 | 0 | 0.00 KM |
| Hawthorn Drive | £ 230,000 | 0 | 0.00 KM |
| Rock Cottages | £ 550,000 | 0 | 0.00 KM |
| Heol Porthcawl | £ 354,500 | 0 | 0.00 KM |
| Railway Terrace | £ 0 | 0 | 0.00 KM |
Nearby Transport
| Name | NLC | TLC | Distance |
|---|---|---|---|
| Pyle | 4185 | PYL | 1.75 KM |
Nearby Listings
| Address | Price | Type | Score | Distance |
|---|---|---|---|---|
| The Three Horseshoes, South Cornelly, Bridgend, CF33 | £ 375,000 | BUY | Unknown | 0.00 KM |
| Adjacent former Three Horse Shoes Public House Lamb Row South Cornelly, South Cornelly, Bridgend | £ 130,000 | BUY | 5 / 10 | 0.00 KM |
| Clevis Court,South Cornelly,Bridgend,CF33 4RZ | £ 240,000 | BUY | 6 / 10 | 0.11 KM |
| Clevis Court, South Cornelly, Bridgend County. CF33 4RZ | £ 279,300 | BUY | Unknown | 0.11 KM |
| Old School Close, South Cornelly, Bridgend, CF33 4SG | £ 475,000 | BUY | 7 / 10 | 0.11 KM |
Nearby Properties
| Address | Price | Distance |
|---|---|---|
| 13 Clevis Court | £ 190,000 | 0.11 KM |
| 3 Clevis Court | £ 60,000 | 0.11 KM |
| 2 Hawthorn Drive | £ 235,500 | 0.12 KM |
| 20 Clevis Court | £ 105,000 | 0.13 KM |
| 1 Clevis Court | £ 175,000 | 0.13 KM |