J W Wood says ..
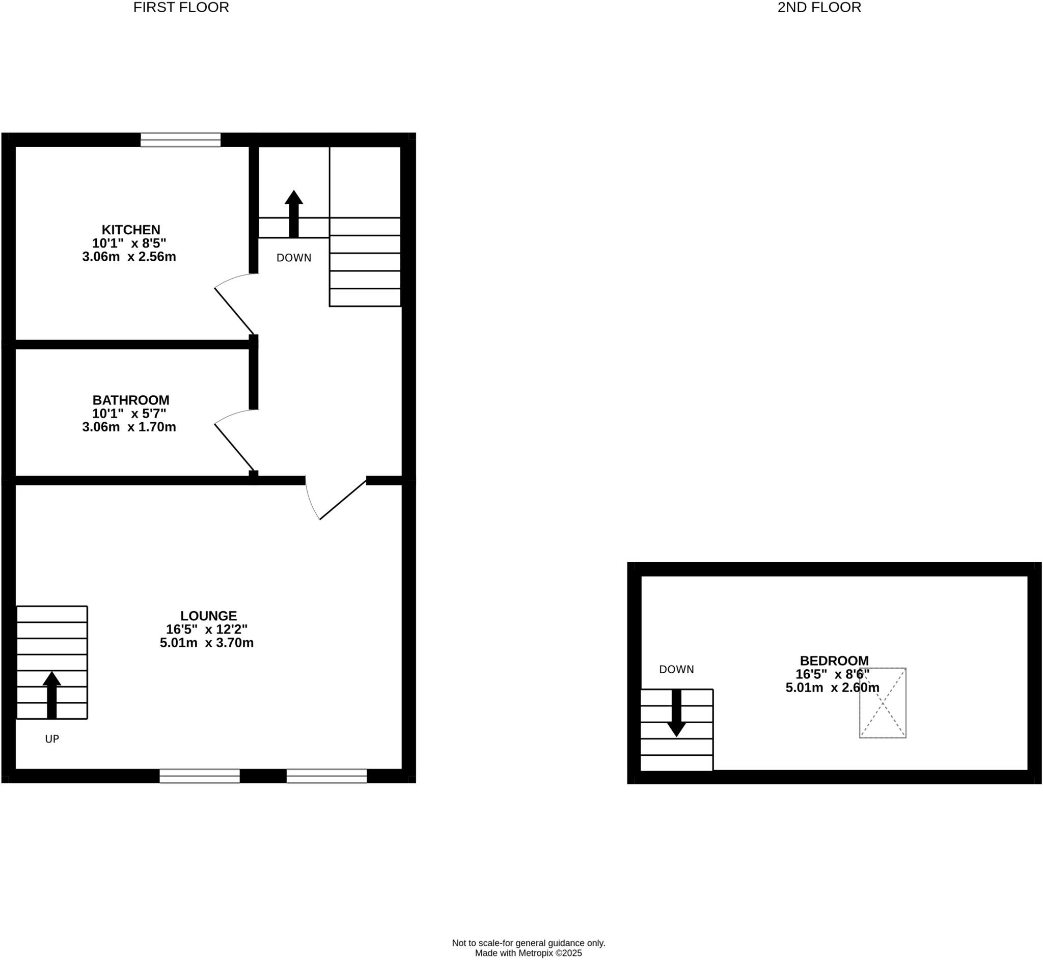
Conveniently located close to a good range of local shops and amenities, this is a one bedroom first floor apartment available for sale as a single stand-alone unit or together with the downstairs flat to be converted back to a single dwelling, subject to the necessary permissions and consents be...
Property Oracle says ..
This property is a 1-bedroom flat located in Darlington, County Durham. The list price is significantly below the average price for the area, which is £341,059. However, the average price per sqft in the area is £271, while this property is listed at a much lower price per sqft, given its size of 665.48 sqft. The property seems to be in a reasonable condition based on the image provided, although a more detailed inspection would be needed to confirm this. The location is close to transport links and schools, which are positive factors. The lack of plot size is a drawback, as it indicates no garden. More information on the property’s condition and the specifics of the local market would be beneficial in making a more comprehensive assessment.
Therefore, we give this property 5 / 10. *Disclaimer: This is our option and does constitute a recommendation or financial advice. Do your own research. *
- Price
- 8
- Condition
- 6
- Location
- 7
- Land
- 1
- Bedrooms
- 1
- Bathrooms
- 1
- Sqft (est)
- 665.48
The heatmap indicates the level of crime in the area. The color of the heatmap indicates the crime severity and recency.
Metrics Year-on-Year
- Average area value
- 343,750.00 £Increased by 10.06 %
- Est sale value
- 192,323.72 £Increased by 14.68 %
- Average area rental value
- 900.00 £/moDecreased by 14.61 %
- Est letting value
- 0.00 £/mo
- Est rental Yield
- 3.14 %Decreased by 22.47 %
- Crime Rate
- 11.00 %Unchanged by 0.00 %
Agent Activity
J W Wood created the listing.
Nearby Schools
| Name | Type | Ofsted | Distance |
|---|---|---|---|
| Skerne Park Academy | Academy Sponsor Led | Requires improvement | 0.82 KM |
| Borough Road Nursery School | Local Authority Nursery School | Good | 0.86 KM |
| Polam Hall School | Free Schools | Good | 0.90 KM |
| Skerne Park Children'S Centre | Children's Centre | 1.01 KM | |
| St Augustine'S Rc Primary School | Academy Converter | 1.09 KM |
Images
Nearby Streets
| Name | Average Price | Average Sqft | Distance |
|---|---|---|---|
| Feethams South | £ 0 | 0 | 0.00 KM |
| Belvedere Road | £ 94,167 | 0 | 0.00 KM |
| South Terrace | £ 0 | 0 | 0.00 KM |
| Chancery Lane | £ 0 | 0 | 0.00 KM |
| Mechanics Yard | £ 0 | 0 | 0.00 KM |
Nearby Transport
| Name | NLC | TLC | Distance |
|---|---|---|---|
| Darlington | 7877 | DAR | 0.62 KM |
| North Road (Darlington) | 7895 | NRD | 1.83 KM |
| Heighington | 7887 | HEI | 9.16 KM |
| Dinsdale | 7897 | DND | 9.51 KM |
Nearby Listings
| Address | Price | Type | Score | Distance |
|---|---|---|---|---|
| Greenwell Street, Darlington, DL1 | £ 35,000 | BUY | 5 / 10 | 0.00 KM |
| Greenwell Street, Darlington, DL1 | £ 30,000 | BUY | 4 / 10 | 0.04 KM |
| Bedford Street, Darlington, County Durham | £ 105,000 | BUY | 6 / 10 | 0.05 KM |
| Bedford Street, Darlington | £ 96,500 | BUY | 6 / 10 | 0.05 KM |
| 23 Bedford Street, Darlington, County Durham, DL1 | £ 40,000 | BUY | 5 / 10 | 0.06 KM |
Nearby Properties
| Address | Price | Distance |
|---|---|---|
| 19 Bedford Street | £ 69,000 | 0.04 KM |
| 25 Bedford Street | £ 87,000 | 0.04 KM |
| 13 Bedford Street | £ 30,500 | 0.04 KM |
| 23 Bedford Street | £ 87,000 | 0.04 KM |
| 11 Victoria Embankment | £ 140,000 | 0.07 KM |