Barnham Road, Barnham
SI

Barnham Road, Barnham

By Sims Williams

£ 450,000

Reviews

3 out of 5 stars

Sims Williams says ..

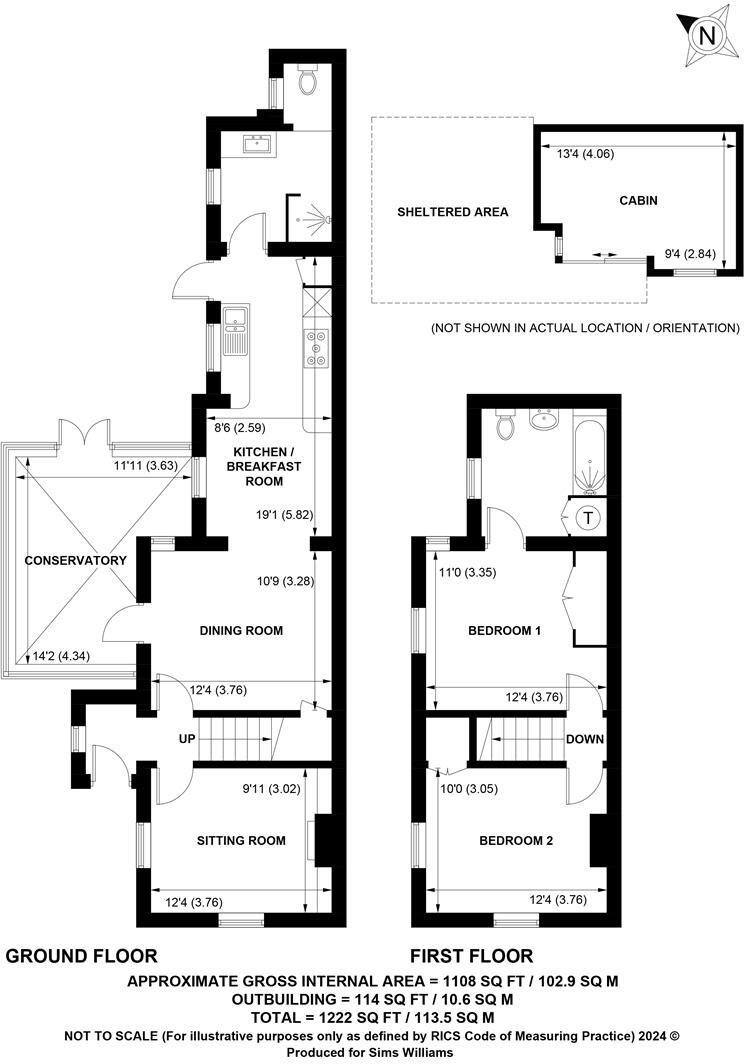
** VENDOR SUITED ** A beautifully presented PERIOD SEMI DETACHED HOUSE with many original features set in a convenient location in Barnham Village. Benefits from off road parking and CABIN in the garden.

Property Oracle says ..

This two-bedroom, two-bathroom semi-detached house located on Barnham Road in Barnham, West Sussex, presents itself as a charming and well-maintained property. The photos reveal a tastefully decorated interior, showing a well-presented living space, modern kitchen, and attractive bathrooms. The sizable garden is a particularly noteworthy feature, showcasing considerable outdoor living space with well established plants, trees, and a substantial shed/cabin. The property’s location in Barnham adds to its desirability, offering proximity to local amenities, highly-rated schools (St Philip Howard Catholic School and Barnham Primary School both within walking distance), and excellent transport links to London and other major towns via the nearby Barnham train station. The list price of £450,000 needs additional local comparative market data for a complete evaluation, however, based on similar homes in the area this seems to be a reasonable value. While not explicitly stated, the images suggest the property benefits from off-street parking which is a valuable asset in this type of location. Overall, this property represents a well-presented family home with a desirable location and ample outdoor space. Potential buyers should undertake their own detailed research and seek professional property valuations before committing to a purchase.

Therefore, we give this property 7 / 10. *Disclaimer: This is our option and does constitute a recommendation or financial advice. Do your own research. *

Price
7
Condition
7
Location
8
Land
7
Bedrooms
2
Bathrooms
2
Sqft (est)
1,221.70

The heatmap indicates the level of crime in the area. The color of the heatmap indicates the crime severity and recency.

Metrics Year-on-Year

Average area value
405,273.00 £
Decreased by 12.72 %
from 464,328.00 £
Est sale value
636,505.70 £
Increased by 62.81 %
from 390,944.00 £
Average area rental value
1,457.00 £/mo
Increased by 7.45 %
from 1,356.00 £/mo
Est letting value
1,221.70 £/mo
from 0.00 £/mo
Est rental Yield
4.31 %
Increased by 23.14 %
from 3.50 %
Crime Rate
13.00 %
Unchanged by 0.00 %
from 13.00 %

Agent Activity

  • Sims Williams created the listing.

Nearby Schools

NameTypeOfstedDistance
St Philip Howard Catholic SchoolAcademy ConverterOutstanding0.20 KM
Barnham Primary SchoolAcademy ConverterGood0.27 KM
Eastergate Cofe Primary SchoolVoluntary Controlled SchoolGood2.03 KM
Ormiston Six Villages AcademyAcademy Sponsor LedGood2.32 KM
The Amicus SchoolOther Independent Special SchoolGood2.61 KM

Images

Sitting Room Front Kitchen/Breakfast Room Kitchen/Breakfast Room Dining Room Downstairs Shower Room Garden Dining Room Dining Room Conservatory Conservatory Bedroom 2 Downstairs Shower Room Bedroom 1 Bedroom 1 Garden Rear Garden En Suite Bathroom Garden Garden Cabin Cabin Front

Nearby Streets

NameAverage PriceAverage SqftDistance
Nursery Close £ 000.00 KM
Marshall Close £ 350,00000.00 KM
Boweries Road £ 000.00 KM
Warwick Drive £ 000.00 KM
Farrow Drive. Odd Nos 11-19 £ 000.00 KM

Nearby Transport

NameNLCTLCDistance
Barnham5252BAA0.65 KM
Bognor Regis5253BOG6.47 KM
Ford5258FOD7.26 KM

Nearby Listings

AddressPriceTypeScoreDistance
Barnham Road, Barnham £ 265,000BUY6 / 100.06 KM
Elm Grove, Barnham £ 425,000BUY6 / 100.07 KM
Barnham Road, Barnham, PO22 £ 240,000BUYUnknown0.11 KM
4 Empress Gardens, Barnham £ 495,000BUYUnknown0.15 KM
Elm Grove, Barnham £ 795,000BUY7 / 100.16 KM

Nearby Properties

AddressPriceDistance
3 Elm Grove £ 205,0000.07 KM
92 Barnham Road £ 745,0000.13 KM
96 Barnham Road £ 810,0000.13 KM
80 Elm Grove £ 217,0000.15 KM
79 Elm Grove £ 187,0000.15 KM