Jenkinson Estates says ..
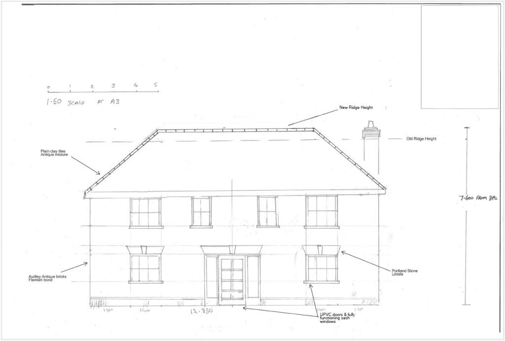
Jenkinson Estates are pleased to bring to the market this building plot in the semi rural location of Mill Bank, Mill Lane, Eastry. Approved Planning Permission with Dover District Council application number 21/01827. The planning has been approved for a detached dwelling, new vehicle access and ...
Property Oracle says ..
Plot of land for sale in Eastry, Kent. A blank canvas to build a property in a desirable area.
Therefore, we give this property 5 / 10. *Disclaimer: This is our option and does constitute a recommendation or financial advice. Do your own research. *
- Price
- 8
- Condition
- 1
- Location
- 6
- Land
- 7
- Bedrooms
- 4
- Bathrooms
- 0
The heatmap indicates the level of crime in the area. The color of the heatmap indicates the crime severity and recency.
Metrics Year-on-Year
- Average area value
- 488,899.00 £Increased by 18.65 %
- Average area rental value
- 1,850.00 £/moIncreased by 36.23 %
- Est rental Yield
- 4.54 %Increased by 14.94 %
- Crime Rate
- 18.00 %Unchanged by 0.00 %
from 412,055.00 £
from 1,358.00 £/mo
from 3.95 %
from 18.00 %
Agent Activity
Jenkinson Estates created the listing.
Nearby Schools
| Name | Type | Ofsted | Distance |
|---|---|---|---|
| Eastry Church Of England Primary School | Voluntary Controlled School | Requires improvement | 0.73 KM |
| The Davenport School | Other Independent Special School | Requires improvement | 1.70 KM |
| Northbourne Park School | Other Independent School | 2.33 KM | |
| Northbourne Church Of England Primary School | Academy Converter | 4.05 KM | |
| St Faith'S At Ash School Limited | Other Independent School | 4.73 KM |
Images
Nearby Streets
| Name | Average Price | Average Sqft | Distance |
|---|---|---|---|
| Dover Road | £ 0 | 0 | 0.00 KM |
| Shemara Court | £ 0 | 0 | 0.00 KM |
| Kiln Drive | £ 1,250,000 | 0 | 0.00 KM |
| Paddock Court | £ 0 | 0 | 0.00 KM |
Nearby Transport
| Name | NLC | TLC | Distance |
|---|---|---|---|
| Sandwich | 5026 | SDW | 5.76 KM |
| Shepherds Well | 5186 | SPH | 9.70 KM |
| Minster | 5019 | MSR | 9.76 KM |
| Snowdown | 5185 | SWO | 9.81 KM |
| Martin Mill | 5040 | MTM | 9.86 KM |
Nearby Listings
| Address | Price | Type | Score | Distance |
|---|---|---|---|---|
| Mill Lane, Eastry, CT13 | £ 260,000 | BUY | 5 / 10 | 0.00 KM |
| Mill Lane, Eastry, CT13 | £ 395,000 | BUY | 6 / 10 | 0.00 KM |
| Mill Lane, Eastry, CT13 | £ 185,000 | BUY | 5 / 10 | 0.00 KM |
| Heronden View, Sandwich, Deal, Kent, CT13 | £ 345,000 | BUY | 6 / 10 | 0.11 KM |
| Heronden View, Eastry, Sandwich, Kent | £ 231,500 | BUY | Unknown | 0.12 KM |
Nearby Properties
| Address | Price | Distance |
|---|---|---|
| New Horizon | £ 239,000 | 0.06 KM |
| 15 Heronden View | £ 365,000 | 0.12 KM |
| 12 Heronden View | £ 295,000 | 0.12 KM |
| 3 Heronden View | £ 172,000 | 0.12 KM |
| 4 Heronden View | £ 320,000 | 0.12 KM |