Winkworth says ..
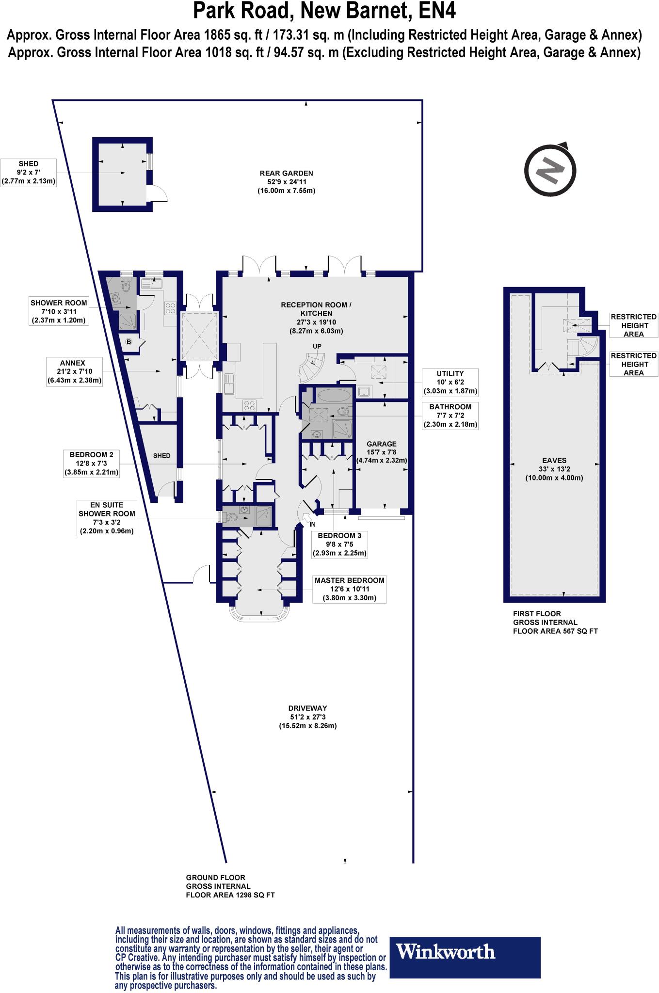
A detached three/four bedroom three bathroom bungalow which has been the subject of significant improvement and extension by the present owner. The accommodation is light and spacious and includes large through lounge/dining room which opens to a modern fitted kitchen and a separate u...
Property Oracle says ..
Therefore, we give this property 6 / 10. *Disclaimer: This is our option and does constitute a recommendation or financial advice. Do your own research. *
- Price
- 3
- Condition
- 8
- Location
- 8
- Land
- 7
- Bedrooms
- 3
- Bathrooms
- 3
- Sqft (est)
- 4,490.84
The heatmap indicates the level of crime in the area. The color of the heatmap indicates the crime severity and recency.
Metrics Year-on-Year
- Average area value
- 542,389.00 £Decreased by 6.67 %
- Est sale value
- 2,546,306.28 £Decreased by 1.05 %
- Average area rental value
- 1,615.00 £/moDecreased by 23.10 %
- Est letting value
- 4,490.84 £/moDecreased by 50.00 %
- Est rental Yield
- 3.57 %Decreased by 17.74 %
- Crime Rate
- 6.00 %Unchanged by 0.00 %
from 581,179.00 £
from 2,573,251.32 £
from 2,100.00 £/mo
from 8,981.68 £/mo
from 4.34 %
from 6.00 %
Agent Activity
Winkworth created the listing.
Nearby Schools
| Name | Type | Ofsted | Distance |
|---|---|---|---|
| Beya Children'S Centre | Children's Centre | 0.28 KM | |
| St Margaret'S Nursery School | Local Authority Nursery School | Outstanding | 0.32 KM |
| Livingstone Primary And Nursery School | Community School | Good | 0.42 KM |
| Jcoss | Voluntary Aided School | Good | 0.43 KM |
| Brookhill Nursery School | Local Authority Nursery School | Outstanding | 0.83 KM |
Images
Nearby Streets
| Name | Average Price | Average Sqft | Distance |
|---|---|---|---|
| St. James Close | £ 0 | 0 | 0.00 KM |
| Astera Mews | £ 0 | 0 | 0.00 KM |
| Pym Close | £ 0 | 0 | 0.00 KM |
| Kingston Road | £ 0 | 0 | 0.00 KM |
| Triangle Passage | £ 0 | 0 | 0.00 KM |
Nearby Transport
| Name | NLC | TLC | Distance |
|---|---|---|---|
| New Barnet | 6018 | NBA | 0.69 KM |
| Oakleigh Park | 6020 | OKL | 1.59 KM |
| Hadley Wood | 6075 | HDW | 2.07 KM |
| New Southgate | 6019 | NSG | 5.01 KM |
| Potters Bar | 6022 | PBR | 5.73 KM |
Nearby Listings
| Address | Price | Type | Score | Distance |
|---|---|---|---|---|
| Park Road, New Barnet, Barnet, EN4 | £ 550,000 | BUY | Unknown | 0.00 KM |
| Park Road, New Barnet, EN4 | £ 850,000 | BUY | 6 / 10 | 0.00 KM |
| Park Road, Barnet, EN4 | £ 1,000,000 | BUY | 7 / 10 | 0.03 KM |
| New Barnet, Barnet, EN4 | £ 1,100,000 | BUY | 7 / 10 | 0.03 KM |
| Crescent Road, Barnet | £ 700,000 | BUY | 6 / 10 | 0.10 KM |
Nearby Properties
| Address | Price | Distance |
|---|---|---|
| 9 Baring Road | £ 940,000 | 0.15 KM |
| 29 Baring Road | £ 310,000 | 0.15 KM |
| 15 Baring Road | £ 465,000 | 0.15 KM |
| 19 Baring Road | £ 330,000 | 0.15 KM |
| 23 Baring Road | £ 442,000 | 0.15 KM |