Sky View, Drapers Corner, Greensted, Essex CM5
By Davis Homes
£ 895,000
Reviews
3 out of 5 stars
Davis Homes says ..
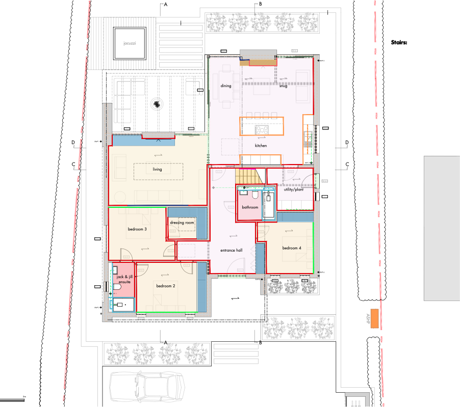
*Calling all self-builders* A development opportunity with planning permission granted to build a stylish detached two-story dwelling in stunning rural location. Planning permission has been granted by Epping Forest Council to build a double story detached 4-bedroom home with private gard...
Property Oracle says ..
This property listing presents a modern, newly built, four-bedroom house in the rural Essex village of Greensted. The architectural style is contemporary with a clean, sleek design. The images show a well-maintained exterior, including landscaping and a driveway. While the precise plot size is not provided, visual inspection shows a private garden. The property’s location offers the benefits of a quiet, rural setting while still being relatively close to the amenities of Chipping Ongar. Several schools are located within a reasonable distance, making it potentially attractive to families. However, the absence of details regarding public transport options could be a factor for some buyers. The asking price, while substantial, seems consistent with properties in comparable areas, especially considering the likely high specification of a new build. Further details regarding internal features, the actual square footage and the size of the plot, would enable a more comprehensive assessment of value. The absence of information on the actual internal square footage makes an assessment of the price-per-square-foot challenging. Overall, this property presents a potential investment in a desirable area of Essex, however prospective buyers should seek complete specifications before committing to a purchase.
Therefore, we give this property 7 / 10. *Disclaimer: This is our option and does constitute a recommendation or financial advice. Do your own research. *
- Price
- 7
- Condition
- 8
- Location
- 7
- Land
- 6
- Bedrooms
- 4
- Bathrooms
- 3
- Sqft (est)
- 1,076.39
The heatmap indicates the level of crime in the area. The color of the heatmap indicates the crime severity and recency.
Metrics Year-on-Year
- Average area value
- 526,667.00 £Decreased by 1.43 %
- Est sale value
- 616,771.47 £Increased by 0.70 %
- Average area rental value
- 1,200.00 £/moDecreased by 23.81 %
- Est letting value
- 1,076.39 £/moUnchanged by 0.00 %
- Est rental Yield
- 2.73 %Decreased by 22.88 %
- Crime Rate
- 22.00 %Unchanged by 0.00 %
Agent Activity
Davis Homes marked this listing as sold.
Davis Homes created the listing.
Nearby Schools
| Name | Type | Ofsted | Distance |
|---|---|---|---|
| Chipping Ongar Primary School | Academy Converter | 2.32 KM | |
| Ongar Primary School | Academy Converter | 2.73 KM | |
| The Ongar Academy | Free Schools | Good | 4.02 KM |
| Moreton Church Of England Voluntary Aided Primary School | Voluntary Aided School | Good | 4.29 KM |
| St Andrew'S Cofe Primary School | Voluntary Aided School | Good | 4.89 KM |
Images
Nearby Streets
| Name | Average Price | Average Sqft | Distance |
|---|---|---|---|
| Old Rectory Road | £ 0 | 0 | 0.00 KM |
Nearby Listings
| Address | Price | Type | Score | Distance |
|---|---|---|---|---|
| Sky View, Drapers Corner, Greensted, Essex CM5 | £ 895,000 | BUY | 7 / 10 | 0.00 KM |
| Greensted Road, Ongar, Essex, CM5 | £ 3,250,000 | BUY | 8 / 10 | 0.14 KM |
| Greensted Road, Ongar, CM5 | £ 3,000,000 | BUY | 7 / 10 | 0.21 KM |
| Donkey Hoppit, Toot Hill, Ongar, Essex CM5 | £ 575,000 | BUY | 5 / 10 | 0.91 KM |
| Ongar | £ 295,000 | BUY | 7 / 10 | 1.09 KM |
Nearby Properties
| Address | Price | Distance |
|---|---|---|
| Valleyfield Cottage | £ 1,075,000 | 0.31 KM |
| Churchfields | £ 1,900,000 | 0.31 KM |
| Green Acre | £ 1,355,000 | 0.31 KM |
| Church Meadow Barn | £ 475,000 | 1.09 KM |
| Brew House | £ 755,000 | 1.09 KM |