Archer & Partners says ..
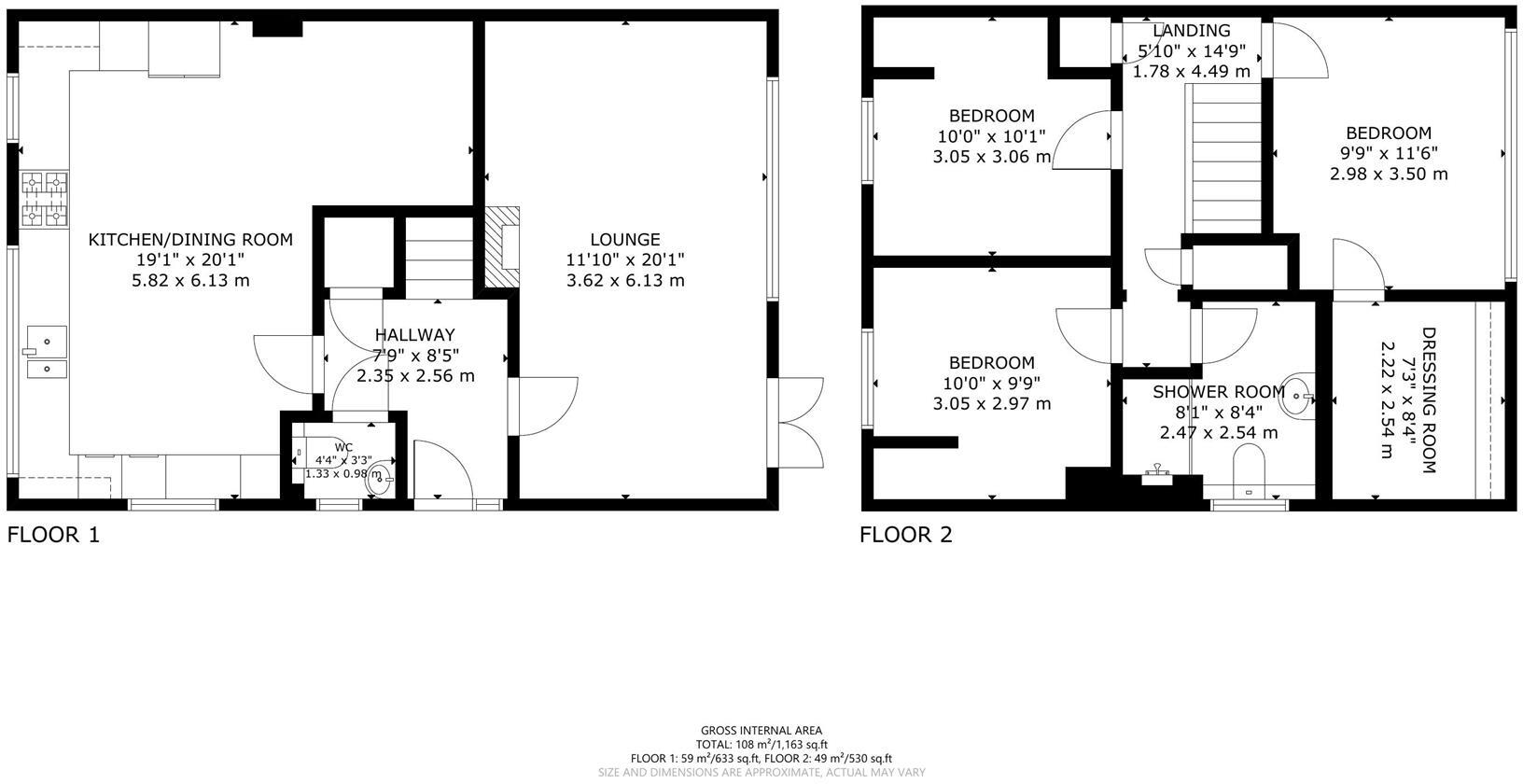
SEE OUR 3D VIRTUAL TOUR - Semi Detached Family House - Close to Polegate Primary School - Large Kitchen/Diner - Lounge - Downstairs Cloakroom/wc - 3 Bedrooms - Shower Room/wc - Gas Central Heating - Double Glazing - Southerly Garden - Off Road Parking A 3-bedroomed semi detached house lo...
Property Oracle says ..
This property is a 3-bedroom semi-detached house located in Polegate, East Sussex. The location is convenient, with a primary school within close proximity (0.15km) and a train station only 0.44km away. The property itself appears well-maintained and recently updated, with a modern kitchen and bathroom. There is a decent-sized garden, offering outdoor space. While the provided data lacks specific details on the plot size and the condition of the surrounding area, the overall impression is positive. The list price seems reasonable considering the average house price and size in the area, although more information on comparable properties would be needed to make a definitive statement. The property appears to be well-suited for families due to its proximity to a highly-rated primary school.
Therefore, we give this property 7 / 10. *Disclaimer: This is our option and does constitute a recommendation or financial advice. Do your own research. *
- Price
- 7
- Condition
- 8
- Location
- 8
- Land
- 7
- Bedrooms
- 3
- Bathrooms
- 1
- Sqft (est)
- 1,162.50
The heatmap indicates the level of crime in the area. The color of the heatmap indicates the crime severity and recency.
Metrics Year-on-Year
- Average area value
- 1,332,494.00 £Increased by 19.68 %
- Est sale value
- 1,622,850.00 £Increased by 164.90 %
- Average area rental value
- 1,800.00 £/moDecreased by 54.11 %
- Est letting value
- 1,162.50 £/moUnchanged by 0.00 %
- Est rental Yield
- 1.62 %Decreased by 61.70 %
- Crime Rate
- 13.00 %Unchanged by 0.00 %
Agent Activity
Archer & Partners created the listing.
Nearby Schools
| Name | Type | Ofsted | Distance |
|---|---|---|---|
| Polegate Primary School | Community School | Outstanding | 0.15 KM |
| Willingdon Community School | Community School | Good | 1.61 KM |
| Willingdon Primary School | Community School | Requires improvement | 1.87 KM |
| Oakwood Primary Academy | Academy Sponsor Led | Special Measures | 3.29 KM |
| Burfield Academy | Academy Sponsor Led | Requires improvement | 3.30 KM |
Images
Nearby Streets
| Name | Average Price | Average Sqft | Distance |
|---|---|---|---|
| Roy Martin Way | £ 0 | 0 | 0.00 KM |
| St. John's Road | £ 0 | 0 | 0.00 KM |
| Oaklands Close | £ 0 | 0 | 0.00 KM |
| Eastbourne Road | £ 368,333 | 0 | 0.00 KM |
| The Sidings | £ 0 | 0 | 0.00 KM |
Nearby Transport
| Name | NLC | TLC | Distance |
|---|---|---|---|
| Polegate | 5455 | PLG | 0.44 KM |
| Hampden Park (Sussex) | 5450 | HMD | 4.89 KM |
| Eastbourne | 5448 | EBN | 7.34 KM |
| Pevensey And Westham | 5461 | PEV | 8.79 KM |
| Berwick (Sussex) | 5323 | BRK | 8.99 KM |
Nearby Listings
| Address | Price | Type | Score | Distance |
|---|---|---|---|---|
| Oakleaf Drive, Polegate | £ 395,000 | BUY | 7 / 10 | 0.00 KM |
| Windsor Way, Polegate, East Sussex, BN26 | £ 150,000 | BUY | 5 / 10 | 0.06 KM |
| Windsor Way, Polegate | £ 375,000 | BUY | 7 / 10 | 0.06 KM |
| Windsor Way, Polegate | £ 315,000 | BUY | 5 / 10 | 0.09 KM |
| Greenleaf Gardens, Polegate, East Sussex, BN26 | £ 325,000 | BUY | Unknown | 0.11 KM |
Nearby Properties
| Address | Price | Distance |
|---|---|---|
| 47 Oakleaf Drive | £ 272,000 | 0.04 KM |
| 60b Windsor Way | £ 155,000 | 0.06 KM |
| 45 Windsor Way | £ 245,000 | 0.06 KM |
| 56 Windsor Way | £ 60,000 | 0.06 KM |
| 55 Windsor Way | £ 248,000 | 0.06 KM |