Rogers Close, Gosport, Hampshire
By Leaders Sales
£ 294,995
Reviews
3 out of 5 stars
Leaders Sales says ..
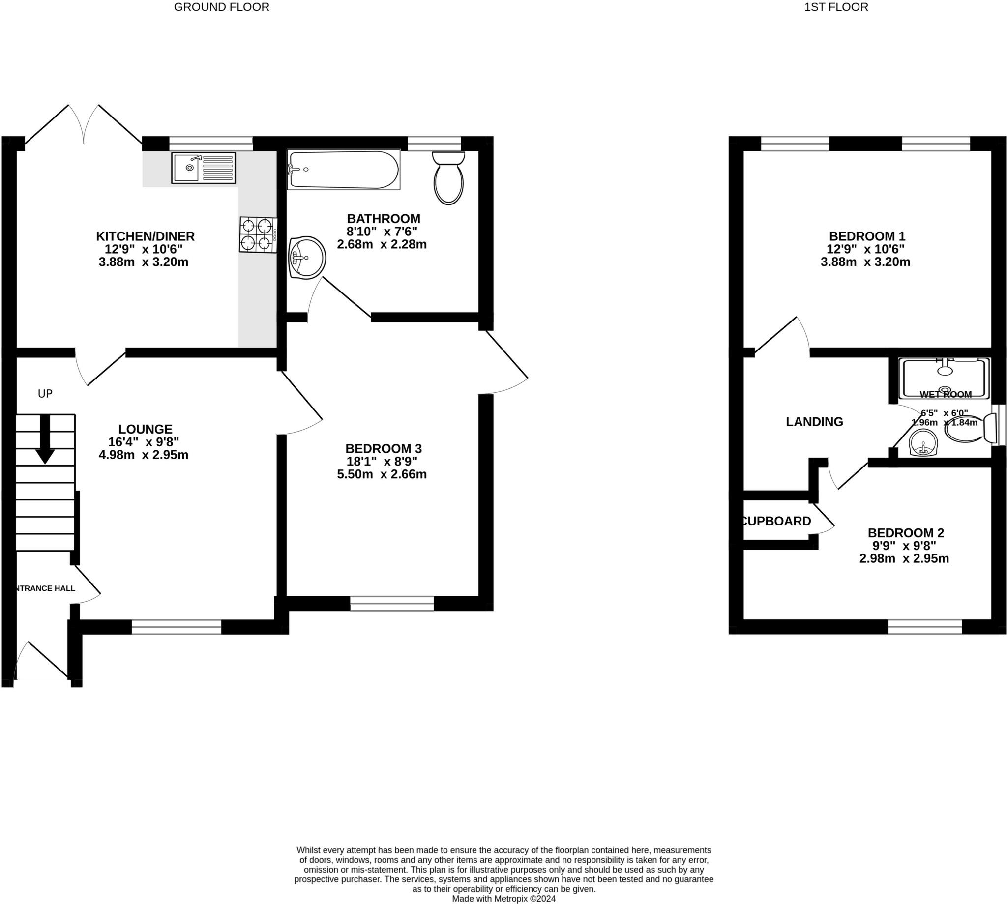
*OPEN TO OFFERS* Tucked away in the corner of this Cul de Sac is this 2/3 bedroom house offering a annex, parking and no forward chain. The property comprises: Porch, lounge, modern refitted new kitchen with door to garden, side extension offering a sperate annex living space and ...
Property Oracle says ..
This three-bedroom end-of-terrace house in Rogers Close, Gosport offers a mix of modern updates and features needing some modernisation. The kitchen and at least one bathroom appear to have undergone recent renovations, presenting a modern and functional space. In contrast, other rooms, such as the bedrooms and main living area, show a more traditional style and may require updating to meet contemporary tastes. The property benefits from off-street parking and a modest-sized rear garden with a pergola. The location in Forton, Gosport is convenient, offering proximity to local schools—St John’s Church of England Voluntary Aided Primary School is notably close—and transport links to Portsmouth. While the location is reasonably convenient and the presence of an annex is an advantage, Gosport itself is not generally considered a high-demand area compared to other parts of Hampshire. The asking price appears to be in line with the market value for similar properties in the area, taking into account its condition and amenities. Potential buyers should carefully assess their priorities regarding property condition and location before making a purchase decision. More information regarding square footage and plot size would improve the overall assessment of this property’s value.
Therefore, we give this property 6 / 10. *Disclaimer: This is our option and does constitute a recommendation or financial advice. Do your own research. *
- Price
- 7
- Condition
- 6
- Location
- 7
- Land
- 4
- Bedrooms
- 3
- Bathrooms
- 2
- Sqft (est)
- 912.46
The heatmap indicates the level of crime in the area. The color of the heatmap indicates the crime severity and recency.
Metrics Year-on-Year
- Average area value
- 236,250.00 £Decreased by 3.23 %
- Est sale value
- 281,950.14 £Increased by 9.19 %
- Average area rental value
- 995.00 £/moDecreased by 8.80 %
- Est letting value
- 912.46 £/moUnchanged by 0.00 %
- Est rental Yield
- 5.05 %Decreased by 5.78 %
- Crime Rate
- 17.00 %Unchanged by 0.00 %
Agent Activity
Leaders Sales created the listing.
Nearby Schools
| Name | Type | Ofsted | Distance |
|---|---|---|---|
| St John'S, Gosport Church Of England Voluntary Aided Primary School | Voluntary Aided School | Good | 0.23 KM |
| Oarsome Chance | Special Post 16 Institution | 0.68 KM | |
| St Vincent College | Academy 16-19 Converter | Good | 0.68 KM |
| Little Waves Children'S Centre | Children's Centre Linked Site | 0.69 KM | |
| St Mary'S Catholic Primary School | Voluntary Aided School | Requires improvement | 0.83 KM |
Images
Nearby Streets
| Name | Average Price | Average Sqft | Distance |
|---|---|---|---|
| Lee Road | £ 0 | 0 | 0.00 KM |
| Mill Pond Road | £ 225,000 | 0 | 0.00 KM |
| Reed's Place | £ 190,000 | 0 | 0.00 KM |
| Dukes Road | £ 0 | 0 | 0.00 KM |
| Lees Lane North | £ 0 | 0 | 0.00 KM |
Nearby Transport
| Name | NLC | TLC | Distance |
|---|---|---|---|
| Portsmouth Harbour | 5540 | PMH | 3.76 KM |
| Portchester | 5928 | PTC | 5.32 KM |
| Portsmouth And Southsea | 5537 | PMS | 5.59 KM |
| Fratton | 5509 | FTN | 7.47 KM |
| Ryde Pier Head | 5541 | RYP | 7.51 KM |
Nearby Listings
| Address | Price | Type | Score | Distance |
|---|---|---|---|---|
| Rogers Close, Gosport, Hampshire | £ 294,995 | BUY | 6 / 10 | 0.00 KM |
| Rogers Close, Gosport | £ 180,000 | BUY | 6 / 10 | 0.04 KM |
| Keith Close, Gosport, Hampshire | £ 289,995 | BUY | 7 / 10 | 0.06 KM |
| San Diego Road, Elson, Gosport | £ 210,000 | BUY | 7 / 10 | 0.12 KM |
| San Diego Road, Elson | £ 205,000 | BUY | 6 / 10 | 0.13 KM |
Nearby Properties
| Address | Price | Distance |
|---|---|---|
| 8 Rogers Close | £ 33,000 | 0.03 KM |
| 3 Rogers Close | £ 60,000 | 0.03 KM |
| 2 Rogers Close | £ 120,000 | 0.04 KM |
| 9 Rogers Close | £ 165,000 | 0.04 KM |
| 15 Rogers Close | £ 67,500 | 0.04 KM |