Martin & Co says ..
Nestled on the charming Anstey Road in Farnham, this delightful apartment offers a perfect blend of modern living and comfort. Built in 2009, the property boasts a contemporary design that is both stylish and functional. Upon entering, you are welcomed into a spacious reception room, id...
Property Oracle says ..
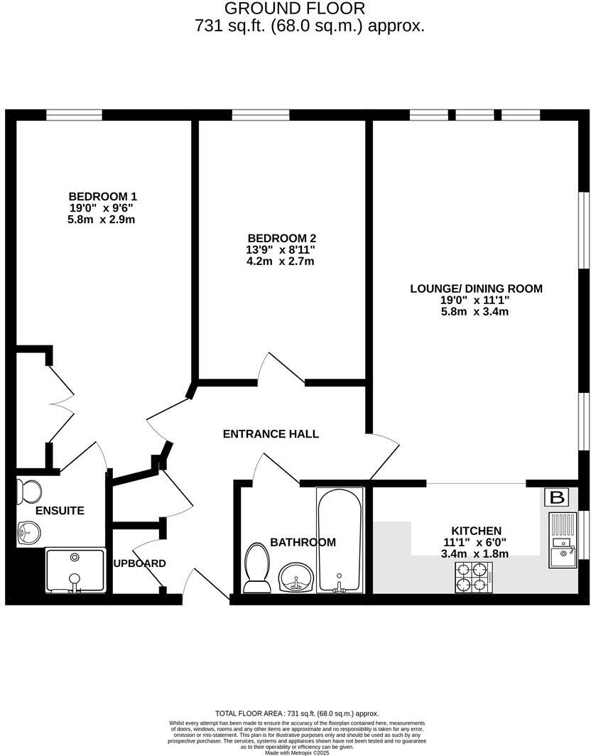
This property is a two bedroom, two bathroom apartment located in Farnham Moor Park, Waverley, Surrey. The apartment is relatively modern in style and appears to be in good condition, although some minor cosmetic work may be needed. The location is convenient, with nearby schools and transportation links. However, the list price of £250,000 is significantly lower than the average price for the area (£780,000), suggesting it may represent good value for money, especially considering the relatively low average price per square foot in the area. The property itself is relatively small (631 sqft) compared to the area average (1387 sqft). While the plot size is not exceptionally large (731 sqft), it is adequate for an apartment. More information on the property’s condition and any potential issues would be needed to provide a more definitive assessment.
Therefore, we give this property 7 / 10. *Disclaimer: This is our option and does constitute a recommendation or financial advice. Do your own research. *
- Price
- 9
- Condition
- 8
- Location
- 7
- Land
- 4
- Bedrooms
- 2
- Bathrooms
- 2
- Sqft (est)
- 631.00
- Lot (est)
- 731.00
The heatmap indicates the level of crime in the area. The color of the heatmap indicates the crime severity and recency.
Metrics Year-on-Year
- Average area value
- 923,333.00 £Increased by 23.07 %
- Est sale value
- 449,903.00 £Increased by 15.75 %
- Average area rental value
- 2,015.00 £/moIncreased by 24.00 %
- Est letting value
- 631.00 £/moUnchanged by 0.00 %
- Est rental Yield
- 2.62 %Increased by 0.77 %
- Crime Rate
- 21.00 %Unchanged by 0.00 %
Agent Activity
Martin & Co created the listing.
Nearby Schools
| Name | Type | Ofsted | Distance |
|---|---|---|---|
| St Polycarp'S Catholic Primary School | Academy Converter | 1.01 KM | |
| South Farnham School | Academy Converter | Outstanding | 1.09 KM |
| The Abbey School | Academy Special Converter | 1.17 KM | |
| Farnham Heath End | Academy Converter | Good | 1.33 KM |
| William Cobbett Primary School | Community School | Good | 1.52 KM |
Images
Nearby Streets
| Name | Average Price | Average Sqft | Distance |
|---|---|---|---|
| Farnham Bypass | £ 0 | 0 | 0.00 KM |
| Roman Way | £ 0 | 0 | 0.00 KM |
| Mike Hawthorn Drive | £ 0 | 0 | 0.00 KM |
| Snailslynch | £ 0 | 0 | 0.00 KM |
| Water Lane | £ 550,000 | 0 | 0.00 KM |
Nearby Transport
| Name | NLC | TLC | Distance |
|---|---|---|---|
| Farnham | 5545 | FNH | 1.24 KM |
| Aldershot | 5623 | AHT | 4.03 KM |
| North Camp | 5636 | NCM | 8.58 KM |
| Ash | 5641 | ASH | 8.59 KM |
| Ash Vale | 5547 | AHV | 9.08 KM |
Nearby Listings
| Address | Price | Type | Score | Distance |
|---|---|---|---|---|
| Anstey Road, Farnham | £ 250,000 | BUY | 7 / 10 | 0.00 KM |
| Anstey Road, Farnham, Surrey, GU9 | £ 275,000 | BUY | 6 / 10 | 0.02 KM |
| Anstey Road, Farnham, Surrey, GU9 | £ 142,500 | BUY | Unknown | 0.02 KM |
| Anstey Road, Farnham, Surrey, GU9 | £ 280,000 | BUY | 6 / 10 | 0.03 KM |
| Anstey Road, Farnham, GU9 | £ 300,000 | BUY | Unknown | 0.04 KM |
Nearby Properties
| Address | Price | Distance |
|---|---|---|
| 22 Anstey Road | £ 78,000 | 0.02 KM |
| 20 Anstey Road | £ 75,000 | 0.02 KM |
| 18 Anstey Road | £ 203,000 | 0.02 KM |
| 6 Anstey Road | £ 180,000 | 0.02 KM |
| 12 Anstey Road | £ 269,950 | 0.03 KM |