GA
St. Margarets Avenue, Burnage
By Gascoigne Halman
£ 220,000
Reviews
3 out of 5 stars
Gascoigne Halman says ..
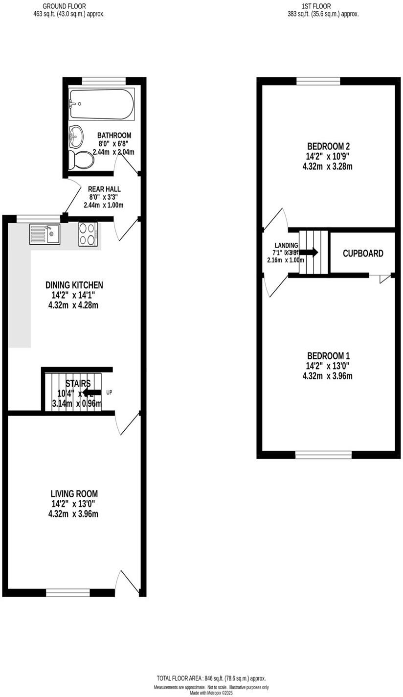
An impressive and spacious two double bedroom mid terrace property located on a highly sought after cul-de-sac location. Situated only moments from local amenities and excellent transport links, the property measures a highly impressive 846 SQ FT. Boasting a large living room, modern fitted dinin...
Property Oracle says ..
Therefore, we give this property 7 / 10. *Disclaimer: This is our option and does constitute a recommendation or financial advice. Do your own research. *
- Price
- 9
- Condition
- 6
- Location
- 8
- Land
- 5
- Bedrooms
- 2
- Bathrooms
- 1
- Sqft (est)
- 846.04
The heatmap indicates the level of crime in the area. The color of the heatmap indicates the crime severity and recency.
Metrics Year-on-Year
- Average area value
- 320,833.00 £Increased by 5.35 %
- Est sale value
- 434,018.52 £Increased by 67.10 %
- Average area rental value
- 1,380.00 £/moDecreased by 15.49 %
- Est letting value
- 1,692.08 £/moIncreased by 100.00 %
- Est rental Yield
- 5.16 %Decreased by 19.75 %
- Crime Rate
- 0.00 %
from 304,545.00 £
from 259,734.28 £
from 1,633.00 £/mo
from 846.04 £/mo
from 6.43 %
from 0.00 %
Agent Activity
Gascoigne Halman created the listing.
Nearby Schools
| Name | Type | Ofsted | Distance |
|---|---|---|---|
| Green End Primary School | Academy Converter | Outstanding | 0.28 KM |
| St Bernard'S Rc Primary School Manchester | Voluntary Aided School | Good | 0.29 KM |
| Burnage Sure Start Children'S Centre | Children's Centre | 0.38 KM | |
| Burnage Academy For Boys | Academy Converter | Outstanding | 0.58 KM |
| Acacias Community Primary School | Community School | Good | 0.67 KM |
Images
Nearby Streets
| Name | Average Price | Average Sqft | Distance |
|---|---|---|---|
| Kenwood Avenue | £ 370,000 | 0 | 0.00 KM |
| Fair Oak Road | £ 350,000 | 0 | 0.00 KM |
| Errwood Road Cycleway | £ 295,000 | 0 | 0.00 KM |
| Henley Place | £ 0 | 0 | 0.00 KM |
| Enfield Avenue | £ 0 | 0 | 0.00 KM |
Nearby Transport
| Name | NLC | TLC | Distance |
|---|---|---|---|
| Mauldeth Road | 2867 | MAU | 0.82 KM |
| Levenshulme | 2862 | LVM | 1.71 KM |
| Burnage | 2945 | BNA | 1.93 KM |
| Heaton Chapel | 2861 | HTC | 2.62 KM |
| East Didsbury | 2949 | EDY | 3.35 KM |
Nearby Listings
| Address | Price | Type | Score | Distance |
|---|---|---|---|---|
| St. Margarets Avenue, Burnage | £ 220,000 | BUY | 7 / 10 | 0.00 KM |
| St Margarets Avenue, Burnage | £ 220,000 | BUY | 6 / 10 | 0.01 KM |
| St. Margarets Avenue, Burnage | £ 230,000 | BUY | 6 / 10 | 0.05 KM |
| St. Margarets Avenue, Manchester, Greater Manchester, M19 | £ 240,000 | BUY | 6 / 10 | 0.06 KM |
| St. Margarets Avenue, Burnage, Manchester, Greater Manchester, M19 | £ 230,000 | BUY | 8 / 10 | 0.06 KM |
Nearby Properties
| Address | Price | Distance |
|---|---|---|
| 41 St Margarets Avenue | £ 140,000 | 0.01 KM |
| 45 St Margarets Avenue | £ 171,000 | 0.01 KM |
| 19 St Margarets Avenue | £ 180,000 | 0.01 KM |
| 31 St Margarets Avenue | £ 180,000 | 0.01 KM |
| 53 St Margarets Avenue | £ 75,000 | 0.01 KM |