Acorn says ..
* GUIDE PRICE £475,000 - £500,000 * Located in the sought-after residential area, this modern semi-detached house offers a perfect blend of style and functionality. Boasting three bedrooms, this property is ideal for families looking for a comfortable living space. The spac...
Property Oracle says ..
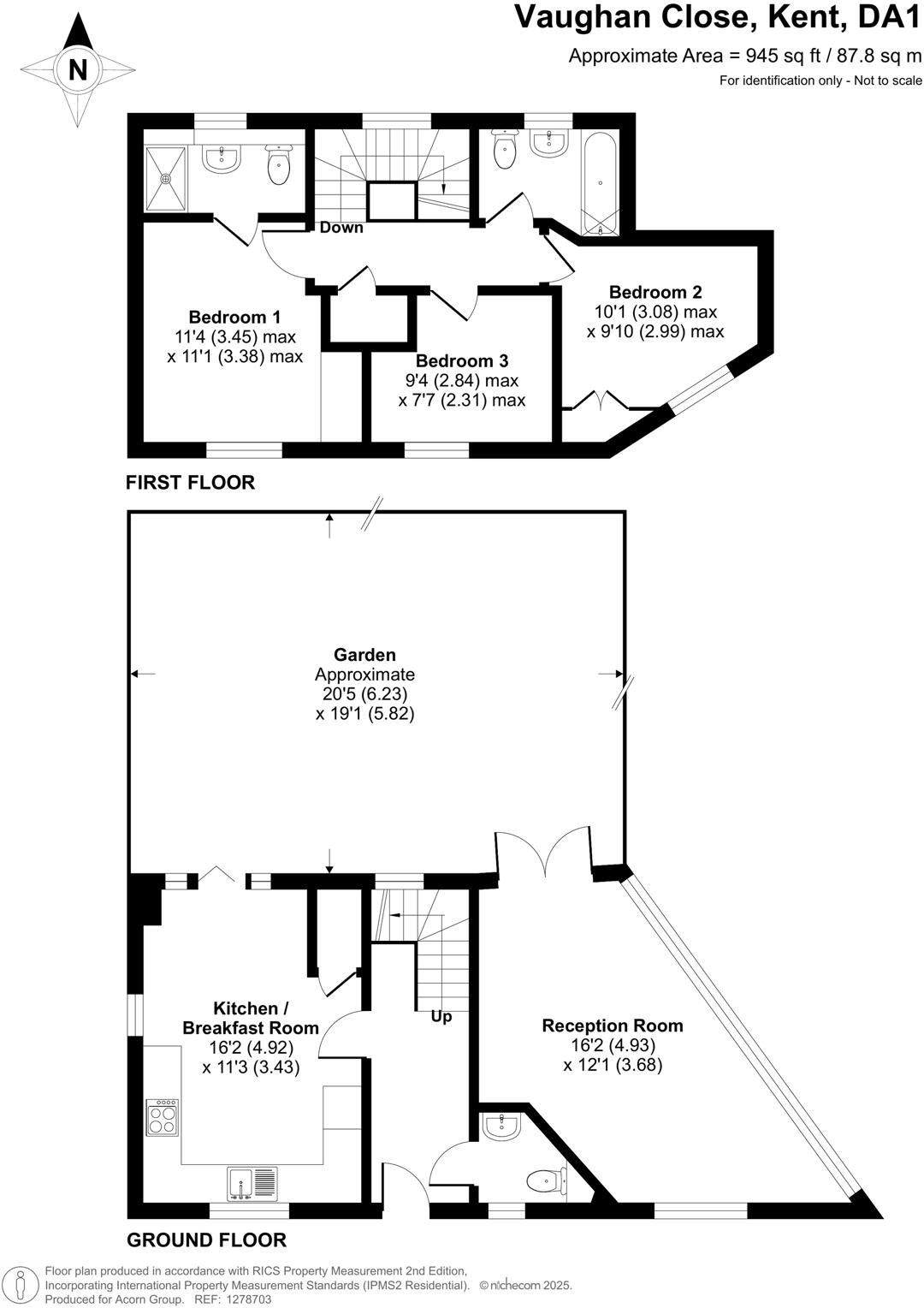
This property is a 3-bedroom, 2-bathroom house located in Dartford, Kent. The house is modern in style and appears to be in good condition, with a small, easily maintained garden. The location is convenient, with nearby schools and transportation links. The list price is slightly above the average for the area, but considering the condition and amenities, it may represent reasonable value.
Therefore, we give this property 7 / 10. *Disclaimer: This is our option and does constitute a recommendation or financial advice. Do your own research. *
- Price
- 7
- Condition
- 9
- Location
- 8
- Land
- 6
- Bedrooms
- 3
- Bathrooms
- 2
- Sqft (est)
- 1,041.00
- Lot (est)
- 945.00
The heatmap indicates the level of crime in the area. The color of the heatmap indicates the crime severity and recency.
Metrics Year-on-Year
- Average area value
- 371,130.00 £Increased by 2.62 %
- Est sale value
- 445,548.00 £Increased by 32.10 %
- Average area rental value
- 1,597.00 £/moIncreased by 9.08 %
- Est letting value
- 1,041.00 £/moUnchanged by 0.00 %
- Est rental Yield
- 5.16 %Increased by 6.17 %
- Crime Rate
- 2.00 %Unchanged by 0.00 %
Agent Activity
Acorn created the listing.
Nearby Schools
| Name | Type | Ofsted | Distance |
|---|---|---|---|
| Westgate Primary School | Academy Sponsor Led | Good | 0.19 KM |
| Our Lady'S Catholic Primary School, Dartford | Voluntary Aided School | Good | 0.72 KM |
| Dartford Grammar School | Academy Converter | 0.79 KM | |
| Oakfield Children'S Centre | Children's Centre | 0.85 KM | |
| Oakfield Primary Academy | Academy Converter | Good | 0.85 KM |
Images
Nearby Streets
| Name | Average Price | Average Sqft | Distance |
|---|---|---|---|
| Highfield Road | £ 0 | 0 | 0.00 KM |
| Heath Street | £ 0 | 0 | 0.00 KM |
| Gordon Road | £ 300,000 | 0 | 0.00 KM |
| Trinity Gardens | £ 0 | 0 | 0.00 KM |
| West Hill Rise | £ 307,500 | 0 | 0.00 KM |
Nearby Transport
| Name | NLC | TLC | Distance |
|---|---|---|---|
| Dartford | 5101 | DFD | 1.07 KM |
| Crayford | 5100 | CRY | 3.69 KM |
| Slade Green | 5154 | SGR | 3.74 KM |
| Farningham Road | 5105 | FNR | 5.16 KM |
| Purfleet | 7453 | PFL | 5.21 KM |
Nearby Listings
| Address | Price | Type | Score | Distance |
|---|---|---|---|---|
| Vaughan Close, Dartford, Kent | £ 475,000 | BUY | 7 / 10 | 0.00 KM |
| Vaughan Close, Dartford | £ 475,000 | BUY | 7 / 10 | 0.02 KM |
| Vaughan Close, Dartford | £ 425,000 | BUY | 6 / 10 | 0.06 KM |
| Baker Crescent, Trinity Fields, Dartford, Kent | £ 185,000 | BUY | 6 / 10 | 0.06 KM |
| Highfield Court, Highfield Road, Dartford, | £ 180,000 | BUY | 6 / 10 | 0.10 KM |
Nearby Properties
| Address | Price | Distance |
|---|---|---|
| 17 Vaughan Close | £ 340,000 | 0.02 KM |
| 18 Vaughan Close | £ 335,000 | 0.02 KM |
| 33 Vaughan Close | £ 195,000 | 0.02 KM |
| 3 Vaughan Close | £ 355,000 | 0.02 KM |
| 35 Vaughan Close | £ 360,000 | 0.02 KM |