Darlows says ..
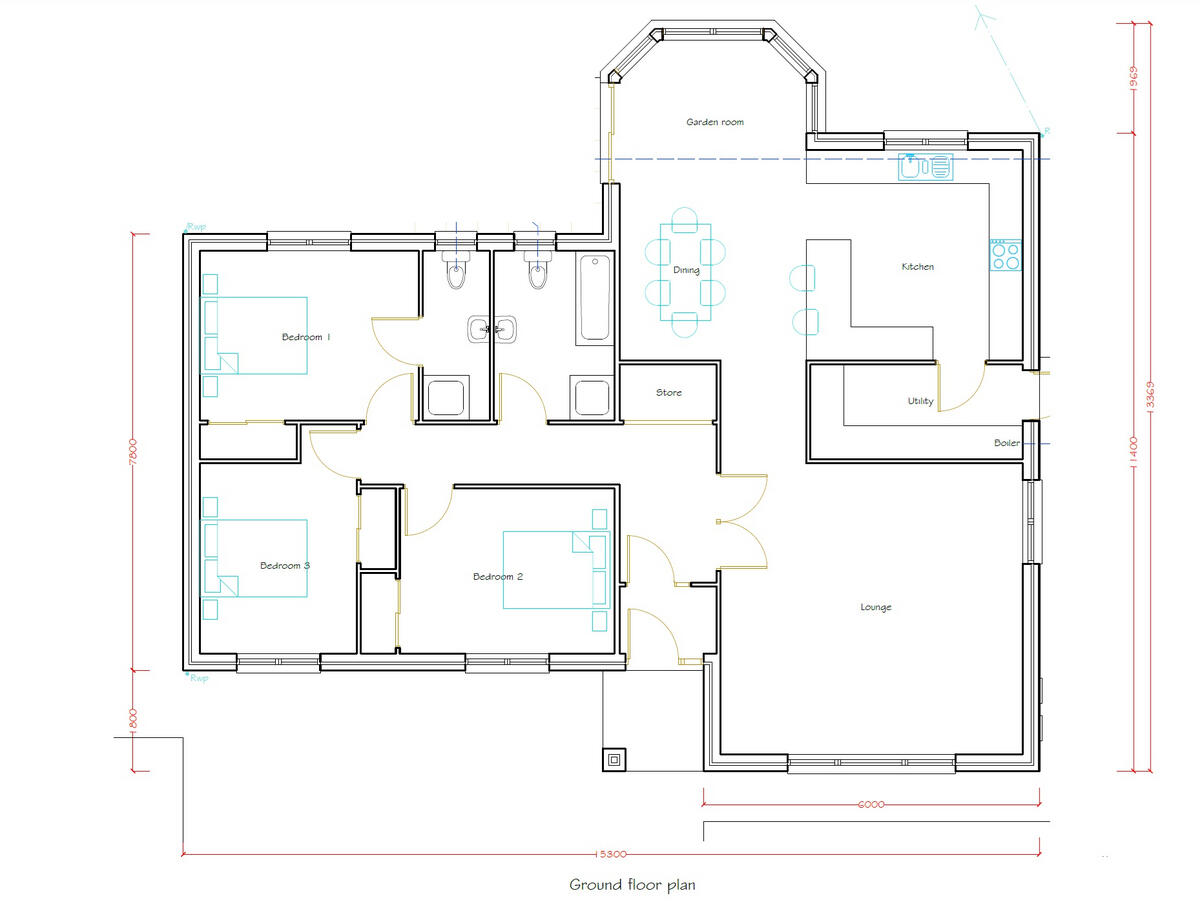
Situated on a desirable, partly established development in the picturesque village of Blaina a plot with full planning for a three bedroom detached bungalow that boasts a stylish garden room & driveway to bespoke and build your dream home - call for more information!
Property Oracle says ..
This is a plot of land located in Blaina, Blaenau Gwent, Wales. The property is listed at £87,500 and is situated in a convenient location near schools and transportation. While the price is significantly lower than the average house price in the area, this is expected given that it is a plot of land rather than a finished property. The surrounding area has several similar plots of land listed at comparable prices. The property includes a garden.
Therefore, we give this property 5 / 10. *Disclaimer: This is our option and does constitute a recommendation or financial advice. Do your own research. *
- Price
- 4
- Condition
- 0
- Location
- 7
- Land
- 5
- Bedrooms
- 0
- Bathrooms
- 0
- Sqft (est)
- 981.00
The heatmap indicates the level of crime in the area. The color of the heatmap indicates the crime severity and recency.
Metrics Year-on-Year
- Average area value
- 300,000.00 £Decreased by 22.28 %
- Est sale value
- 414,963.00 £Decreased by 3.86 %
- Average area rental value
- 1,073.00 £/moDecreased by 13.47 %
- Est letting value
- 981.00 £/moUnchanged by 0.00 %
- Est rental Yield
- 4.29 %Increased by 11.43 %
- Crime Rate
- 8.00 %Unchanged by 0.00 %
Agent Activity
Darlows created the listing.
Nearby Schools
| Name | Type | Ofsted | Distance |
|---|---|---|---|
| St Illtyd'S | Welsh Establishment | 0.14 KM | |
| Ystruth Primary | Welsh Establishment | 0.51 KM | |
| Coed -Y- Garn Primary School | Welsh Establishment | 1.77 KM | |
| Blaen-Y-Cwm C.P. School | Welsh Establishment | 3.87 KM | |
| St Mary'S Roman Catholic - Brynmawr | Welsh Establishment | 3.99 KM |
Images
Nearby Streets
| Name | Average Price | Average Sqft | Distance |
|---|---|---|---|
| Southlands | £ 110,000 | 0 | 0.00 KM |
| East Pen-Twyn | £ 111,667 | 0 | 0.00 KM |
| South Lands | £ 120,000 | 0 | 0.00 KM |
| Caddick's Row | £ 0 | 0 | 0.00 KM |
| Attlee Road | £ 100,000 | 0 | 0.00 KM |
Nearby Transport
| Name | NLC | TLC | Distance |
|---|---|---|---|
| Ebbw Vale Parkway | 9915 | EBV | 5.25 KM |
| Ebbw Vale Town | 3628 | EBB | 5.87 KM |
| Llanhilleth | 9916 | LTH | 7.78 KM |
Nearby Listings
| Address | Price | Type | Score | Distance |
|---|---|---|---|---|
| Beech Tree Crescent, Blaina | £ 119,000 | BUY | Unknown | 0.00 KM |
| Beech Tree Crescent, Blaina | £ 92,500 | BUY | 6 / 10 | 0.00 KM |
| Beech Tree Crescent, Blaina | £ 87,500 | BUY | 5 / 10 | 0.00 KM |
| Beech Tree Crescent, Blaina | £ 119,000 | BUY | Unknown | 0.00 KM |
| Beech Tree Crescent, Blaina | £ 85,000 | BUY | 7 / 10 | 0.00 KM |
Nearby Properties
| Address | Price | Distance |
|---|---|---|
| 22 Beech Tree Crescent | £ 310,000 | 0.02 KM |
| 4 Beech Tree Crescent | £ 262,500 | 0.03 KM |
| 20 Beech Tree Crescent | £ 275,000 | 0.03 KM |
| 6 Beech Tree Crescent | £ 249,000 | 0.03 KM |
| 14 Beech Tree Crescent | £ 250,000 | 0.04 KM |