masonbryant says ..
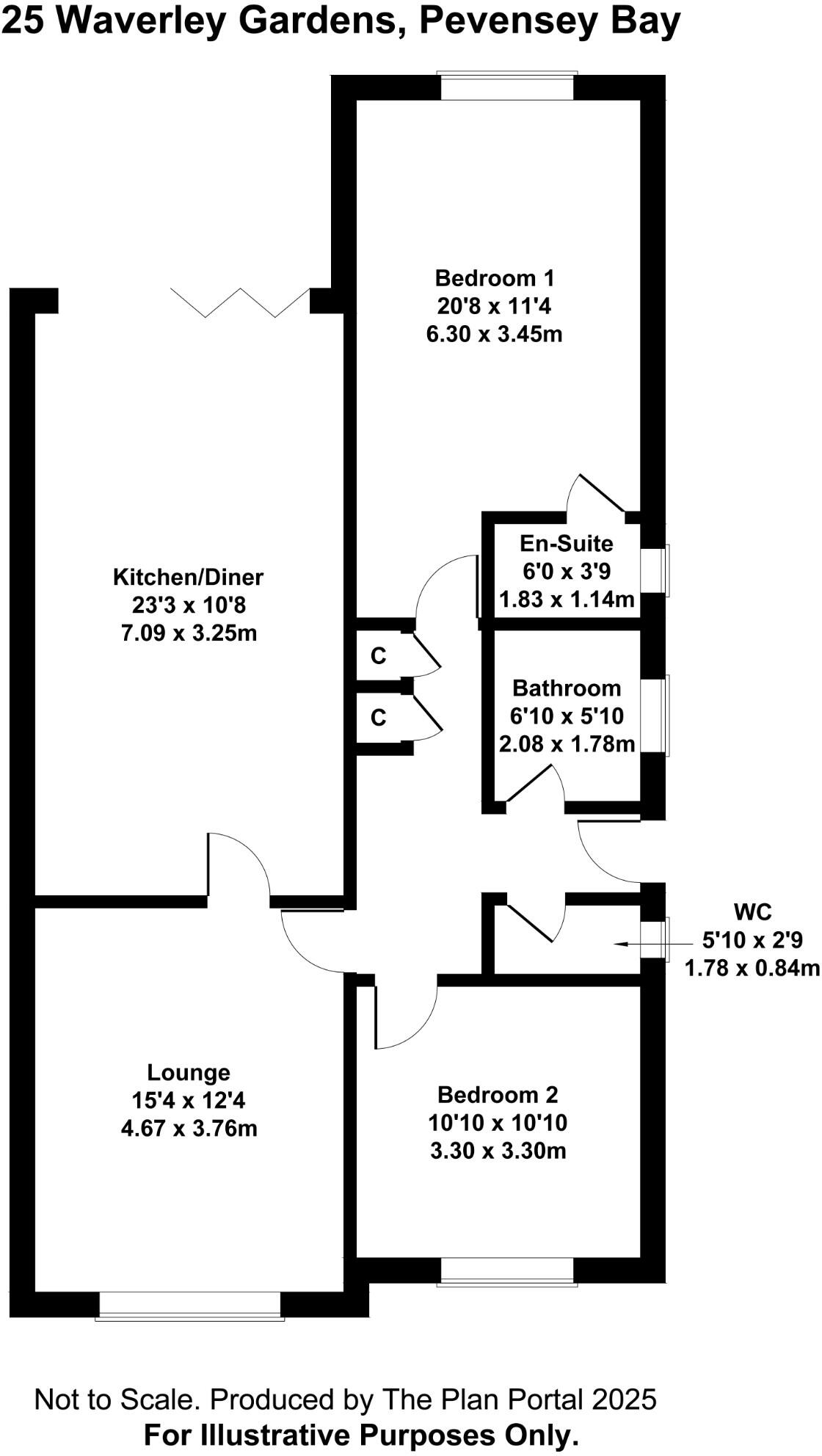
*Guide price £425,000 - £450,000* AN EXTENDED AND MUCH IMPROVED TWO BEDROOM DETACHED BUNGALOW NESTLED IN A PEACEFUL LOCATION BEING WITHIN EASY REACH OF THE VILLAGE AND BEACH
Property Oracle says ..
Therefore, we give this property 7 / 10. *Disclaimer: This is our option and does constitute a recommendation or financial advice. Do your own research. *
- Price
- 7
- Condition
- 9
- Location
- 7
- Land
- 8
- Bedrooms
- 2
- Bathrooms
- 2
- Sqft (est)
- 853.34
The heatmap indicates the level of crime in the area. The color of the heatmap indicates the crime severity and recency.
Metrics Year-on-Year
- Average area value
- 1,332,494.00 £Increased by 19.68 %
- Est sale value
- 1,191,262.64 £Increased by 164.90 %
- Average area rental value
- 1,800.00 £/moDecreased by 54.11 %
- Est letting value
- 853.34 £/moUnchanged by 0.00 %
- Est rental Yield
- 1.62 %Decreased by 61.70 %
- Crime Rate
- 22.00 %Unchanged by 0.00 %
from 1,113,335.00 £
from 449,710.18 £
from 3,922.00 £/mo
from 853.34 £/mo
from 4.23 %
from 22.00 %
Agent Activity
masonbryant created the listing.
Nearby Schools
| Name | Type | Ofsted | Distance |
|---|---|---|---|
| Pevensey And Westham Cofe Primary School | Voluntary Controlled School | Good | 2.57 KM |
| St Catherine'S College | Academy Converter | Good | 4.19 KM |
| Langney Primary Academy | Academy Converter | 4.46 KM | |
| The Haven Voluntary Aided Cofe/Methodist Primary School | Voluntary Aided School | Good | 4.48 KM |
| West Rise Junior School | Community School | Good | 5.52 KM |
Images
Nearby Streets
| Name | Average Price | Average Sqft | Distance |
|---|---|---|---|
| Channel View Road | £ 0 | 0 | 0.00 KM |
| Western Road | £ 0 | 0 | 0.00 KM |
| Leyland Road | £ 0 | 0 | 0.00 KM |
| The Parade | £ 0 | 0 | 0.00 KM |
| Haven Close | £ 280,000 | 0 | 0.00 KM |
Nearby Transport
| Name | NLC | TLC | Distance |
|---|---|---|---|
| Pevensey Bay | 5462 | PEB | 1.04 KM |
| Pevensey And Westham | 5461 | PEV | 2.98 KM |
| Normans Bay | 5460 | NSB | 4.38 KM |
| Hampden Park (Sussex) | 5450 | HMD | 8.25 KM |
| Cooden Beach | 5458 | COB | 8.57 KM |
Nearby Listings
| Address | Price | Type | Score | Distance |
|---|---|---|---|---|
| Waverley Gardens, BN24 | £ 425,000 | BUY | Unknown | 0.00 KM |
| Waverley Gardens, BN24 | £ 425,000 | BUY | 7 / 10 | 0.00 KM |
| Waverley Gardens, Pevensey Bay, East Sussex, BN24 | £ 230,000 | BUY | Unknown | 0.01 KM |
| Waverley Gardens, Pevensey Bay, Pevensey, BN24 6LB | £ 390,000 | BUY | 7 / 10 | 0.01 KM |
| 62 Waverley Gardens, Pevensey Bay, Pevensey, East Sussex, BN24 6LB | £ 230,000 | BUY | Unknown | 0.05 KM |
Nearby Properties
| Address | Price | Distance |
|---|---|---|
| 63 Waverley Gardens | £ 215,000 | 0.00 KM |
| 59 Waverley Gardens | £ 205,000 | 0.00 KM |
| 5 Waverley Gardens | £ 249,950 | 0.00 KM |
| 25 Waverley Gardens | £ 85,000 | 0.00 KM |
| 12 Waverley Gardens | £ 320,000 | 0.00 KM |