Channel Lea, Walmer, CT14
By Jenkinson Estates
£ 425,000
Reviews
3 out of 5 stars
Jenkinson Estates says ..
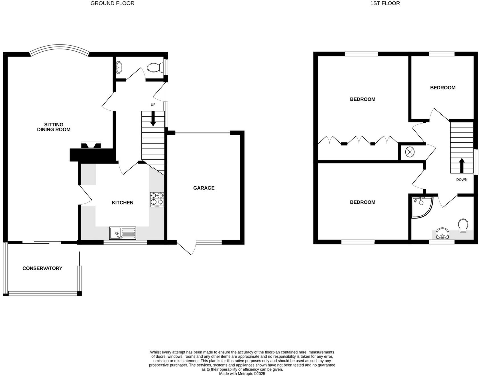
Jenkinson Estates are pleased to bring to the market this detached home in the sought after cul-de-sac location of Channel Lea, Walmer. The spacious accommodation comprises of an entrance hallway, a sitting / dining room, a separate W.C, kitchen and a conservatory. The first floor continues to im...
Property Oracle says ..
This is a detached property in Walmer, Kent, listed for £425,000. It features three bedrooms and two bathrooms, with a total square footage of 1,060. The property includes a garden. While the location is desirable, the interior would benefit from modernisation. The price is reasonable considering the location and size of the property, but potential buyers should factor in renovation costs.
Therefore, we give this property 6 / 10. *Disclaimer: This is our option and does constitute a recommendation or financial advice. Do your own research. *
- Price
- 7
- Condition
- 5
- Location
- 7
- Land
- 6
- Bedrooms
- 3
- Bathrooms
- 2
- Sqft (est)
- 1,060.00
The heatmap indicates the level of crime in the area. The color of the heatmap indicates the crime severity and recency.
Metrics Year-on-Year
- Average area value
- 438,880.00 £Increased by 10.49 %
- Est sale value
- 475,940.00 £Increased by 19.10 %
- Average area rental value
- 1,343.00 £/moIncreased by 11.73 %
- Est letting value
- 1,060.00 £/moUnchanged by 0.00 %
- Est rental Yield
- 3.67 %Increased by 1.10 %
- Crime Rate
- 4.00 %Unchanged by 0.00 %
Agent Activity
Jenkinson Estates created the listing.
Nearby Schools
| Name | Type | Ofsted | Distance |
|---|---|---|---|
| The Downs Church Of England Primary School | Academy Converter | 0.80 KM | |
| Blossom Children'S Centre | Children's Centre | 0.80 KM | |
| Deal Parochial Church Of England Primary School | Academy Converter | 1.20 KM | |
| Goodwin Academy | Academy Sponsor Led | 1.45 KM | |
| Kingsdown And Ringwould Church Of England Primary School | Academy Converter | Outstanding | 1.84 KM |
Images
Nearby Streets
| Name | Average Price | Average Sqft | Distance |
|---|---|---|---|
| St. Mildreds Court | £ 350,000 | 0 | 0.00 KM |
| Dorset Gardens | £ 0 | 0 | 0.00 KM |
| Clarence Road | £ 0 | 0 | 0.00 KM |
| Sea View Avenue | £ 0 | 0 | 0.00 KM |
| La-Tene | £ 231,500 | 0 | 0.00 KM |
Nearby Transport
| Name | NLC | TLC | Distance |
|---|---|---|---|
| Walmer | 5041 | WAM | 1.42 KM |
| Deal | 5011 | DEA | 2.33 KM |
| Martin Mill | 5040 | MTM | 6.32 KM |
| Sandwich | 5026 | SDW | 9.54 KM |
Nearby Listings
| Address | Price | Type | Score | Distance |
|---|---|---|---|---|
| Channel Lea, Walmer, CT14 | £ 425,000 | BUY | 6 / 10 | 0.00 KM |
| St Mildreds Court, Walmer, Deal, Kent, CT14 | £ 400,000 | BUY | 7 / 10 | 0.07 KM |
| St Mildreds Court, Walmer, Deal, CT14 | £ 300,000 | BUY | 7 / 10 | 0.10 KM |
| St. Mildred's Court, Walmer, Deal, Kent | £ 248,000 | BUY | 7 / 10 | 0.10 KM |
| St. Mildred's Court, Walmer, Deal, Kent | £ 375,000 | BUY | 6 / 10 | 0.10 KM |
Nearby Properties
| Address | Price | Distance |
|---|---|---|
| 42 Channel Lea | £ 560,000 | 0.07 KM |
| 39 Channel Lea | £ 500,000 | 0.07 KM |
| 21 Channel Lea | £ 320,000 | 0.07 KM |
| 25 Channel Lea | £ 290,000 | 0.07 KM |
| 13 Channel Lea | £ 182,000 | 0.07 KM |