Moorfield Drive, Killingworth Village, NE12
By Alexander Hudson Estates
£ 350,000
Reviews
3 out of 5 stars
Alexander Hudson Estates says ..
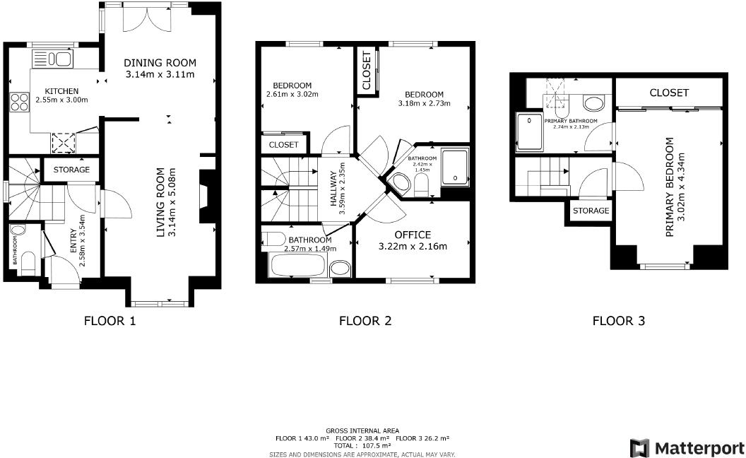
Alexander Hudson Estates introduces to market this immaculately presented, four-bedroom, detached family home with detached garage located on the outskirts of the picturesque Killingworth Village, surrounded by woodland walks and wildlife. With open-plan living throughout ground floor, ...
Property Oracle says ..
This four-bedroom, four-bathroom detached house in Killingworth Village, North Tyneside, presents as a well-maintained and stylish property. The interior photographs show modern fixtures, fittings and décor, suggesting a recently renovated or new build home. The kitchen is contemporary and well-equipped. The living spaces are generously proportioned, benefiting from an open-plan design that creates a spacious and flowing environment. The property also appears to have ample storage space, a key feature for families. While the provided plot size is not specified, the external photographs reveal a paved patio area and a small, enclosed garden. This would suit those seeking a low maintenance outdoor space. Overall, the property offers a modern and comfortable living experience. Its location in Killingworth Village makes it convenient for families, with easy access to good schools and local amenities. The absence of square footage data for many of the comparable properties prevents a precise comparison of its value for money. A visit to the property is recommended to fully assess its suitability to potential buyers. Further investigation is required to determine the property’s full potential and to uncover any potential limitations.
Therefore, we give this property 6 / 10. *Disclaimer: This is our option and does constitute a recommendation or financial advice. Do your own research. *
- Price
- 7
- Condition
- 9
- Location
- 7
- Land
- 4
- Bedrooms
- 4
- Bathrooms
- 4
- Sqft (est)
- 1,157.12
The heatmap indicates the level of crime in the area. The color of the heatmap indicates the crime severity and recency.
Metrics Year-on-Year
- Average area value
- 911,990.00 £Increased by 52.54 %
- Est sale value
- 553,103.36 £Decreased by 4.59 %
- Average area rental value
- 1,200.00 £/moDecreased by 18.81 %
- Est letting value
- 0.00 £/moDecreased by 100.00 %
- Est rental Yield
- 1.58 %Decreased by 46.80 %
- Crime Rate
- 9.00 %Unchanged by 0.00 %
Agent Activity
Alexander Hudson Estates created the listing.
Nearby Schools
| Name | Type | Ofsted | Distance |
|---|---|---|---|
| Ivy Road Primary School | Foundation School | Good | 1.23 KM |
| Amberley Primary School | Foundation School | Good | 1.78 KM |
| Killingworth Children'S Centre | Children's Centre Linked Site | 1.84 KM | |
| Forest Hall Primary School | Foundation School | Good | 1.85 KM |
| Percy Hedley School | Non-maintained Special School | Outstanding | 1.94 KM |
Images
Nearby Streets
| Name | Average Price | Average Sqft | Distance |
|---|---|---|---|
| Hazelwood | £ 0 | 0 | 0.00 KM |
| Percy Street | £ 0 | 0 | 0.00 KM |
| The Spinney | £ 0 | 0 | 0.00 KM |
| Ivy Road | £ 150,000 | 0 | 0.00 KM |
| The Croft | £ 0 | 0 | 0.00 KM |
Nearby Transport
| Name | NLC | TLC | Distance |
|---|---|---|---|
| Cramlington | 7579 | CRM | 8.37 KM |
| Heworth | 7766 | HEW | 8.86 KM |
| Manors | 7603 | MAS | 8.93 KM |
Nearby Listings
| Address | Price | Type | Score | Distance |
|---|---|---|---|---|
| Moorfield Drive, Killingworth Village, NE12 | £ 350,000 | BUY | 6 / 10 | 0.00 KM |
| Moorfield Drive, Killingworth Village, Newcastle Upon Tyne | £ 495,000 | BUY | 7 / 10 | 0.04 KM |
| Village Close, Killingworth Village, Newcastle-Upon-Tyne, NE12 | £ 112,000 | BUY | 6 / 10 | 0.10 KM |
| Quarry Close, Killingworth Village, Newcastle-Upon-Tyne, NE12 | £ 102,500 | BUY | 6 / 10 | 0.16 KM |
| Highfield Place, Killingworth Village, NE12 | £ 425,000 | BUY | 8 / 10 | 0.16 KM |
Nearby Properties
| Address | Price | Distance |
|---|---|---|
| 6 Moorfield Drive | £ 305,000 | 0.04 KM |
| 15 Reme Court | £ 209,995 | 0.14 KM |
| 1 Orchard Close | £ 400,000 | 0.23 KM |
| 13 Orchard Close | £ 243,000 | 0.23 KM |
| 16 Orchard Close | £ 382,500 | 0.24 KM |