Broadland Oxenpill, Meare, Somerset
By holland & odam
£ 430,000
Reviews
3 out of 5 stars
holland & odam says ..
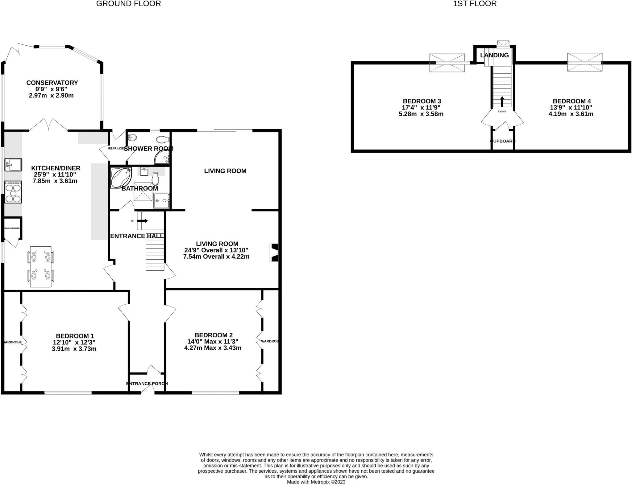
This extended detached, dormer bungalow, provides spacious and well presented accommodation throughout, being situated in a generous plot, set back from the road with parking for several vehicles. The rear garden includes a solid wooden outbuilding, which provides further potential, subject to an...
Property Oracle says ..
This property is a 4-bedroom, 2-bathroom bungalow located in Meare, Somerset. The average house price in the area is £292,744, with an average price per square foot of £254. This property is listed at £430,000 and has 1,960.04 square feet of living space. While the list price is higher than the average for the area, the larger size of this property and its seemingly good condition may justify the higher cost. The property benefits from a good-sized garden, which is a desirable feature in this market. The property appears to be well-maintained and in good condition, with modern features such as a recently updated kitchen and bathrooms. The location is also a positive aspect, with nearby schools and amenities. Overall, this property seems to offer good value for money, considering its size, condition, and location.
Therefore, we give this property 7 / 10. *Disclaimer: This is our option and does constitute a recommendation or financial advice. Do your own research. *
- Price
- 7
- Condition
- 9
- Location
- 8
- Land
- 7
- Bedrooms
- 4
- Bathrooms
- 2
- Sqft (est)
- 1,960.04
The heatmap indicates the level of crime in the area. The color of the heatmap indicates the crime severity and recency.
Metrics Year-on-Year
- Average area value
- 274,990.00 £Decreased by 21.89 %
- Est sale value
- 450,809.20 £Decreased by 31.55 %
- Average area rental value
- 838.00 £/moDecreased by 3.12 %
- Est letting value
- 0.00 £/mo
- Est rental Yield
- 3.66 %Increased by 24.07 %
- Crime Rate
- 23.00 %Unchanged by 0.00 %
Agent Activity
holland & odam created the listing.
Nearby Schools
| Name | Type | Ofsted | Distance |
|---|---|---|---|
| Abbot'S Way School | Other Independent Special School | 0.59 KM | |
| Meare Village Primary School | Community School | Outstanding | 1.38 KM |
| Ashcott Primary School | Community School | Good | 4.70 KM |
| The Levels School | Other Independent Special School | 5.08 KM | |
| Walton Church Of England Voluntary Controlled Primary School | Voluntary Controlled School | Outstanding | 5.78 KM |
Images
Nearby Streets
| Name | Average Price | Average Sqft | Distance |
|---|---|---|---|
| Moorview Close | £ 252,475 | 0 | 0.00 KM |
| Chapel Lane | £ 750,000 | 0 | 0.00 KM |
| Main Road | £ 950,000 | 0 | 0.00 KM |
| Westhay Moor Drove | £ 0 | 0 | 0.00 KM |
Nearby Listings
| Address | Price | Type | Score | Distance |
|---|---|---|---|---|
| Broadland Oxenpill, Meare, Somerset | £ 430,000 | BUY | 7 / 10 | 0.00 KM |
| Oxenpill, Meare, Glastonbury, Somerset, BA6 | £ 475,000 | BUY | 7 / 10 | 0.05 KM |
| Oxenpill, Meare, Meare, BA6 | £ 500,000 | BUY | 7 / 10 | 0.06 KM |
| Oxenpill, Meare, Glastonbury, Somerset, BA6 | £ 525,000 | BUY | 6 / 10 | 0.06 KM |
| Sunnyview, Oxenpill, Meare, Glastonbury, Somerset | £ 395,000 | BUY | Unknown | 0.07 KM |
Nearby Properties
| Address | Price | Distance |
|---|---|---|
| Portway House | £ 315,000 | 0.03 KM |
| Broadland | £ 242,500 | 0.03 KM |
| 35 Oxenpill | £ 45,100 | 0.03 KM |
| 33 Oxenpill | £ 133,000 | 0.03 KM |
| Quarenden House | £ 363,000 | 0.03 KM |