Budworth Drive, Woolton, Liverpool, L25
By Move Residential
£ 300,000
Reviews
3 out of 5 stars
Move Residential says ..
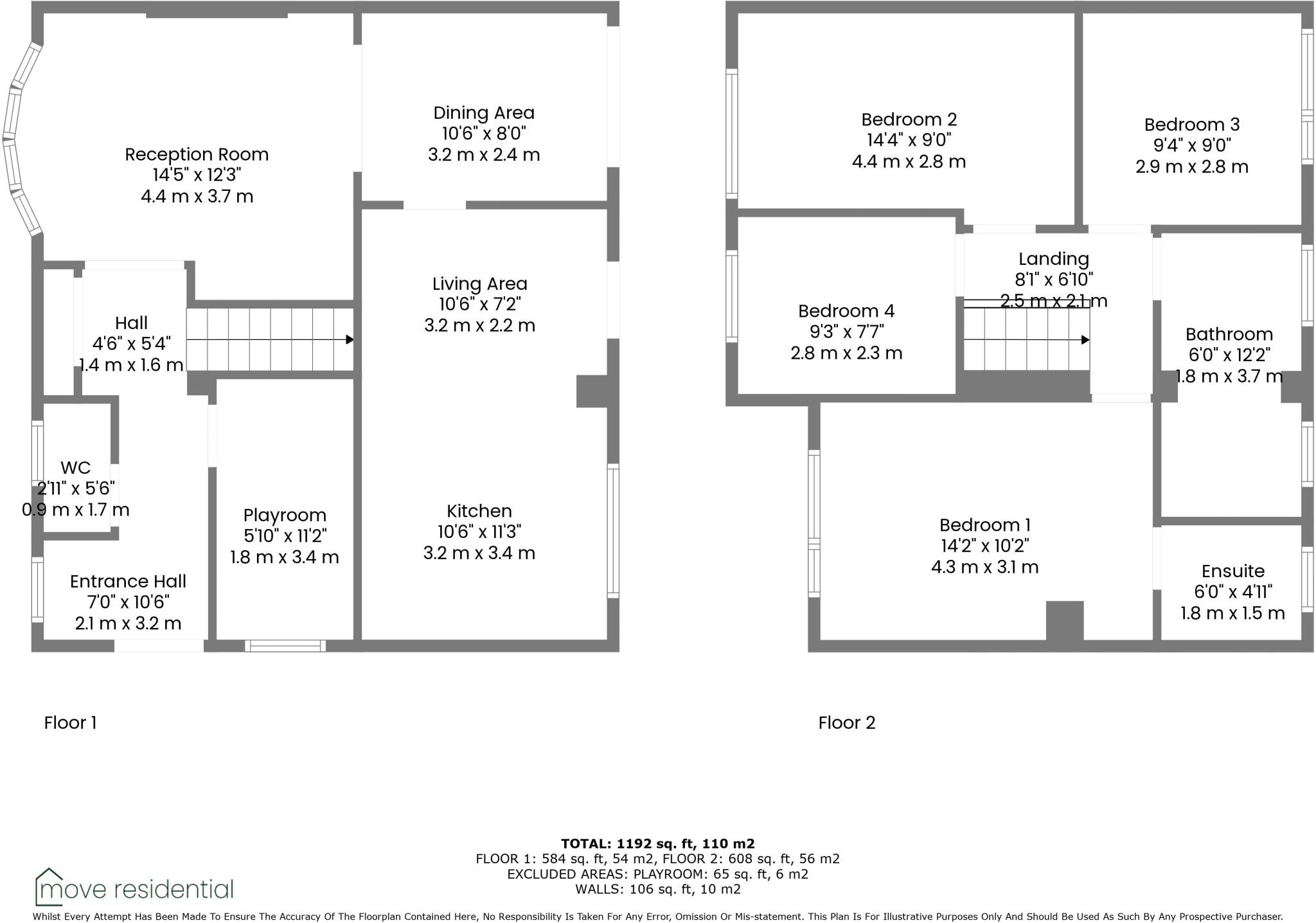
Enjoying a prime location on Budworth Drive in the ever desirable area of Woolton, L25, is this fantastic four bedroom semi detached home, introduced to the sales market by appointed agents Move Residential. Occupying a substantial corner plot, this property offers generous proportions which offe...
Property Oracle says ..
Therefore, we give this property 7 / 10. *Disclaimer: This is our option and does constitute a recommendation or financial advice. Do your own research. *
- Price
- 7
- Condition
- 6
- Location
- 8
- Land
- 7
- Bedrooms
- 4
- Bathrooms
- 2
The heatmap indicates the level of crime in the area. The color of the heatmap indicates the crime severity and recency.
Metrics Year-on-Year
- Average area value
- 366,667.00 £Increased by 37.70 %
- Average area rental value
- 1,041.00 £/moDecreased by 3.25 %
- Est rental Yield
- 3.41 %Decreased by 29.69 %
- Crime Rate
- 11.00 %Unchanged by 0.00 %
from 266,278.00 £
from 1,076.00 £/mo
from 4.85 %
from 11.00 %
Agent Activity
Move Residential created the listing.
Nearby Schools
| Name | Type | Ofsted | Distance |
|---|---|---|---|
| Cherry Tree Sscc | Children's Centre Linked Site | 0.51 KM | |
| Holy Family Catholic Primary School | Voluntary Aided School | Good | 0.68 KM |
| Much Woolton Catholic Primary School | Voluntary Aided School | Good | 1.09 KM |
| Woolton Primary School | Community School | Good | 1.44 KM |
| St Andrew The Apostle Catholic Primary School | Voluntary Aided School | Good | 1.57 KM |
Images
Nearby Streets
| Name | Average Price | Average Sqft | Distance |
|---|---|---|---|
| Halewood Way | £ 230,000 | 0 | 0.00 KM |
| Anzio Row | £ 0 | 0 | 0.00 KM |
| Woodbine Road | £ 0 | 0 | 0.00 KM |
| Manor Way | £ 270,000 | 0 | 0.00 KM |
| Meadow Court | £ 0 | 0 | 0.00 KM |
Nearby Transport
| Name | NLC | TLC | Distance |
|---|---|---|---|
| Hunts Cross | 2235 | HNX | 1.59 KM |
| Halewood | 2295 | HED | 2.48 KM |
| Huyton | 2160 | HUY | 4.06 KM |
| Roby | 2261 | ROB | 4.06 KM |
| Liverpool South Parkway | 9709 | LPY | 4.64 KM |
Nearby Listings
| Address | Price | Type | Score | Distance |
|---|---|---|---|---|
| Budworth Drive, Woolton, Liverpool, L25 | £ 300,000 | BUY | 7 / 10 | 0.00 KM |
| Budworth Drive, Liverpool, Merseyside, L25 | £ 300,000 | BUY | 6 / 10 | 0.00 KM |
| Sudbury Close, Woolton, Liverpool, L25 | £ 270,000 | BUY | 6 / 10 | 0.06 KM |
| Grassington Crescent, Liverpool, Merseyside, L25 | £ 250,000 | BUY | 7 / 10 | 0.07 KM |
| Grassington Crescent Liverpool, L25 9SB | £ 250,000 | BUY | 6 / 10 | 0.07 KM |
Nearby Properties
| Address | Price | Distance |
|---|---|---|
| 14 Budworth Drive | £ 149,995 | 0.01 KM |
| 26 Budworth Drive | £ 158,000 | 0.01 KM |
| 12 Budworth Drive | £ 150,000 | 0.01 KM |
| 1 Budworth Drive | £ 207,500 | 0.01 KM |
| 6 Budworth Drive | £ 157,000 | 0.01 KM |