Bradleys says ..
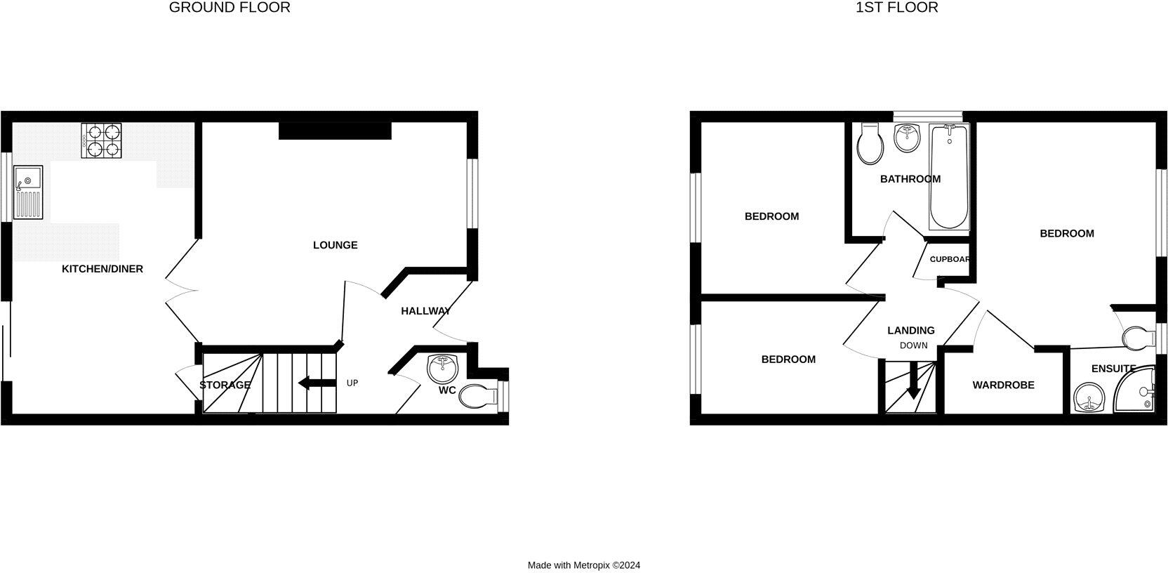
Modern Detached Three-Bedroom Home with Garage, Driveway & Private Garden Offered with no onward chain, this modern detached three-bedroom home features a spacious living room, kitchen/diner with space for appliances, ground floor W/C, two double bedrooms (one with en-suite), a sing...
Property Oracle says ..
Therefore, we give this property 6 / 10. *Disclaimer: This is our option and does constitute a recommendation or financial advice. Do your own research. *
- Price
- 7
- Condition
- 6
- Location
- 7
- Land
- 5
- Bedrooms
- 3
- Bathrooms
- 2
- Sqft (est)
- 979.00
The heatmap indicates the level of crime in the area. The color of the heatmap indicates the crime severity and recency.
Metrics Year-on-Year
- Average area value
- 391,731.00 £Decreased by 6.30 %
- Est sale value
- 323,070.00 £Decreased by 27.79 %
- Average area rental value
- 1,432.00 £/moIncreased by 19.33 %
- Est letting value
- 979.00 £/moUnchanged by 0.00 %
- Est rental Yield
- 4.39 %Increased by 27.62 %
- Crime Rate
- 9.00 %Unchanged by 0.00 %
from 418,080.00 £
from 447,403.00 £
from 1,200.00 £/mo
from 979.00 £/mo
from 3.44 %
from 9.00 %
Agent Activity
Bradleys created the listing.
Nearby Schools
| Name | Type | Ofsted | Distance |
|---|---|---|---|
| Brixington Primary Academy | Academy Sponsor Led | Requires improvement | 0.70 KM |
| Withycombe Raleigh Church Of England Primary School | Voluntary Controlled School | Good | 1.57 KM |
| Bassetts Farm Primary School | Foundation School | Good | 1.66 KM |
| Marpool Primary School | Foundation School | Good | 1.72 KM |
| Exmouth & District Children'S Centre | Children's Centre | 1.77 KM |
Images
Nearby Streets
| Name | Average Price | Average Sqft | Distance |
|---|---|---|---|
| Skylark Way | £ 0 | 0 | 0.00 KM |
| Goldcrest Road | £ 400,000 | 0 | 0.00 KM |
| Fieldfare Crescent | £ 369,950 | 0 | 0.00 KM |
| Kipling Close | £ 450,000 | 0 | 0.00 KM |
| Chestnut Close | £ 385,000 | 0 | 0.00 KM |
Nearby Transport
| Name | NLC | TLC | Distance |
|---|---|---|---|
| Exmouth | 5756 | EXM | 3.21 KM |
| Lympstone Village | 5761 | LYM | 3.83 KM |
| Lympstone Commando | 5762 | LYC | 5.29 KM |
| Exton | 5760 | EXN | 5.91 KM |
| Starcross | 3413 | SCS | 5.93 KM |
Nearby Listings
| Address | Price | Type | Score | Distance |
|---|---|---|---|---|
| Coleridge Close, Exmouth, Devon | £ 350,000 | BUY | 6 / 10 | 0.00 KM |
| Coleridge Close, Exmouth | £ 490,000 | BUY | 7 / 10 | 0.00 KM |
| Fieldfare Crescent, Exmouth | £ 350,000 | BUY | 6 / 10 | 0.09 KM |
| Brittany Road, Exmouth | £ 175,000 | BUY | 6 / 10 | 0.10 KM |
| Dinan Way, Exmouth, EX8 5FP | £ 370,000 | BUY | 7 / 10 | 0.12 KM |
Nearby Properties
| Address | Price | Distance |
|---|---|---|
| 3 Coleridge Close | £ 130,000 | 0.01 KM |
| 14 Coleridge Close | £ 271,000 | 0.01 KM |
| 9 Coleridge Close | £ 104,000 | 0.01 KM |
| 17 Coleridge Close | £ 425,000 | 0.01 KM |
| 11 Coleridge Close | £ 236,950 | 0.01 KM |