Canton Street, Bedford Place, Southampton, Hampshire, SO15
By Charters
£ 350,000
Reviews
3 out of 5 stars
Charters says ..
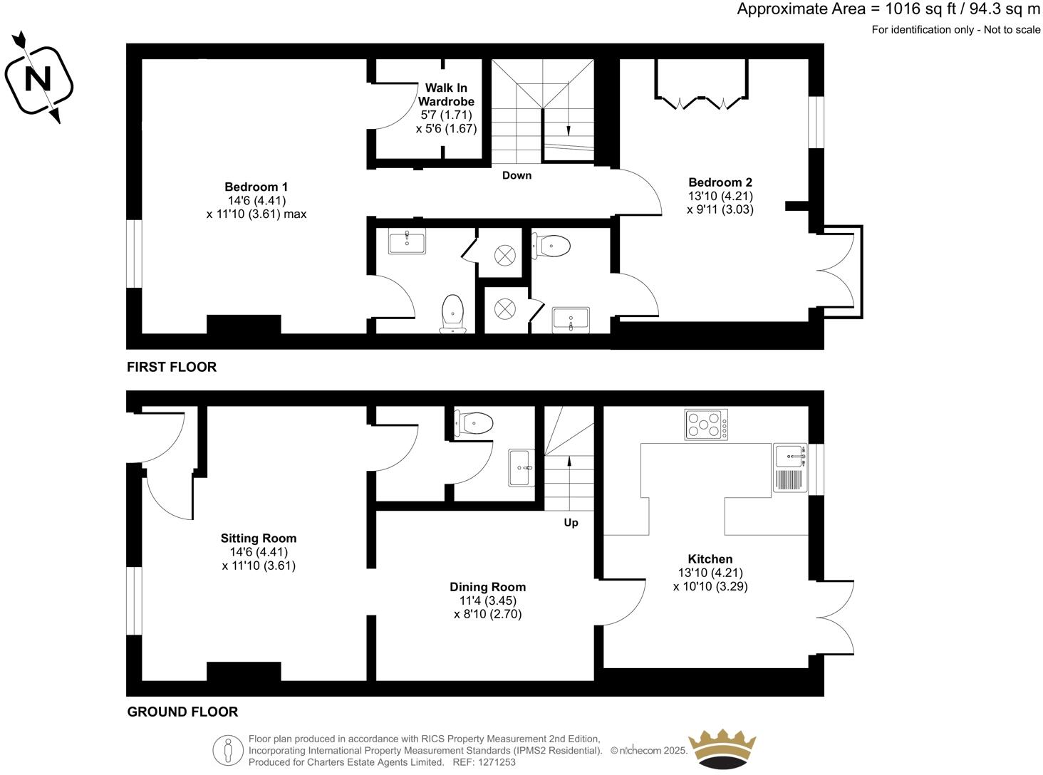
Charters are delighted to bring to the market this charming and characterful well-proportioned Victorian terraced home located towards the end of a quiet no through road within walking distance of the city centre, the central railway station, and the bars cafes and restaurants on Bedford Place an...
Property Oracle says ..
This property is a 2-bedroom, 2-bathroom terraced house located in a desirable area of Southampton. It appears to be in good condition with a small garden. The list price is slightly above average for the area, but may be justified given the property’s condition and location.
Therefore, we give this property 6 / 10. *Disclaimer: This is our option and does constitute a recommendation or financial advice. Do your own research. *
- Price
- 7
- Condition
- 8
- Location
- 9
- Land
- 3
- Bedrooms
- 2
- Bathrooms
- 2
- Sqft (est)
- 704.00
The heatmap indicates the level of crime in the area. The color of the heatmap indicates the crime severity and recency.
Metrics Year-on-Year
- Average area value
- 222,098.00 £Decreased by 0.46 %
- Est sale value
- 219,648.00 £Increased by 7.96 %
- Average area rental value
- 1,204.00 £/moDecreased by 7.81 %
- Est letting value
- 704.00 £/moUnchanged by 0.00 %
- Est rental Yield
- 6.51 %Decreased by 7.26 %
- Crime Rate
- 9.00 %Unchanged by 0.00 %
Agent Activity
Charters created the listing.
Nearby Schools
| Name | Type | Ofsted | Distance |
|---|---|---|---|
| St Anne'S Catholic School | Academy Converter | Outstanding | 0.28 KM |
| Banister Primary School | Foundation School | Good | 0.46 KM |
| The Polygon School | Foundation Special School | Good | 0.64 KM |
| Springhill Catholic Primary School | Academy Converter | 0.80 KM | |
| Portswood Sure Start Childrens Centre | Children's Centre | 0.92 KM |
Images
Nearby Streets
| Name | Average Price | Average Sqft | Distance |
|---|---|---|---|
| Grosvenor Square | £ 0 | 0 | 0.00 KM |
| Leroux Close | £ 0 | 0 | 0.00 KM |
| Commercial Road | £ 0 | 0 | 0.00 KM |
| Morris Road | £ 0 | 0 | 0.00 KM |
| Windsor Terrace | £ 0 | 0 | 0.00 KM |
Nearby Transport
| Name | NLC | TLC | Distance |
|---|---|---|---|
| Southampton Central | 5932 | SOU | 0.91 KM |
| St Denys | 5914 | SDN | 2.41 KM |
| Millbrook (Hants) | 5909 | MBK | 2.91 KM |
| Bitterne | 5945 | BTE | 3.43 KM |
| Woolston | 5925 | WLS | 3.72 KM |
Nearby Listings
| Address | Price | Type | Score | Distance |
|---|---|---|---|---|
| Canton Street, Bedford Place, Southampton, Hampshire, SO15 | £ 350,000 | BUY | 6 / 10 | 0.00 KM |
| Canton Street, Bedford Place, Southampton, Hampshire, SO15 | £ 350,000 | BUY | 6 / 10 | 0.04 KM |
| Canton Street, Bedford Place, Southampton, Hampshire, SO15 | £ 350,000 | BUY | Unknown | 0.04 KM |
| Canton Street, Bedford Place, Southampton, Hampshire, SO15 | £ 325,000 | BUY | 6 / 10 | 0.04 KM |
| Amoy Street, Bedford Place, Southampton, Hampshire, SO15 | £ 400,000 | BUY | 6 / 10 | 0.07 KM |
Nearby Properties
| Address | Price | Distance |
|---|---|---|
| 7 Canton Street | £ 325,000 | 0.01 KM |
| 19 Canton Street | £ 309,000 | 0.01 KM |
| 27 Canton Street | £ 315,000 | 0.01 KM |
| 23 Canton Street | £ 280,000 | 0.01 KM |
| 5 Canton Street | £ 262,000 | 0.01 KM |