Egg Pie Lane, Hildenborough, Tonbridge, Kent, TN11.
By Knight Frank
£ 2,500,000
Reviews
4 out of 5 stars
Knight Frank says ..
A beautifully located and designed family home set in approximately 9 acres and within easy reach of nearby Sevenoaks. Surrounded by the Kent countryside yet within 1.2 miles of a mainline train station to London Bridge, this architecturally designed modern family home (built in 2009) provides a...
Property Oracle says ..
The property is located in Hildenborough, Kent, a desirable area known for its excellent schools and convenient access to transport links. The proximity to Hildenborough train station, providing links to London and other major cities, is a significant advantage. Several well-regarded primary and secondary schools are within a reasonable distance, making it an attractive option for families. The surrounding area appears to offer a mix of residential properties and green spaces.
Based on the provided images, the property seems to be in good condition. The interior is well-maintained and presented, with features suggesting recent modernization or refurbishment. The property displays a traditional style with modern updates. There is no visible evidence of significant repairs or renovations being required. The exterior also appears well-kept.
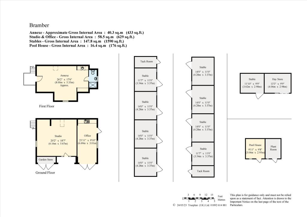
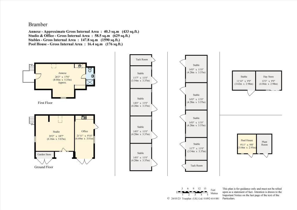
The property includes extensive grounds, featuring a swimming pool, outbuildings, and paddocks. The substantial land area is a major asset, enhancing the property’s appeal and potential for various uses. The size of the land is a significant factor in the overall value of the property.
The list price of £2,500,000 is considerably higher than the average house price in the area (£269,779). However, this is likely due to the property’s size, condition, and the significant amount of land included. Comparable properties in the vicinity have sold for prices ranging from £875,000 to £3,250,000. Considering the property’s features and the high demand for properties in this location, the list price may be justified, although a detailed square footage analysis would be needed to confirm the price per square foot value against comparable properties. The lack of square footage information prevents a precise assessment of value per square foot.
Therefore, we give this property 8 / 10. *Disclaimer: This is our option and does constitute a recommendation or financial advice. Do your own research. *
- Price
- 7
- Condition
- 9
- Location
- 9
- Land
- 10
- Bedrooms
- 7
- Bathrooms
- 6
The heatmap indicates the level of crime in the area. The color of the heatmap indicates the crime severity and recency.
Metrics Year-on-Year
- Average area value
- 1,041,667.00 £Increased by 24.19 %
- Average area rental value
- 2,825.00 £/moIncreased by 15.31 %
- Est rental Yield
- 3.25 %Decreased by 7.41 %
- Crime Rate
- 0.00 %
Agent Activity
Knight Frank created the listing.
Nearby Schools
| Name | Type | Ofsted | Distance |
|---|---|---|---|
| Leigh Primary School | Community School | Requires improvement | 2.81 KM |
| Fosse Bank School | Other Independent School | 2.90 KM | |
| Weald Community Primary School | Community School | Good | 2.98 KM |
| Sackville School | Other Independent School | 3.32 KM | |
| Hildenborough Church Of England Primary School | Voluntary Controlled School | Good | 3.70 KM |
Images
Nearby Streets
| Name | Average Price | Average Sqft | Distance |
|---|---|---|---|
| Tonbridge Bypass | £ 762,500 | 0 | 0.00 KM |
Nearby Transport
| Name | NLC | TLC | Distance |
|---|---|---|---|
| Hildenborough | 5236 | HLB | 2.33 KM |
| Leigh (Kent) | 5294 | LIH | 2.99 KM |
| Penshurst | 5477 | PHR | 4.56 KM |
| Sevenoaks | 5124 | SEV | 6.88 KM |
| Tonbridge | 5229 | TON | 7.74 KM |
Nearby Listings
| Address | Price | Type | Score | Distance |
|---|---|---|---|---|
| Egg Pie Lane, Hildenborough, Tonbridge, Kent, TN11. | £ 2,500,000 | BUY | 8 / 10 | 0.00 KM |
| Eggpie Lane, Hildenborough, Tonbridge, Kent, TN11 | £ 1,000,000 | BUY | 7 / 10 | 0.08 KM |
| Egg Pie Lane, Hildenborough, Tonbridge, TN11 | £ 1,395,000 | BUY | Unknown | 0.29 KM |
| Nizels Lane, Hildenborough, Tonbridge, Kent, TN11 | £ 875,000 | BUY | 5 / 10 | 0.71 KM |
| Philpots Lane, Hildenborough, Tonbridge, Kent | £ 2,995,000 | BUY | 7 / 10 | 0.82 KM |
Nearby Properties
| Address | Price | Distance |
|---|---|---|
| Wild Acre | £ 1,000,000 | 0.53 KM |
| Philpots Lodge | £ 345,000 | 0.80 KM |
| The Haysel | £ 2,750,000 | 0.80 KM |
| Philpots Manor | £ 930,000 | 0.80 KM |
| Cherry Hay | £ 1,500,000 | 0.80 KM |