Shelf Hall Lane, Halifax
ED

Shelf Hall Lane, Halifax

By Edkins & Holmes Estate Agents Ltd

£ 350,000

Reviews

3 out of 5 stars

Edkins & Holmes Estate Agents Ltd says ..

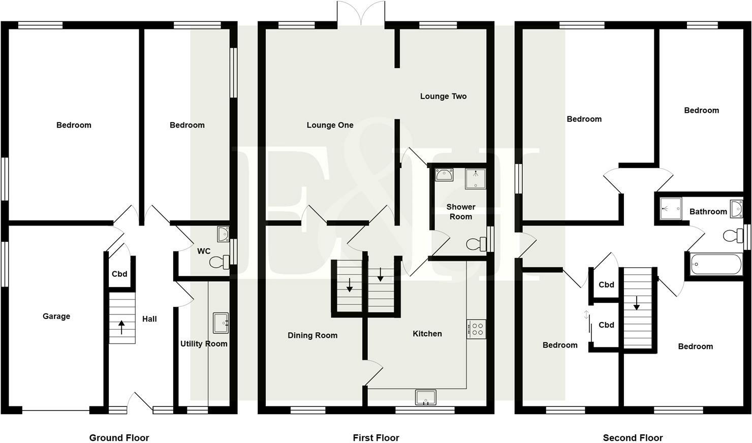
This substantial six bedroom property in the popular village of Shelf on the outskirts of Halifax offers ample living accommodation for a large family and even the potential to create a self contained apartment to the ground floor, subject to planning (plans the current owner has drawn up availab...

Property Oracle says ..

This six-bedroom, two-bathroom detached property in Shelf, Halifax, presents a compelling proposition for families or investors seeking a sizable home in a desirable location. The house’s considerable size and proximity to Shelf Junior and Infant school are significant advantages. The nearby transport links to Halifax provide good accessibility for commuters.

However, prospective buyers should be aware that the property’s interior requires modernisation. The kitchen, bathrooms and decor appear dated, indicating a potential need for renovations to update the property to current standards. The current photos reflect this need.

The property’s land area appears modest in size, as observed from the exterior photos. The garden space, while functional, is relatively small compared to the overall footprint of the property.

Overall, this property offers substantial living space and a convenient location, but potential buyers should factor in the costs of refurbishment and the relatively compact garden space when assessing its value. A professional survey is advisable to fully assess the condition of the property and to identify any potential structural issues or repairs that may be required.

Therefore, we give this property 6 / 10. *Disclaimer: This is our option and does constitute a recommendation or financial advice. Do your own research. *

Price
7
Condition
6
Location
7
Land
4
Bedrooms
6
Bathrooms
2
Sqft (est)
1,200.00

The heatmap indicates the level of crime in the area. The color of the heatmap indicates the crime severity and recency.

Metrics Year-on-Year

Average area value
482,500.00 £
Decreased by 52.31 %
from 1,011,711.00 £
Est sale value
984,000.00 £
Increased by 5.53 %
from 932,400.00 £
Average area rental value
2,188.00 £/mo
Increased by 5.19 %
from 2,080.00 £/mo
Est letting value
3,600.00 £/mo
Increased by 200.00 %
from 1,200.00 £/mo
Est rental Yield
5.44 %
Increased by 120.24 %
from 2.47 %
Crime Rate
32.00 %
Unchanged by 0.00 %
from 32.00 %

Agent Activity

  • Edkins & Holmes Estate Agents Ltd created the listing.

Nearby Schools

NameTypeOfstedDistance
Shelf Junior And Infant SchoolCommunity SchoolGood0.25 KM
Millcourt SchoolOther Independent Special School1.15 KM
Northowram Primary SchoolCommunity SchoolOutstanding1.51 KM
St Michael And All Angels Cofe Primary & Pre SchoolFoundation SchoolGood1.68 KM
Home Farm Primary SchoolCommunity SchoolGood2.33 KM

Images

IMGP7603.jpg IMGP7565.jpg IMGP7548.jpg IMGP7560.jpg IMGP7612.jpg IMGP7566.jpg IMGP7567.jpg IMGP7563.jpg IMGP7555.jpg IMGP7553.jpg IMGP7575.jpg IMGP7556.jpg IMGP7551.jpg IMGP7578.jpg IMGP7571.jpg IMGP7576.jpg IMGP7589.jpg IMGP7583.jpg IMGP7584.jpg IMGP7586.jpg IMGP7590.jpg IMGP7599.jpg IMGP7601.jpg IMGP7606.jpg IMGP7608.jpg IMGP7609.jpg IMGP7613.jpg IMGP7610.jpg

Nearby Streets

NameAverage PriceAverage SqftDistance
Hartley Bank Lane £ 000.00 KM
Aspen Grove £ 535,00000.00 KM
Spruce Drive £ 325,00000.00 KM
Bowl Shaw Lane £ 000.00 KM
The Rise £ 000.00 KM

Nearby Transport

NameNLCTLCDistance
Halifax8411HFX4.71 KM
Brighouse8514BGH7.38 KM
Low Moor8416LMR7.58 KM
Bradford Interchange8345BDI9.25 KM
Bradford Forster Square8346BDQ9.28 KM

Nearby Listings

AddressPriceTypeScoreDistance
Shelf Hall Lane, Halifax £ 350,000BUY6 / 100.00 KM
West Street, Shelf, Halifax £ 100,000BUY5 / 100.09 KM
Beechwood Avenue, Shelf, Halifax, West Yorkshire, HX3 £ 220,000BUY6 / 100.11 KM
West Street, Shelf, Halifax £ 145,000BUY6 / 100.13 KM
Sandmoor Gardens, Halifax, West Yorkshire, HX3 £ 365,000BUY6 / 100.14 KM

Nearby Properties

AddressPriceDistance
17 Beechwood Avenue £ 178,0000.13 KM
10 Beechwood Avenue £ 155,0000.13 KM
20 Beechwood Avenue £ 169,0000.13 KM
4 Beechwood Avenue £ 142,0000.13 KM
18 Beechwood Avenue £ 122,5000.13 KM