Gascoigne Halman says ..
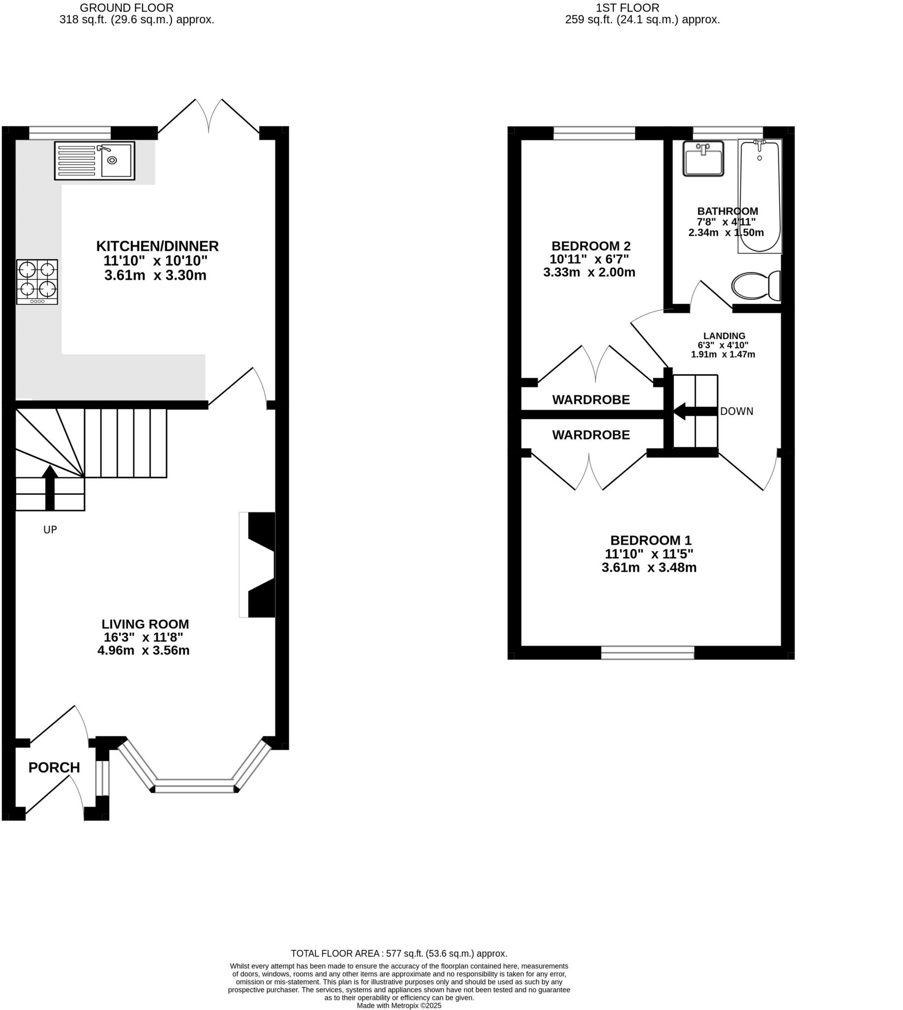
An immaculate two double bedroom modern mews property boasting beautifully presented accommodation with a stylish dining kitchen, good-size South facing garden and two private parking spaces. Sold with no chain.
Property Oracle says ..
This is a well-presented terraced property in a sought-after location in Wilmslow. The house benefits from a modern interior, a garden, and proximity to local amenities, schools, and transportation links. The asking price appears to be in line with the market value for similar properties in the area. The property is ideal for first-time buyers, small families, or those looking to downsize.
Therefore, we give this property 7 / 10. *Disclaimer: This is our option and does constitute a recommendation or financial advice. Do your own research. *
- Price
- 7
- Condition
- 8
- Location
- 7
- Land
- 6
- Bedrooms
- 2
- Bathrooms
- 1
- Sqft (est)
- 576.95
The heatmap indicates the level of crime in the area. The color of the heatmap indicates the crime severity and recency.
Metrics Year-on-Year
- Average area value
- 717,500.00 £Increased by 25.99 %
- Est sale value
- 655,992.15 £Increased by 292.07 %
- Average area rental value
- 1,988.00 £/moDecreased by 6.36 %
- Est letting value
- 1,730.85 £/moIncreased by 200.00 %
- Est rental Yield
- 3.32 %Decreased by 25.73 %
- Crime Rate
- 3.00 %Unchanged by 0.00 %
Agent Activity
Gascoigne Halman created the listing.
Nearby Schools
| Name | Type | Ofsted | Distance |
|---|---|---|---|
| Oakenclough & Poynyon Children'S Centre | Children's Centre | 1.02 KM | |
| Lacey Green Primary Academy | Academy Converter | 1.52 KM | |
| Wilmslow Preparatory School | Other Independent School | 1.76 KM | |
| The Wilmslow Academy | Academy Converter | Good | 1.80 KM |
| Wilmslow High School | Community School | Good | 1.81 KM |
Images
Nearby Streets
| Name | Average Price | Average Sqft | Distance |
|---|---|---|---|
| Alveston Drive | £ 0 | 0 | 0.00 KM |
| Bankside Close | £ 0 | 0 | 0.00 KM |
| The Regents | £ 0 | 0 | 0.00 KM |
| Elm Grange | £ 0 | 0 | 0.00 KM |
| Gleneagles Close | £ 450,000 | 0 | 0.00 KM |
Nearby Transport
| Name | NLC | TLC | Distance |
|---|---|---|---|
| Wilmslow | 2774 | WML | 1.15 KM |
| Handforth | 2767 | HTH | 1.45 KM |
| Styal | 2868 | SYA | 2.58 KM |
| Alderley Edge | 2760 | ALD | 3.96 KM |
| Heald Green | 2860 | HDG | 4.14 KM |
Nearby Listings
| Address | Price | Type | Score | Distance |
|---|---|---|---|---|
| Shargate Close, Wilmslow | £ 318,500 | BUY | 7 / 10 | 0.00 KM |
| Chadwick Close, Wilmslow | £ 360,000 | BUY | 6 / 10 | 0.05 KM |
| Barford Drive, Wilmslow, SK9 | £ 445,000 | BUY | 7 / 10 | 0.10 KM |
| Barford Drive, Wilmslow | £ 295,000 | BUY | Unknown | 0.13 KM |
| Bridgefield Avenue, Wilmslow | £ 825,000 | BUY | 7 / 10 | 0.13 KM |
Nearby Properties
| Address | Price | Distance |
|---|---|---|
| 3 Shargate Close | £ 230,000 | 0.02 KM |
| 11 Shargate Close | £ 79,500 | 0.02 KM |
| 27 Shargate Close | £ 113,000 | 0.02 KM |
| 5 Shargate Close | £ 265,000 | 0.02 KM |
| 23 Shargate Close | £ 319,950 | 0.02 KM |