YO
Noble Street, Sunderland, Tyne and Wear, SR2
By Your Move
£ 60,000
Reviews
2 out of 5 stars
Your Move says ..
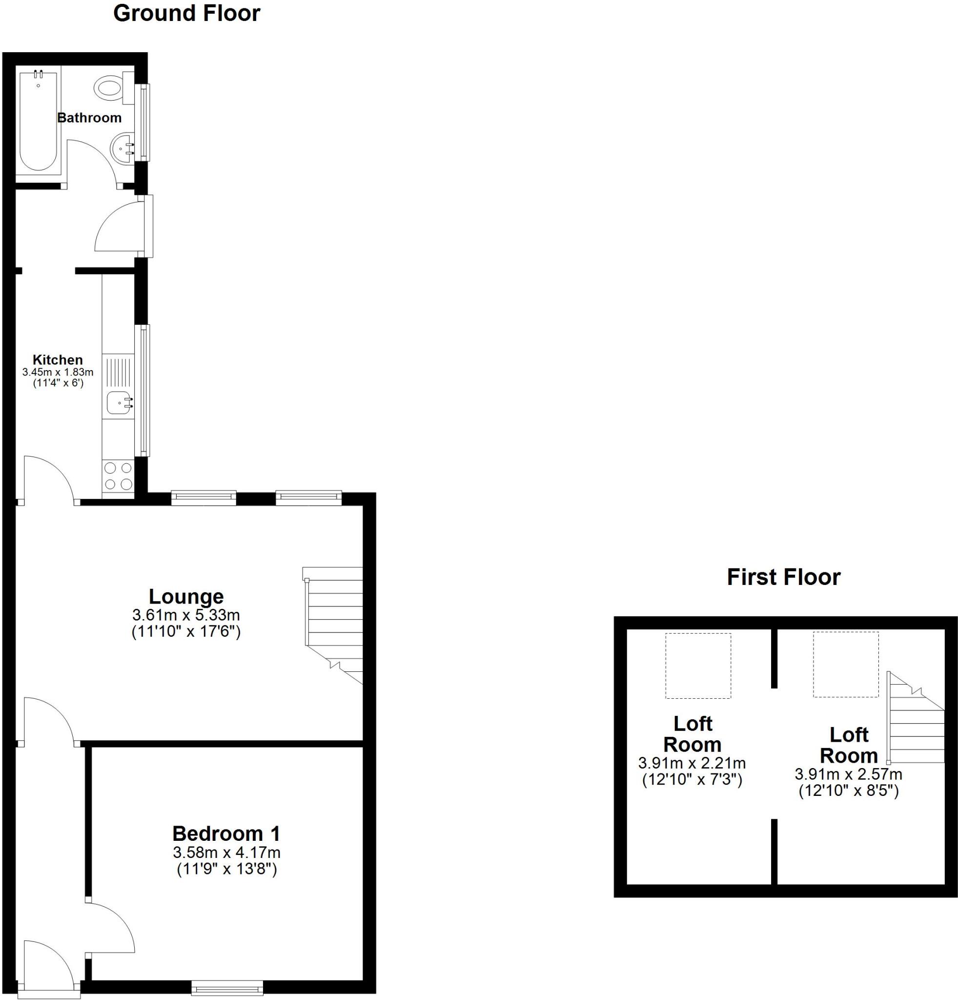
A one bedroom cottage with a useful loft room, located on Noble Street. The property is being sold with no onward chain, making it a suitable option for first time buyers or investors. It offers comfortable living space and is conveniently positioned close to local amenities and transport links.
Property Oracle says ..
Therefore, we give this property 5 / 10. *Disclaimer: This is our option and does constitute a recommendation or financial advice. Do your own research. *
- Price
- 7
- Condition
- 4
- Location
- 6
- Land
- 3
- Bedrooms
- 1
- Bathrooms
- 1
- Sqft (est)
- 636.94
The heatmap indicates the level of crime in the area. The color of the heatmap indicates the crime severity and recency.
Metrics Year-on-Year
- Average area value
- 502,893.00 £Increased by 16.71 %
- Est sale value
- 208,916.32 £Increased by 0.92 %
- Average area rental value
- 1,587.00 £/moDecreased by 12.80 %
- Est letting value
- 636.94 £/moUnchanged by 0.00 %
- Est rental Yield
- 3.79 %Decreased by 25.25 %
- Crime Rate
- 11.00 %Unchanged by 0.00 %
from 430,903.00 £
from 207,005.50 £
from 1,820.00 £/mo
from 636.94 £/mo
from 5.07 %
from 11.00 %
Agent Activity
Your Move created the listing.
Nearby Schools
| Name | Type | Ofsted | Distance |
|---|---|---|---|
| Valley Road Academy | Academy Converter | 0.35 KM | |
| Hudson Road Primary School | Community School | Good | 0.71 KM |
| Sunderland Children'S Centre East | Children's Centre | 0.78 KM | |
| Southmoor Academy | Academy Converter | Good | 1.18 KM |
| Grangetown Primary School | Community School | Good | 1.21 KM |
Images
Nearby Streets
| Name | Average Price | Average Sqft | Distance |
|---|---|---|---|
| Nobles Bank Road | £ 0 | 0 | 0.00 KM |
| Rosalie Terrace | £ 0 | 0 | 0.00 KM |
| Suffolk Street | £ 0 | 0 | 0.00 KM |
| Salem Road | £ 0 | 0 | 0.00 KM |
| Pauls Road | £ 0 | 0 | 0.00 KM |
Nearby Transport
| Name | NLC | TLC | Distance |
|---|---|---|---|
| Sunderland | 7640 | SUN | 1.57 KM |
| Seaham | 7814 | SEA | 7.14 KM |
Nearby Listings
| Address | Price | Type | Score | Distance |
|---|---|---|---|---|
| Noble Street, Sunderland, Tyne and Wear, SR2 | £ 60,000 | BUY | 5 / 10 | 0.00 KM |
| Noble Street, Sunderland | £ 64,950 | BUY | Unknown | 0.03 KM |
| Noble Street, Sunderland | £ 64,950 | BUY | 5 / 10 | 0.03 KM |
| Tower Street, Sunderland | £ 53,000 | BUY | 5 / 10 | 0.15 KM |
| Tower Street, Sunderland, SR2 | £ 45,000 | BUY | Unknown | 0.17 KM |
Nearby Properties
| Address | Price | Distance |
|---|---|---|
| 9 Noble Street | £ 20,000 | 0.05 KM |
| 43 Noble Street | £ 52,000 | 0.05 KM |
| 53 Noble Street | £ 33,500 | 0.05 KM |
| 28 Noble Street | £ 35,000 | 0.05 KM |
| 13 Noble Street | £ 34,000 | 0.05 KM |