Association Walk, Rochester, ME1
By Town and City Homes
£ 150,000
Reviews
3 out of 5 stars
Town and City Homes says ..
NO ONWARD CHAIN! Don't miss out on this spacious and well-located 1 bedroom apartment in Association Walk. Perfect for investors or first-time buyers, with easy access to major motorways and local amenities.
Property Oracle says ..
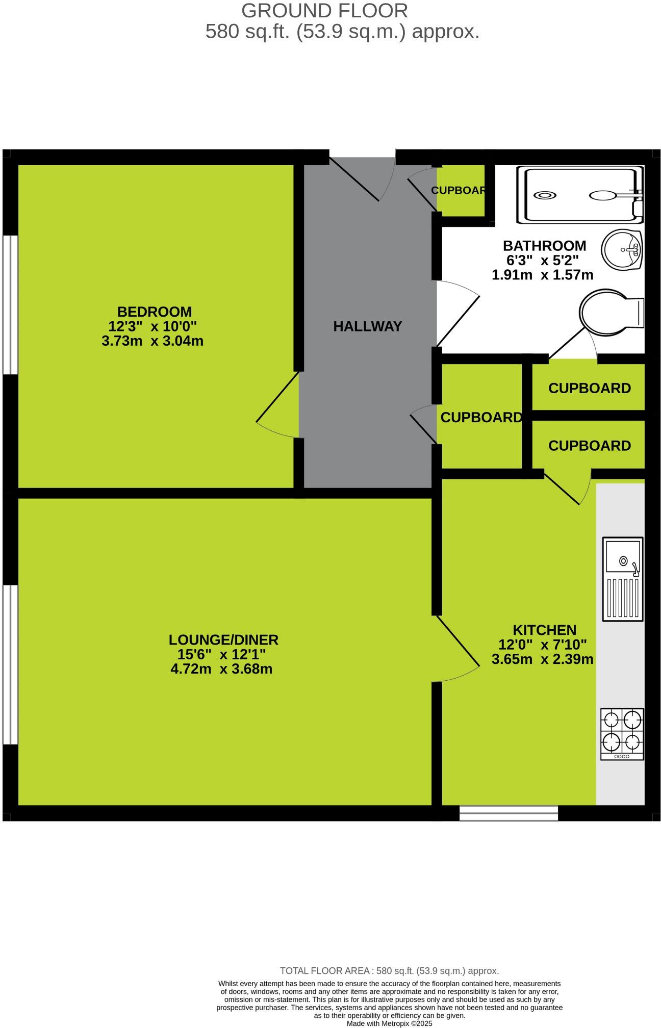
The property is a 1-bedroom apartment located on Association Walk in Rochester, Kent. The apartment is 433.88 sqft and situated on a 580 sqft plot. The list price is £150,000. The average property price in the area is significantly higher at £348,897, with an average price per sqft of £334. This suggests that the list price for this apartment may represent good value, especially considering its smaller size. However, further analysis is needed to determine if the price is reasonable given the condition and location. The apartment appears to be in reasonable condition based on the provided images. While not modern, it seems well-maintained and habitable. There is no evidence of significant repair or renovation needs. The kitchen and bathroom appear functional, although dated. The property’s location is positive, with good proximity to several schools, including The Thomas Aveling School and Warren Wood Primary Academy, both rated as ‘Good’ by Ofsted. The location also benefits from its relative closeness to several Southeastern train stations, providing convenient access to commuting routes. The presence of nearby amenities would further enhance the desirability of the location. While the plot size is relatively small for a property in this area, it is adequate for an apartment. The lack of information on garden space prevents a more detailed assessment of the land aspect. Considering the factors above, the property seems reasonably priced, especially given its location and the relatively low list price compared to area averages. However, the lack of detailed information on the condition of the property and the absence of information regarding the presence of a garden prevents a more definitive conclusion.
Therefore, we give this property 6 / 10. *Disclaimer: This is our option and does constitute a recommendation or financial advice. Do your own research. *
- Price
- 8
- Condition
- 7
- Location
- 8
- Land
- 4
- Bedrooms
- 1
- Bathrooms
- 1
- Sqft (est)
- 433.88
- Lot (est)
- 580.00
The heatmap indicates the level of crime in the area. The color of the heatmap indicates the crime severity and recency.
Metrics Year-on-Year
- Average area value
- 394,944.00 £Increased by 20.71 %
- Est sale value
- 222,580.44 £Increased by 36.07 %
- Average area rental value
- 1,293.00 £/moDecreased by 22.11 %
- Est letting value
- 433.88 £/moUnchanged by 0.00 %
- Est rental Yield
- 3.93 %Decreased by 35.47 %
- Crime Rate
- 13.00 %Unchanged by 0.00 %
Agent Activity
Town and City Homes created the listing.
Nearby Schools
| Name | Type | Ofsted | Distance |
|---|---|---|---|
| The Thomas Aveling School | Academy Converter | Good | 0.36 KM |
| Warren Wood Primary Academy | Academy Sponsor Led | Good | 0.41 KM |
| Medway Secure Training Centre | Secure Units | 0.88 KM | |
| Delce Children'S Centre | Children's Centre | 0.98 KM | |
| Delce Academy | Academy Converter | 1.12 KM |
Images
Nearby Streets
| Name | Average Price | Average Sqft | Distance |
|---|---|---|---|
| Leander Road | £ 0 | 0 | 0.00 KM |
| Pennant Road | £ 0 | 0 | 0.00 KM |
| Anchor Road | £ 365,000 | 0 | 0.00 KM |
| Frobisher Gardens | £ 0 | 0 | 0.00 KM |
| Stoney Lane | £ 0 | 0 | 0.00 KM |
Nearby Transport
| Name | NLC | TLC | Distance |
|---|---|---|---|
| Rochester | 5203 | RTR | 2.84 KM |
| Chatham | 5199 | CTM | 2.92 KM |
| Strood (Kent) | 5191 | SOO | 3.97 KM |
| Cuxton | 5201 | CUX | 4.83 KM |
| Gillingham (Kent) | 5169 | GLM | 5.87 KM |
Nearby Listings
| Address | Price | Type | Score | Distance |
|---|---|---|---|---|
| Association Walk, Rochester, ME1 | £ 150,000 | BUY | 6 / 10 | 0.00 KM |
| Warren Wood Road, Rochester | £ 250,000 | BUY | 6 / 10 | 0.13 KM |
| Warren Wood Road, Rochester | £ 375,000 | BUY | 6 / 10 | 0.13 KM |
| Orion Road, Rochester | £ 335,000 | BUY | Unknown | 0.14 KM |
| Leander Road, Rochester, Kent, ME1 | £ 170,000 | BUY | 7 / 10 | 0.14 KM |
Nearby Properties
| Address | Price | Distance |
|---|---|---|
| 62 Association Walk | £ 228,000 | 0.06 KM |
| 57 Association Walk | £ 141,000 | 0.06 KM |
| 52 Association Walk | £ 200,000 | 0.06 KM |
| 51 Association Walk | £ 247,500 | 0.06 KM |
| 61 Association Walk | £ 155,000 | 0.06 KM |