Winterthur Lane, Dunfermline, KY12
By Maloco & Associates
£ 195,000
Reviews
3 out of 5 stars
Maloco & Associates says ..
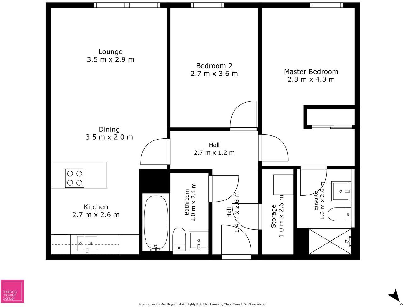
An immaculate, two bedroom, second floor apartment located within a highly sought after development within Dunfermline’s city centre. The Depot forms part of the The Linen Quarter, a restored building of Victorian architecture with contemporary design and benefits from cost-efficient hea...
Property Oracle says ..
This is a modern two-bedroom flat located in Dunfermline, Scotland. The property is in excellent condition, boasting contemporary interior design and well-maintained fixtures. While it doesn’t have a garden, its location offers convenient access to transportation and nearby schools. The price per square foot is notably lower than the area average, making it an attractive opportunity.
Therefore, we give this property 6 / 10. *Disclaimer: This is our option and does constitute a recommendation or financial advice. Do your own research. *
- Price
- 7
- Condition
- 9
- Location
- 7
- Land
- 3
- Bedrooms
- 2
- Bathrooms
- 2
- Sqft (est)
- 707.94
The heatmap indicates the level of crime in the area. The color of the heatmap indicates the crime severity and recency.
Metrics Year-on-Year
- Average area value
- 546,663.00 £Increased by 20.32 %
- Est sale value
- 420,516.36 £Increased by 55.50 %
- Average area rental value
- 2,315.00 £/moIncreased by 58.13 %
- Est letting value
- 1,415.88 £/moIncreased by 100.00 %
- Est rental Yield
- 5.08 %Increased by 31.27 %
- Crime Rate
- 0.00 %
Agent Activity
Maloco & Associates created the listing.
Images
Nearby Streets
| Name | Average Price | Average Sqft | Distance |
|---|---|---|---|
| Cousin's Lane | £ 218,000 | 0 | 0.00 KM |
| A907 | £ 0 | 0 | 0.00 KM |
| Carnegie Drive | £ 199,950 | 0 | 0.00 KM |
| Maygate | £ 119,950 | 0 | 0.00 KM |
| Mill Street | £ 0 | 0 | 0.00 KM |
Nearby Transport
| Name | NLC | TLC | Distance |
|---|---|---|---|
| Dunfermline Town | 9187 | DFE | 1.27 KM |
| Dunfermline Queen Margaret | 9186 | DFL | 4.58 KM |
| Rosyth | 9190 | ROS | 5.02 KM |
| Inverkeithing | 9136 | INK | 8.53 KM |
Nearby Listings
| Address | Price | Type | Score | Distance |
|---|---|---|---|---|
| Winterthur Lane, Dunfermline, KY12 | £ 195,000 | BUY | 6 / 10 | 0.00 KM |
| Winterthur Lane, Dunfermline, Fife, KY12 | £ 185,000 | BUY | 6 / 10 | 0.02 KM |
| 48 The Depot, Winterthur Lane, Dunfermline, KY12 9FY | £ 190,000 | BUY | Unknown | 0.04 KM |
| Pilmuir Street, Dunfermline, KY12 | £ 300,000 | BUY | 6 / 10 | 0.05 KM |
| Pilmuir Street, Dunfermline, KY12 | £ 235,000 | BUY | 6 / 10 | 0.05 KM |