Cumbria Close, maidenhead, berkshire, SL6 3DD
By Avocado Property
£ 550,000
Reviews
3 out of 5 stars
Avocado Property says ..
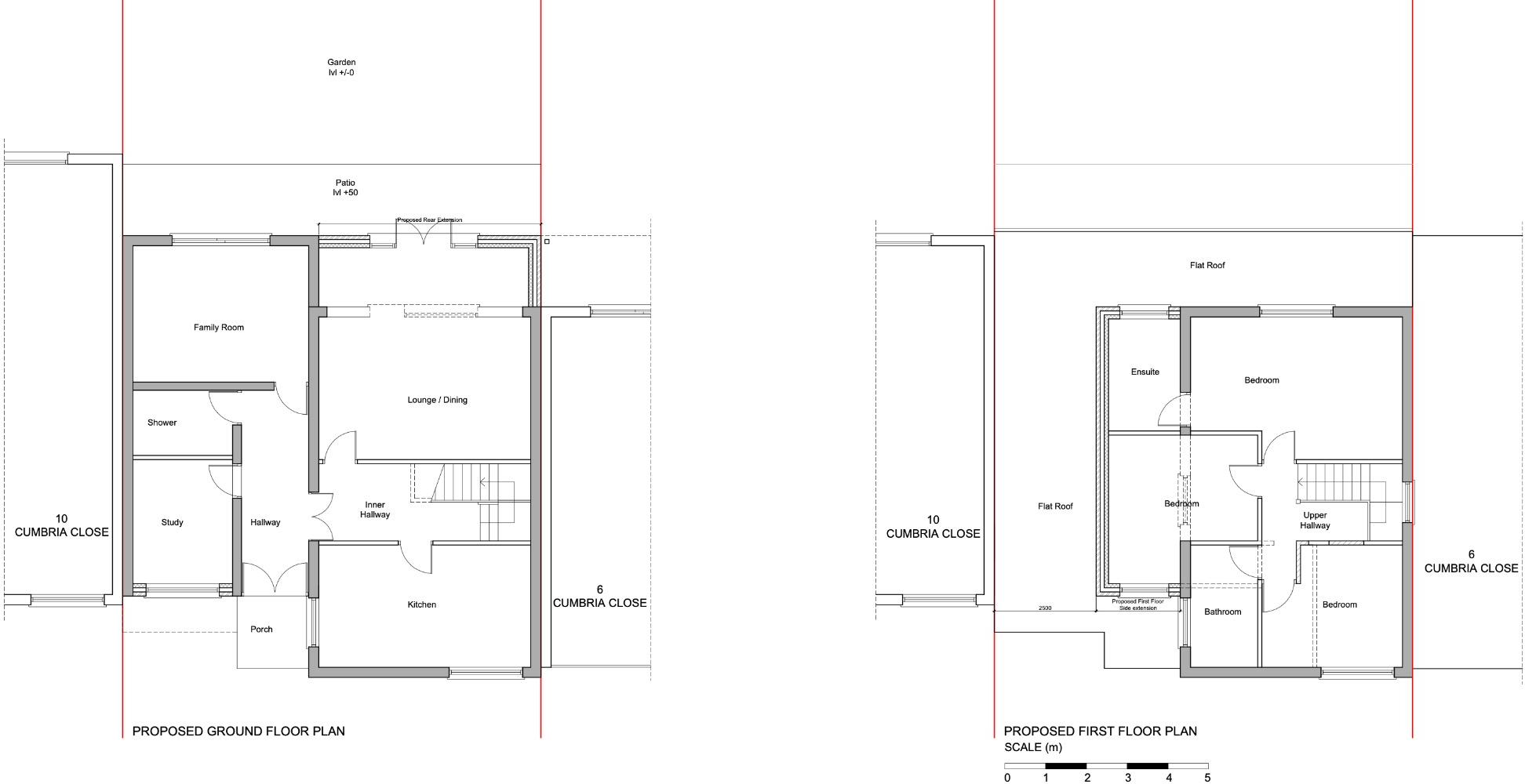
Four bedroom link detached home in Cox Green with planning permission for a double storey side ext!
Property Oracle says ..
A four bedroom link-detached house in Cox Green, Maidenhead. Close to schools and train stations. The kitchen and bathrooms appear modern and well-maintained. The property has a garden with a patio area and a shed. The price seems reasonable given the size and location.
Therefore, we give this property 7 / 10. *Disclaimer: This is our option and does constitute a recommendation or financial advice. Do your own research. *
- Price
- 7
- Condition
- 7
- Location
- 8
- Land
- 7
- Bedrooms
- 4
- Bathrooms
- 2
The heatmap indicates the level of crime in the area. The color of the heatmap indicates the crime severity and recency.
Metrics Year-on-Year
- Average area value
- 208,333.00 £Decreased by 17.92 %
- Average area rental value
- 806.00 £/moDecreased by 15.34 %
- Est rental Yield
- 4.64 %Increased by 3.11 %
- Crime Rate
- 4.00 %Unchanged by 0.00 %
from 253,810.00 £
from 952.00 £/mo
from 4.50 %
from 4.00 %
Agent Activity
Avocado Property created the listing.
Nearby Schools
| Name | Type | Ofsted | Distance |
|---|---|---|---|
| Wessex Primary School | Community School | Good | 0.70 KM |
| Altwood Cofe Secondary School | Academy Converter | Good | 0.97 KM |
| Lowbrook Academy | Academy Converter | 1.02 KM | |
| All Saints Cofe Junior School | Voluntary Controlled School | Good | 1.12 KM |
| Boyne Hill Cofe Infant And Nursery School | Voluntary Controlled School | Outstanding | 1.19 KM |
Images
Nearby Streets
| Name | Average Price | Average Sqft | Distance |
|---|---|---|---|
| Worcester Close | £ 0 | 0 | 0.00 KM |
| Norden Road | £ 0 | 0 | 0.00 KM |
| Welbeck Road | £ 425,000 | 0 | 0.00 KM |
| Service Road To Hever Close | £ 340,000 | 0 | 0.00 KM |
| Courthouse Road | £ 0 | 0 | 0.00 KM |
Nearby Transport
| Name | NLC | TLC | Distance |
|---|---|---|---|
| Maidenhead | 3147 | MAI | 2.72 KM |
| Furze Platt | 3144 | FZP | 3.23 KM |
| Cookham | 3019 | COO | 5.94 KM |
| Marlow | 3021 | MLW | 7.24 KM |
| Taplow | 3151 | TAP | 7.25 KM |
Nearby Listings
| Address | Price | Type | Score | Distance |
|---|---|---|---|---|
| Cumbria Close, maidenhead, berkshire, SL6 3DD | £ 550,000 | BUY | 7 / 10 | 0.00 KM |
| Lock Lane, Maidenhead, Berkshire, SL6 | £ 425,000 | BUY | 7 / 10 | 0.09 KM |
| Northumbria Road, Maidenhead | £ 240,000 | BUY | 5 / 10 | 0.12 KM |
| Lock Lane, Maidenhead, Berkshire, SL6 | £ 600,000 | BUY | 6 / 10 | 0.18 KM |
| MAIDENHEAD | £ 695,000 | BUY | Unknown | 0.21 KM |
Nearby Properties
| Address | Price | Distance |
|---|---|---|
| 9 Cumbria Close | £ 145,000 | 0.04 KM |
| 31 Cumbria Close | £ 302,000 | 0.04 KM |
| 33 Cumbria Close | £ 495,000 | 0.04 KM |
| 12 Cumbria Close | £ 240,000 | 0.04 KM |
| 10 Cumbria Close | £ 249,000 | 0.04 KM |