New Street, Oadby, Leicester
By Knightsbridge Estate Agents & Valuers
£ 240,000
Reviews
3 out of 5 stars
Knightsbridge Estate Agents & Valuers says ..
CHAIN FREE three bedroom terrace property providing the PERFECT HOME within easy reach of the local Lidl, schools and amenities.
Property Oracle says ..
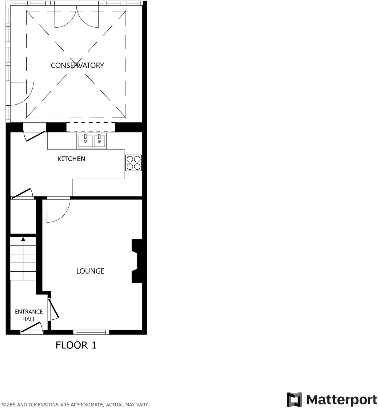
This three-bedroom terraced house located on New Street, Oadby, Leicester offers a comfortable family home. The property benefits from a convenient location with easy access to Launde Primary School, other nearby schools and a reasonable proximity to Leicester city centre. The interior appears well-maintained, featuring a modern bathroom, and a pleasant conservatory extension. The garden is a good size, offering potential for further development. The asking price seems reasonable in the context of the Oadby market, though more comparative data would be beneficial to provide a precise evaluation. Potential buyers should consider the minor cosmetic improvements that could enhance the property’s value. While the available data provides a good overview, more comprehensive information, such as details on the plot size and condition reports, would facilitate a more in-depth assessment. Additionally, precise price per sqft data for comparable properties would give a clearer picture of value.
Therefore, we give this property 6 / 10. *Disclaimer: This is our option and does constitute a recommendation or financial advice. Do your own research. *
- Price
- 7
- Condition
- 6
- Location
- 7
- Land
- 4
- Bedrooms
- 3
- Bathrooms
- 1
- Sqft (est)
- 680.00
The heatmap indicates the level of crime in the area. The color of the heatmap indicates the crime severity and recency.
Metrics Year-on-Year
- Average area value
- 230,000.00 £Decreased by 21.93 %
- Est sale value
- 264,520.00 £Decreased by 6.04 %
- Average area rental value
- 1,119.00 £/moIncreased by 11.01 %
- Est letting value
- 680.00 £/moUnchanged by 0.00 %
- Est rental Yield
- 5.84 %Increased by 42.09 %
- Crime Rate
- 17.00 %Unchanged by 0.00 %
Agent Activity
Knightsbridge Estate Agents & Valuers created the listing.
Nearby Schools
| Name | Type | Ofsted | Distance |
|---|---|---|---|
| Launde Primary School | Academy Converter | 0.18 KM | |
| Brocks Hill Primary School | Academy Converter | 1.11 KM | |
| Langmoor Primary School Oadby | Academy Converter | 1.13 KM | |
| Gartree High School | Academy Converter | Outstanding | 1.15 KM |
| Beauchamp College | Academy Converter | 1.25 KM |
Images
Nearby Streets
| Name | Average Price | Average Sqft | Distance |
|---|---|---|---|
| Meadow View | £ 0 | 0 | 0.00 KM |
| Alexandra Court | £ 180,000 | 0 | 0.00 KM |
| Albion Court | £ 0 | 0 | 0.00 KM |
| Walnut Close | £ 0 | 0 | 0.00 KM |
| Beech Road | £ 353,750 | 0 | 0.00 KM |
Nearby Transport
| Name | NLC | TLC | Distance |
|---|---|---|---|
| Leicester | 1947 | LEI | 6.41 KM |
| South Wigston | 1949 | SWS | 6.42 KM |
Nearby Listings
| Address | Price | Type | Score | Distance |
|---|---|---|---|---|
| New Street, Oadby, Leicester | £ 240,000 | BUY | 6 / 10 | 0.00 KM |
| New Street, Oadby | £ 190,000 | BUY | 7 / 10 | 0.05 KM |
| Harborough Road, Oadby, LE2 | £ 220,000 | BUY | Unknown | 0.10 KM |
| New Street, Oadby, Leicester | £ 325,000 | BUY | 5 / 10 | 0.10 KM |
| New Street, Oadby, Leicester | £ 200,000 | BUY | Unknown | 0.10 KM |
Nearby Properties
| Address | Price | Distance |
|---|---|---|
| 19 New Street | £ 150,000 | 0.04 KM |
| 13 New Street | £ 32,000 | 0.04 KM |
| 44 New Street | £ 145,000 | 0.04 KM |
| 22 New Street | £ 175,000 | 0.04 KM |
| 28 New Street | £ 121,500 | 0.05 KM |