Coleridge Way, Borehamwood, Hertfordshire, WD6
By Stones Residential
£ 625,000
Reviews
3 out of 5 stars
Stones Residential says ..
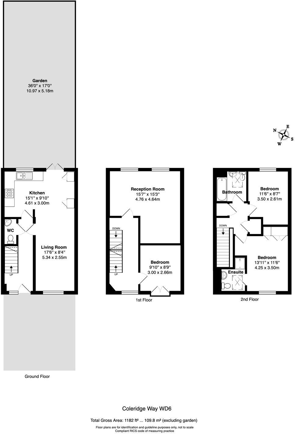
Located within a short walk from Elstree & Borehamwood Station is this brand newly refurbished Townhouse. Situated over three floors the property comprises a newly fitted kitchen with reception room with access onto a a rear patio garden. The first floor comprises a good size reception room a...
Property Oracle says ..
This three-bedroom terraced house in Borehamwood is listed at £625,000. The property boasts a modern interior with recently updated bathrooms and kitchen. The images show a clean, contemporary aesthetic throughout. The location benefits from proximity to Elstree & Borehamwood train station (0.58km), offering convenient access to London. Several primary and secondary schools are also within a reasonable distance. The property includes a private rear garden. While the average price per sqft in the area is £112, this property is listed at a higher price per sqft due to its modern condition and desirable features. Comparable properties on Coleridge Way have sold for between £450,500 and £630,000, suggesting the listing price is within the market range for similar properties in this area.
Therefore, we give this property 7 / 10. *Disclaimer: This is our option and does constitute a recommendation or financial advice. Do your own research. *
- Price
- 7
- Condition
- 9
- Location
- 8
- Land
- 7
- Bedrooms
- 3
- Bathrooms
- 2
- Sqft (est)
- 866.49
- Lot (est)
- 1,181.88
The heatmap indicates the level of crime in the area. The color of the heatmap indicates the crime severity and recency.
Metrics Year-on-Year
- Average area value
- 597,414.00 £Decreased by 22.57 %
- Est sale value
- 398,585.40 £Decreased by 13.70 %
- Average area rental value
- 1,488.00 £/moDecreased by 19.96 %
- Est letting value
- 866.49 £/moUnchanged by 0.00 %
- Est rental Yield
- 2.99 %Increased by 3.46 %
- Crime Rate
- 8.00 %Unchanged by 0.00 %
Agent Activity
Stones Residential created the listing.
Nearby Schools
| Name | Type | Ofsted | Distance |
|---|---|---|---|
| H4 The Becc (Borehamwood And Elstree Children'S Centre) | Children's Centre | 0.12 KM | |
| Summerswood Primary School | Community School | Good | 0.85 KM |
| Yavneh College | Academy Converter | 0.90 KM | |
| Yavneh Primary School | Free Schools | Outstanding | 1.11 KM |
| St Teresa Catholic Primary School | Voluntary Aided School | Good | 1.19 KM |
Images
Nearby Streets
| Name | Average Price | Average Sqft | Distance |
|---|---|---|---|
| Vale Avenue | £ 0 | 0 | 0.00 KM |
| Keystone Passage | £ 0 | 0 | 0.00 KM |
| Carrington Close | £ 0 | 0 | 0.00 KM |
| Baker Court | £ 0 | 0 | 0.00 KM |
| St Paul's Close | £ 0 | 0 | 0.00 KM |
Nearby Transport
| Name | NLC | TLC | Distance |
|---|---|---|---|
| Elstree And Borehamwood | 1542 | ELS | 0.58 KM |
| Mill Hill Broadway | 1527 | MIL | 5.08 KM |
| Radlett | 1546 | RDT | 6.02 KM |
| Hendon | 1522 | HEN | 8.84 KM |
| Kenton | 1399 | KNT | 8.92 KM |
Nearby Listings
| Address | Price | Type | Score | Distance |
|---|---|---|---|---|
| Coleridge Way, Borehamwood, Hertfordshire, WD6 | £ 625,000 | BUY | 7 / 10 | 0.00 KM |
| Wordsworth Gardens, Borehamwood | £ 635,000 | BUY | 7 / 10 | 0.00 KM |
| Wordsworth Gardens, Borehamwood | £ 640,000 | BUY | 5 / 10 | 0.00 KM |
| Browning Court, Borehamwood | £ 329,950 | BUY | Unknown | 0.04 KM |
| Coleridge Way, Borehamwood | £ 665,000 | BUY | Unknown | 0.07 KM |
Nearby Properties
| Address | Price | Distance |
|---|---|---|
| 127 Coleridge Way | £ 630,000 | 0.01 KM |
| 165 Coleridge Way | £ 565,000 | 0.01 KM |
| 149 Coleridge Way | £ 359,950 | 0.01 KM |
| 147 Coleridge Way | £ 500,000 | 0.01 KM |
| 161 Coleridge Way | £ 260,000 | 0.01 KM |