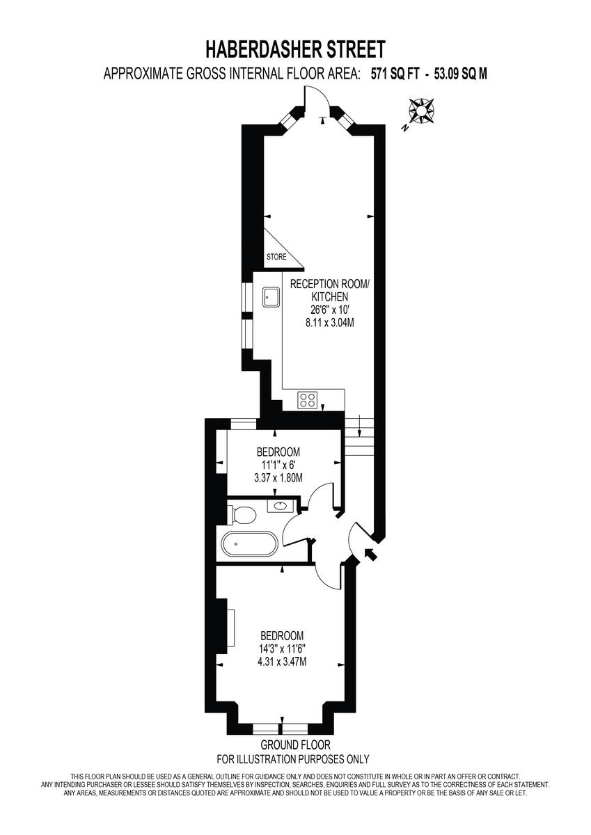
Haberdasher Street, Islington, N1
By Felicity J Lord
£ 570,000
Reviews
3 out of 5 stars
Felicity J Lord says ..
An exceptional two bedroom apartment on the tree lined Haberdasher St
Property Oracle says ..
This two-bedroom apartment located on Haberdasher Street in Islington offers a compelling blend of location and modern conveniences. The property’s position in this popular London neighbourhood provides easy access to Old Street Underground Station, an array of amenities, and highly-rated schools. The updated kitchen presents a modern feel. The property’s interior shows a blend of renovated and unrenovated areas. The open plan living space and wood flooring contribute to its overall aesthetic. The inclusion of a small, shared rear garden is a desirable feature, although limited in size. While the presented images showcase a bright and modern kitchen, other areas might benefit from cosmetic upgrades or finishing touches to elevate the overall presentation. The lack of specific square footage data for comparable properties makes precise price-per-square-foot comparison difficult. Nevertheless, the listing price seems generally in line with market values for similar properties in the area, making it a potentially sound investment. Further details on the specifics of the building such as service charges and leasehold information are required to complete a comprehensive evaluation of the property’s value.
Therefore, we give this property 6 / 10. *Disclaimer: This is our option and does constitute a recommendation or financial advice. Do your own research. *
- Price
- 7
- Condition
- 7
- Location
- 9
- Land
- 3
- Bedrooms
- 2
- Bathrooms
- 1
- Sqft (est)
- 571.46
The heatmap indicates the level of crime in the area. The color of the heatmap indicates the crime severity and recency.
Metrics Year-on-Year
- Average area value
- 773,636.00 £Decreased by 13.62 %
- Est sale value
- 856,618.54 £Increased by 78.88 %
- Average area rental value
- 3,080.00 £/moIncreased by 5.52 %
- Est letting value
- 2,857.30 £/moIncreased by 150.00 %
- Est rental Yield
- 4.78 %Increased by 22.25 %
- Crime Rate
- 3.00 %Unchanged by 0.00 %
Agent Activity
Felicity J Lord created the listing.
Nearby Schools
| Name | Type | Ofsted | Distance |
|---|---|---|---|
| St John The Baptist Voluntary Aided Church Of England Primary School | Voluntary Aided School | Outstanding | 0.20 KM |
| Central Foundation Boys' School | Voluntary Aided School | Outstanding | 0.46 KM |
| St Monica'S Roman Catholic Primary School | Voluntary Aided School | Good | 0.47 KM |
| New Regent'S College | Pupil Referral Unit | Good | 0.60 KM |
| Shoreditch Park Primary School | Community School | Outstanding | 0.66 KM |
Images
Nearby Streets
| Name | Average Price | Average Sqft | Distance |
|---|---|---|---|
| Bath Place | £ 0 | 0 | 0.00 KM |
| Singer Street | £ 0 | 0 | 0.00 KM |
| Silbury Street | £ 0 | 0 | 0.00 KM |
| Old Street Roundabout | £ 0 | 0 | 0.00 KM |
| Hoxton Street | £ 0 | 0 | 0.00 KM |
Nearby Transport
| Name | NLC | TLC | Distance |
|---|---|---|---|
| Old Street | 6003 | OLD | 0.56 KM |
| Hoxton | 1023 | HOX | 1.03 KM |
| Shoreditch High Street | 1024 | SDC | 1.24 KM |
| Moorgate | 6005 | MOG | 1.28 KM |
| Liverpool Street | 6965 | LST | 1.30 KM |
Nearby Listings
| Address | Price | Type | Score | Distance |
|---|---|---|---|---|
| Haberdasher Street, Islington, N1 | £ 570,000 | BUY | 6 / 10 | 0.00 KM |
| Haberdasher Street, London, N1 | £ 525,000 | BUY | 7 / 10 | 0.03 KM |
| Haberdasher Street, London, N1 | £ 575,000 | BUY | 8 / 10 | 0.04 KM |
| Haberdasher Street, London, N1 | £ 550,000 | BUY | 6 / 10 | 0.05 KM |
| Bevenden Street, London, N1 | £ 570,000 | BUY | 5 / 10 | 0.05 KM |
Nearby Properties
| Address | Price | Distance |
|---|---|---|
| 80 Haberdasher Street | £ 215,000 | 0.03 KM |
| 58 Haberdasher Street | £ 750,000 | 0.03 KM |
| 151 - 157 Haberdasher Street | £ 525,000 | 0.03 KM |
| 84 Haberdasher Street | £ 1,700,000 | 0.03 KM |
| 79 Haberdasher Street | £ 217,300 | 0.03 KM |