Mellalieu Street, Oldham, Greater Manchester, OL2
By McGowan Housing
£ 140,000
Reviews
2 out of 5 stars
McGowan Housing says ..
Buy-to-Let Opportunity | Spacious Lounge and Kitchen | Good Condition | Easy Access to Local Amenities
Property Oracle says ..
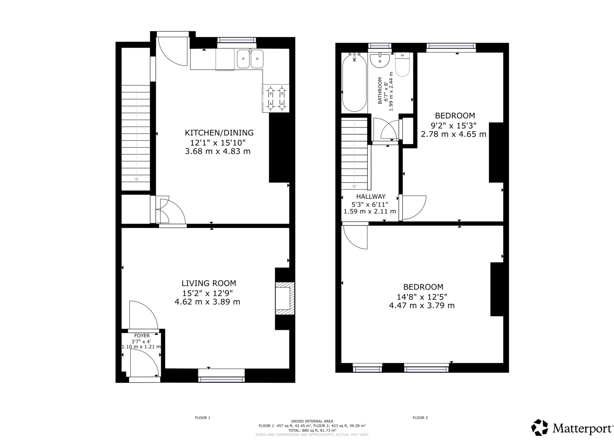
This is a two-bedroom terraced house located in Royton South, Oldham. The property is in need of renovation and modernisation, but it offers a good opportunity for buyers looking to put their own stamp on a home. The property is located close to local schools and amenities, and it is within easy reach of Manchester city centre. The garden requires attention, but it offers a good outdoor space. The price is below the average for the area, making it an attractive option for first-time buyers or investors.
Therefore, we give this property 5 / 10. *Disclaimer: This is our option and does constitute a recommendation or financial advice. Do your own research. *
- Price
- 7
- Condition
- 4
- Location
- 6
- Land
- 5
- Bedrooms
- 2
- Bathrooms
- 1
- Sqft (est)
- 222.27
The heatmap indicates the level of crime in the area. The color of the heatmap indicates the crime severity and recency.
Metrics Year-on-Year
- Average area value
- 179,279.00 £Decreased by 22.29 %
- Est sale value
- 55,789.77 £Decreased by 0.79 %
- Average area rental value
- 1,050.00 £/moDecreased by 1.04 %
- Est letting value
- 222.27 £/moUnchanged by 0.00 %
- Est rental Yield
- 7.03 %Increased by 27.36 %
- Crime Rate
- 0.00 %
Agent Activity
McGowan Housing created the listing.
Nearby Schools
| Name | Type | Ofsted | Distance |
|---|---|---|---|
| St Anne'S Cofe (Aided) Primary School | Voluntary Aided School | Good | 0.17 KM |
| The Oldham Academy North | Academy Sponsor Led | Good | 0.36 KM |
| Ss Aidan And Oswald'S Roman Catholic Primary School | Voluntary Aided School | Good | 0.47 KM |
| Elland House School | Other Independent Special School | Good | 0.50 KM |
| St Paul'S Cofe Primary School | Voluntary Aided School | Good | 1.06 KM |
Images
Nearby Streets
| Name | Average Price | Average Sqft | Distance |
|---|---|---|---|
| Arlington Close | £ 269,950 | 0 | 0.00 KM |
| Edge Hill Road | £ 264,925 | 0 | 0.00 KM |
| Plumpton Close | £ 0 | 0 | 0.00 KM |
| Brook Street | £ 139,950 | 0 | 0.00 KM |
| Manor Drive | £ 349,950 | 0 | 0.00 KM |
Nearby Transport
| Name | NLC | TLC | Distance |
|---|---|---|---|
| Mills Hill (Manchester) | 2920 | MIH | 5.51 KM |
| Rochdale | 2924 | RCD | 6.67 KM |
| Moston | 2973 | MSO | 6.69 KM |
| Castleton (Manchester) | 2919 | CAS | 7.19 KM |
| Ashton-Under-Lyne | 2790 | AHN | 8.14 KM |
Nearby Listings
| Address | Price | Type | Score | Distance |
|---|---|---|---|---|
| Mellalieu Street, Oldham, Greater Manchester, OL2 | £ 140,000 | BUY | 5 / 10 | 0.00 KM |
| Mellalieu Street, Royton | £ 160,000 | BUY | 6 / 10 | 0.01 KM |
| Mellalieu Street, Royton, Oldham, OL2 | £ 160,000 | BUY | Unknown | 0.05 KM |
| Jones Street, Royton | £ 190,000 | BUY | 7 / 10 | 0.07 KM |
| 28 Mellalieu Street, Royton, Oldham, OL2 5AF | £ 179,950 | BUY | 6 / 10 | 0.08 KM |
Nearby Properties
| Address | Price | Distance |
|---|---|---|
| 8 Mellalieu Street | £ 87,000 | 0.00 KM |
| 19 Mellalieu Street | £ 130,000 | 0.00 KM |
| 17 Mellalieu Street | £ 124,000 | 0.00 KM |
| 18 Mellalieu Street | £ 111,500 | 0.00 KM |
| 10 Mellalieu Street | £ 83,500 | 0.00 KM |