The Alexander - Plot 12, The Ropery, Argyle St, Hebburn
By WalkersXchange
£ 241,950
Reviews
3 out of 5 stars
WalkersXchange says ..
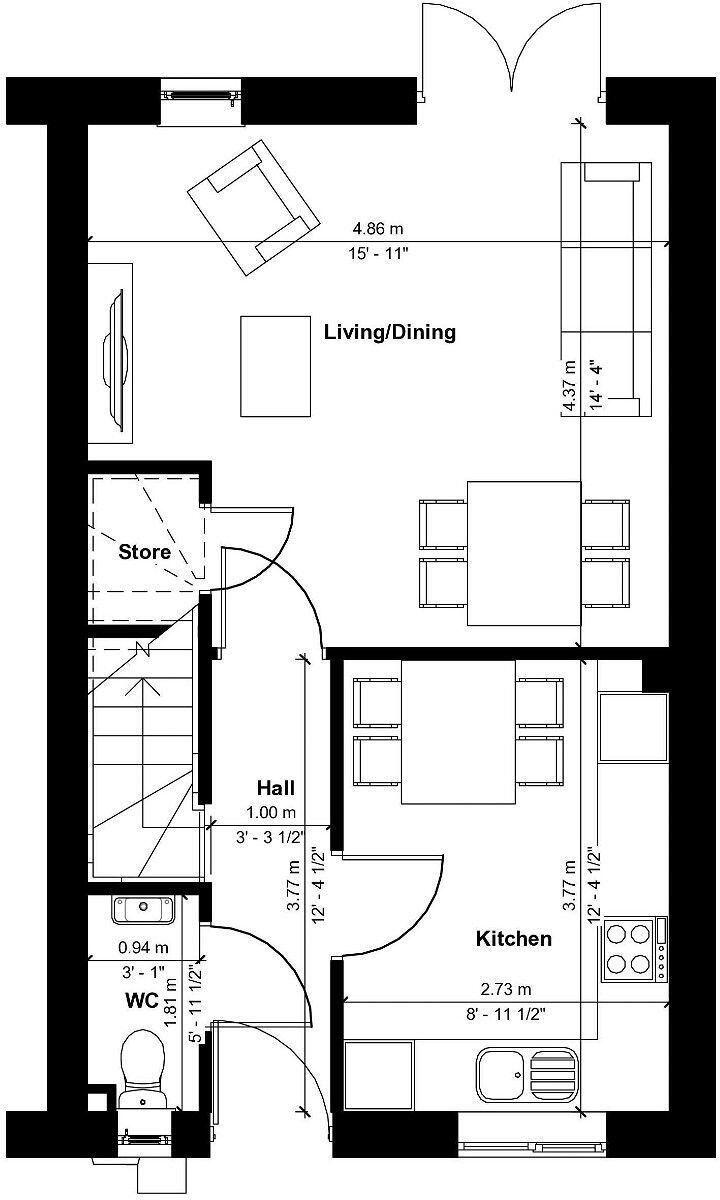
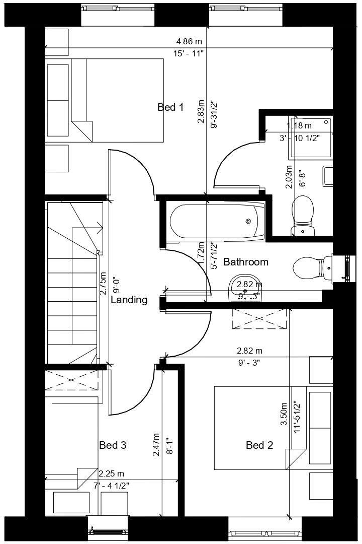
Plot 12, The Alexander a 3 bedroom semi-detached family home. This thoughtfully planned community development of around 90 houses incorporates a variety of house styles that are designed to captivate today's discerning buyers, offering a blend of modern...
Property Oracle says ..
The property is a new build semi-detached house located in Hebburn, Tyne and Wear. The location benefits from being close to local schools, including St Aloysius Catholic Junior School Academy which has an outstanding Ofsted rating. Transport links are also relatively close by, with Heworth train station approximately 4.77km away. The property itself is modern and appears to be in excellent condition, based on the provided images. While the plot size is small, the development includes communal green spaces. The list price of £241,950 seems reasonable when compared to similar properties in the area, although the average price per square foot is higher than the average for the area. However, this is likely due to the new build status and modern features. More information on the actual square footage of the property would be needed to make a more definitive statement on the price.
Therefore, we give this property 7 / 10. *Disclaimer: This is our option and does constitute a recommendation or financial advice. Do your own research. *
- Price
- 7
- Condition
- 10
- Location
- 8
- Land
- 3
- Bedrooms
- 3
- Bathrooms
- 2
- Sqft (est)
- 409.03
The heatmap indicates the level of crime in the area. The color of the heatmap indicates the crime severity and recency.
Metrics Year-on-Year
- Average area value
- 410,714.00 £Increased by 0.52 %
- Est sale value
- 171,792.60 £Increased by 4.48 %
- Average area rental value
- 1,363.00 £/moDecreased by 8.52 %
- Est letting value
- 409.03 £/moUnchanged by 0.00 %
- Est rental Yield
- 3.98 %Decreased by 9.13 %
- Crime Rate
- 7.00 %Unchanged by 0.00 %
Agent Activity
WalkersXchange created the listing.
Nearby Schools
| Name | Type | Ofsted | Distance |
|---|---|---|---|
| St Aloysius Catholic Infant School, Hebburn | Academy Converter | 0.58 KM | |
| St Aloysius Catholic Junior School Academy | Academy Converter | Outstanding | 0.62 KM |
| The Sue Hedley Nursery School | Local Authority Nursery School | Outstanding | 1.20 KM |
| South Tyneside Early Excellence Centre | Children's Centre | 1.28 KM | |
| Keelman'S Way School | Foundation Special School | Good | 1.36 KM |
Images
Nearby Streets
| Name | Average Price | Average Sqft | Distance |
|---|---|---|---|
| Thomas Drive | £ 330,000 | 0 | 0.00 KM |
| Thistle Street | £ 175,000 | 0 | 0.00 KM |
| B1297 | £ 0 | 0 | 0.00 KM |
| Alfred Street | £ 0 | 0 | 0.00 KM |
| Victoria Street | £ 25,000 | 0 | 0.00 KM |
Nearby Transport
| Name | NLC | TLC | Distance |
|---|---|---|---|
| Heworth | 7766 | HEW | 4.77 KM |
| Manors | 7603 | MAS | 9.29 KM |
Nearby Listings
| Address | Price | Type | Score | Distance |
|---|---|---|---|---|
| The Tavor - Plot 66, The Ropery, Hebburn | £ 204,950 | BUY | Unknown | 0.00 KM |
| The Alexander - Plot 11, The Ropery, Argyle St, Hebburn | £ 239,950 | BUY | 6 / 10 | 0.00 KM |
| The Dan - Plot 68, The Ropery, Hebburn | £ 171,950 | BUY | 6 / 10 | 0.00 KM |
| The Alexander - Plot 12, The Ropery, Argyle St, Hebburn | £ 241,950 | BUY | 7 / 10 | 0.00 KM |
| The Tavor - Plot 65, The Ropery, Hebburn | £ 204,950 | BUY | Unknown | 0.00 KM |
Nearby Properties
| Address | Price | Distance |
|---|---|---|
| 34 Albert Street | £ 90,000 | 0.17 KM |
| 32 Albert Street | £ 110,000 | 0.17 KM |
| 38 Landfall Drive | £ 107,950 | 0.22 KM |
| 64 Landfall Drive | £ 129,950 | 0.22 KM |
| 70 Landfall Drive | £ 84,950 | 0.22 KM |