Eldon Court, Lytham St. Annes, FY8
By Unique Estate Agency Ltd
£ 89,950
Reviews
3 out of 5 stars
Unique Estate Agency Ltd says ..
*** LARGE DUPLEX APARTMENT SITUATED CLOSE TO ST. ANNES TOWN CENTRE & THE SEA FRONT, BRAND NEW LARGE BALCONY OVER LOOKING GARDENS, LOUNGE DINER, KITCHEN, 3 BEDROOMS, BATHROOM, PARKING, GARAGE, COMMUNAL GARDENS, NO CHAIN..... Unique are delighted to bring this property to the market ***
Property Oracle says ..
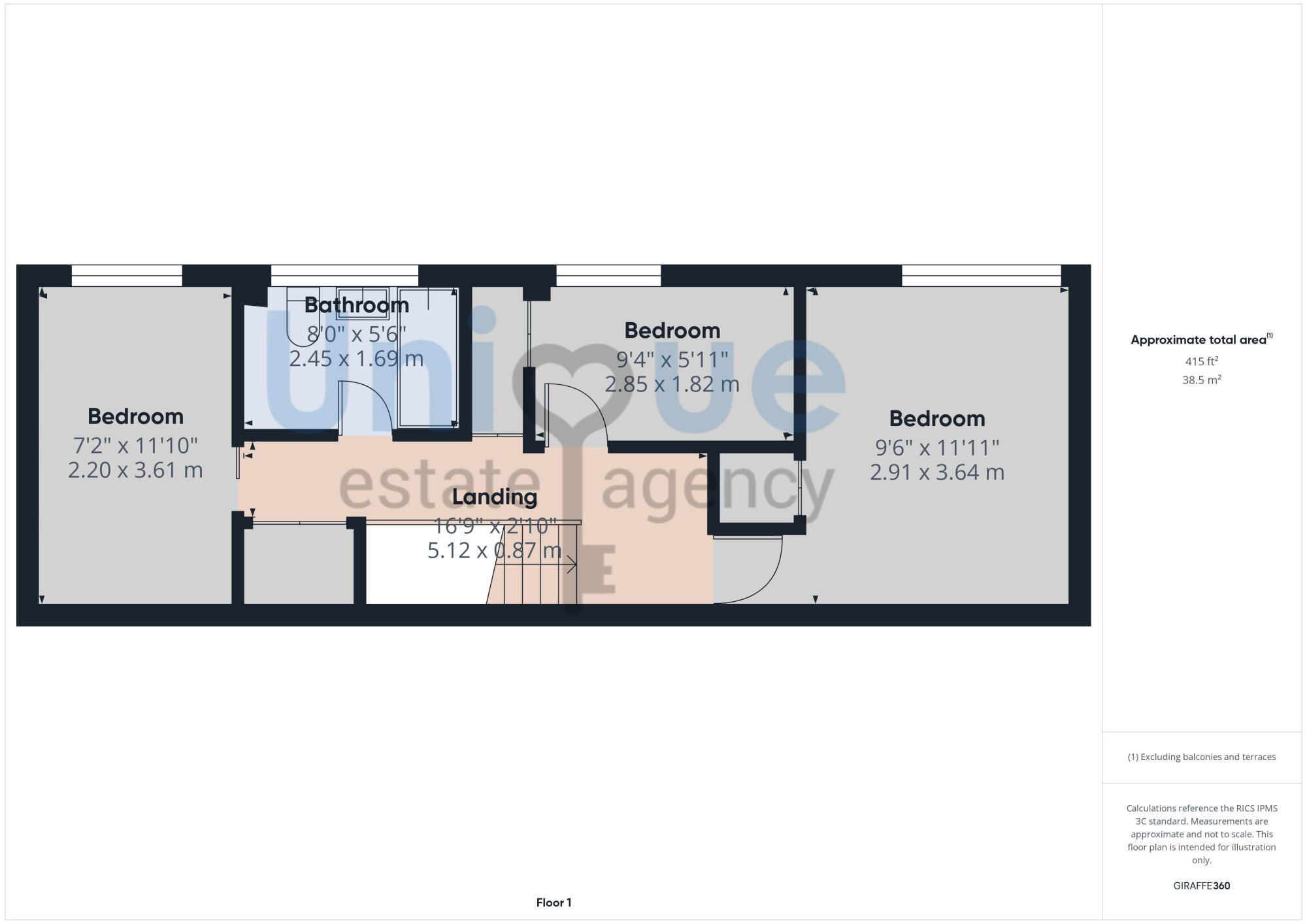
This is a three-bedroom apartment located in Eldon Court, Lytham St. Annes. The property is listed with Unique Estate Agency Ltd. The apartment is situated in a central location, offering convenient access to local amenities and transportation links, including the St Annes-On-The-Sea train station. Nearby schools include Heyhouses Endowed Church Of England Primary School and Lytham St Annes Mayfield Primary School. The apartment itself requires some modernisation, particularly in the kitchen and bathroom. However, it benefits from communal gardens, providing outdoor space. Considering the location and the price of £89,950, this property represents a reasonable opportunity for buyers. The apartment has 356 square feet.
Therefore, we give this property 6 / 10. *Disclaimer: This is our option and does constitute a recommendation or financial advice. Do your own research. *
- Price
- 8
- Condition
- 5
- Location
- 7
- Land
- 6
- Bedrooms
- 3
- Bathrooms
- 1
- Sqft (est)
- 356.00
The heatmap indicates the level of crime in the area. The color of the heatmap indicates the crime severity and recency.
Metrics Year-on-Year
- Average area value
- 487,124.00 £Increased by 94.35 %
- Est sale value
- 219,296.00 £Increased by 112.41 %
- Average area rental value
- 1,220.00 £/moIncreased by 6.46 %
- Est letting value
- 356.00 £/moUnchanged by 0.00 %
- Est rental Yield
- 3.01 %Decreased by 45.17 %
- Crime Rate
- 3.00 %Unchanged by 0.00 %
Agent Activity
Unique Estate Agency Ltd created the listing.
Nearby Schools
| Name | Type | Ofsted | Distance |
|---|---|---|---|
| Oak Tree Children'S Centre | Children's Centre | 0.45 KM | |
| Heyhouses Endowed Church Of England Primary School | Voluntary Aided School | Good | 0.62 KM |
| Lytham St Annes Mayfield Primary School | Community School | Requires improvement | 0.71 KM |
| St Annes On Sea St Thomas' Church Of England Primary School | Voluntary Aided School | Good | 0.88 KM |
| Our Lady Star Of The Sea Catholic Primary School | Voluntary Aided School | Outstanding | 0.89 KM |
Images
Nearby Streets
| Name | Average Price | Average Sqft | Distance |
|---|---|---|---|
| Esk Street | £ 0 | 0 | 0.00 KM |
| St Patrick's Road South | £ 0 | 0 | 0.00 KM |
| Back St Patrick's Road South | £ 0 | 0 | 0.00 KM |
| Grange Road | £ 288,333 | 0 | 0.00 KM |
| Back St David's Road South | £ 0 | 0 | 0.00 KM |
Nearby Transport
| Name | NLC | TLC | Distance |
|---|---|---|---|
| St Annes-On-The-Sea | 2672 | SAS | 0.58 KM |
| Squires Gate | 2666 | SQU | 3.62 KM |
| Ansdell And Fairhaven | 2662 | AFV | 3.92 KM |
| Blackpool Pleasure Beach | 2738 | BPB | 4.72 KM |
| Blackpool South | 2740 | BPS | 5.38 KM |
Nearby Listings
| Address | Price | Type | Score | Distance |
|---|---|---|---|---|
| Eldon Court, Lytham St. Annes | £ 89,950 | BUY | 7 / 10 | 0.00 KM |
| Eldon Court, Lytham St. Annes, FY8 | £ 89,950 | BUY | 6 / 10 | 0.00 KM |
| Eldon Court, Lytham St. Annes, Lancashire, FY8 2BH | £ 80,000 | BUY | 5 / 10 | 0.02 KM |
| Eldon Court, Lytham St. Annes, Lancashire | £ 80,000 | BUY | 5 / 10 | 0.08 KM |
| Glen Eldon Road, Lytham St. Annes, Lancashire | £ 325,000 | BUY | 7 / 10 | 0.10 KM |
Nearby Properties
| Address | Price | Distance |
|---|---|---|
| 13 Eldon Court | £ 95,000 | 0.02 KM |
| 11 Eldon Court | £ 82,000 | 0.02 KM |
| 31 Eldon Court | £ 102,000 | 0.02 KM |
| 7 Eldon Court | £ 86,000 | 0.02 KM |
| 36 Eldon Court | £ 67,000 | 0.02 KM |