Winkworth says ..
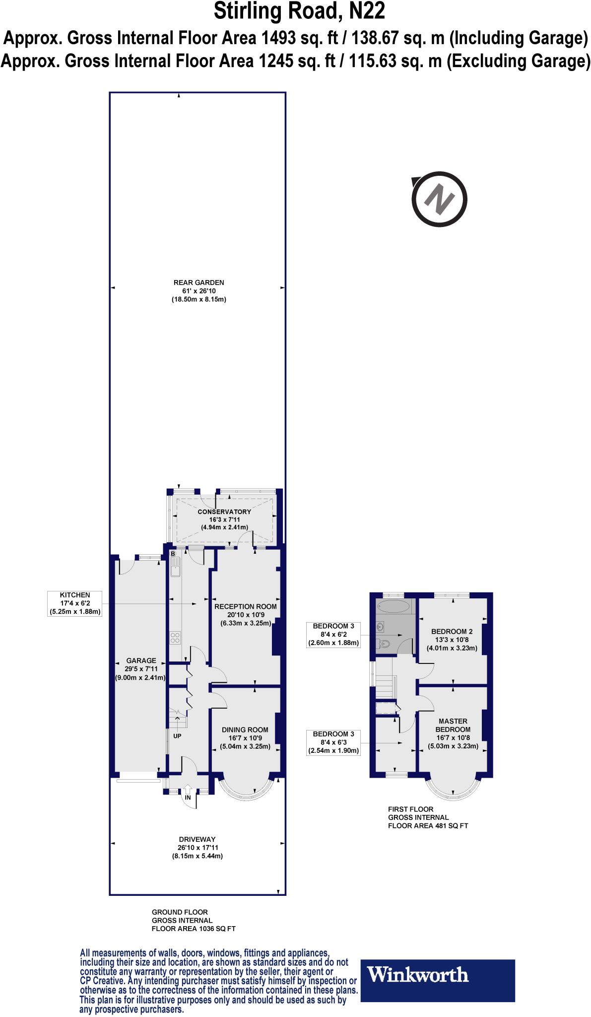
Set across two levels, this spacious three-bedroom family home boasts off-street parking, a garage, and a generously sized garden. Chain Free.
Property Oracle says ..
This property is a 3-bedroom end of terrace house located in the Woodside area of Haringey, London. The property benefits from a good-sized garden and is within close proximity to several highly-rated schools and transport links. While the property appears to be in reasonable condition, some modernisation might enhance its value. The list price is slightly above the average price per square foot for the area, but comparable properties on Stirling Road suggest it is within the expected range. The property may appeal to families due to its location and garden.
Therefore, we give this property 7 / 10. *Disclaimer: This is our option and does constitute a recommendation or financial advice. Do your own research. *
- Price
- 7
- Condition
- 7
- Location
- 9
- Land
- 8
- Bedrooms
- 3
- Bathrooms
- 1
- Sqft (est)
- 1,291.67
- Lot (est)
- 1,493.00
The heatmap indicates the level of crime in the area. The color of the heatmap indicates the crime severity and recency.
Metrics Year-on-Year
- Average area value
- 489,165.00 £Increased by 16.57 %
- Est sale value
- 804,710.41 £Increased by 28.45 %
- Average area rental value
- 1,679.00 £/moDecreased by 8.30 %
- Est letting value
- 2,583.34 £/moUnchanged by 0.00 %
- Est rental Yield
- 4.12 %Decreased by 21.37 %
- Crime Rate
- 2.00 %Unchanged by 0.00 %
Agent Activity
Winkworth created the listing.
Nearby Schools
| Name | Type | Ofsted | Distance |
|---|---|---|---|
| Woodside High School | Academy Converter | Outstanding | 0.25 KM |
| Footsteps Trust | Other Independent School | Good | 0.35 KM |
| Riverside School | Community Special School | Good | 0.41 KM |
| Noel Park Children'S Centre | Children's Centre | 0.53 KM | |
| Lordship Lane Primary School | Community School | Good | 0.60 KM |
Images
Nearby Streets
| Name | Average Price | Average Sqft | Distance |
|---|---|---|---|
| Elm Road | £ 525,000 | 0 | 0.00 KM |
| Erin Mews | £ 650,000 | 0 | 0.00 KM |
| Liberty Mews | £ 0 | 0 | 0.00 KM |
| Acacia Road | £ 0 | 0 | 0.00 KM |
| Coldham Court | £ 300,000 | 0 | 0.00 KM |
Nearby Transport
| Name | NLC | TLC | Distance |
|---|---|---|---|
| Palmers Green | 6021 | PAL | 2.17 KM |
| Hornsey | 6015 | HRN | 2.29 KM |
| Alexandra Palace | 6025 | AAP | 2.41 KM |
| Bowes Park | 6027 | BOP | 2.44 KM |
| Harringay Green Lanes | 7401 | HRY | 2.81 KM |
Nearby Listings
| Address | Price | Type | Score | Distance |
|---|---|---|---|---|
| Stirling Road, London, N22 | £ 700,000 | BUY | 7 / 10 | 0.00 KM |
| Stirling Road, London, N22 | £ 700,000 | BUY | 5 / 10 | 0.07 KM |
| Forfar Road, London, N22 | £ 750,000 | BUY | Unknown | 0.10 KM |
| Forfar Road, London, N22 | £ 600,000 | BUY | 6 / 10 | 0.11 KM |
| Perth Road, London | £ 550,000 | BUY | 5 / 10 | 0.12 KM |
Nearby Properties
| Address | Price | Distance |
|---|---|---|
| 99 Stirling Road | £ 315,000 | 0.01 KM |
| 97 Stirling Road | £ 785,000 | 0.01 KM |
| 85 Stirling Road | £ 565,000 | 0.01 KM |
| 117 Stirling Road | £ 89,500 | 0.01 KM |
| 81 Stirling Road | £ 96,000 | 0.01 KM |