Ben Rose says ..
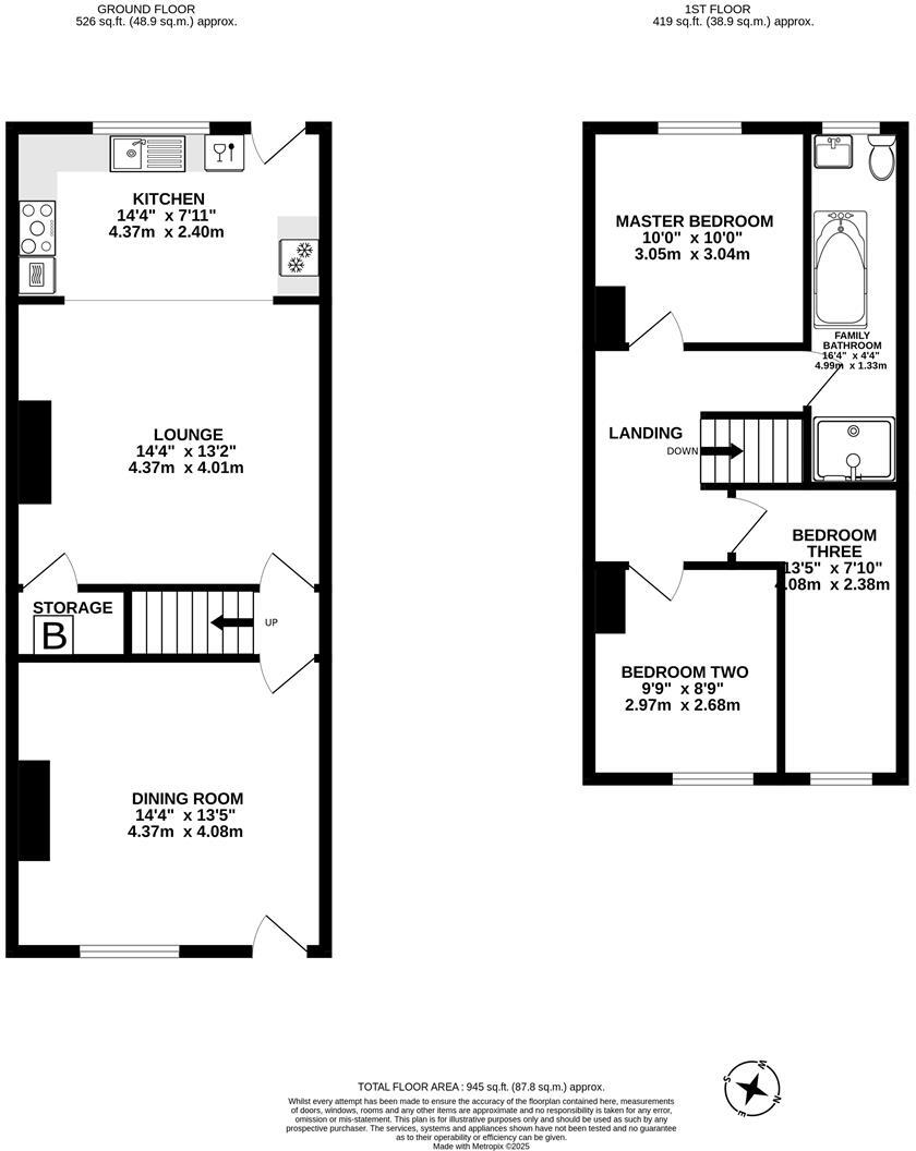
Ben Rose Estate Agents are pleased to present to market this beautifully presented three-bedroom end-terrace home, which has been recently decorated, located in the highly sought-after village of Withnell, Lancashire. This charming property offers an ideal blend of modern style and character, per...
Property Oracle says ..
This is a well-presented, modern end-of-terrace property located in a popular residential area of Withnell, Chorley. The property benefits from a modern kitchen and bathroom, a good-sized garden, and is within walking distance of an ‘Outstanding’ primary school. The property is reasonably priced compared to other properties in the area.
Therefore, we give this property 7 / 10. *Disclaimer: This is our option and does constitute a recommendation or financial advice. Do your own research. *
- Price
- 7
- Condition
- 8
- Location
- 7
- Land
- 6
- Bedrooms
- 3
- Bathrooms
- 1
- Sqft (est)
- 781.00
The heatmap indicates the level of crime in the area. The color of the heatmap indicates the crime severity and recency.
Metrics Year-on-Year
- Average area value
- 445,205.00 £Decreased by 3.69 %
- Est sale value
- 503,745.00 £Increased by 20.34 %
- Average area rental value
- 1,836.00 £/moIncreased by 4.79 %
- Est letting value
- 1,562.00 £/moUnchanged by 0.00 %
- Est rental Yield
- 4.95 %Increased by 8.79 %
- Crime Rate
- 8.00 %Unchanged by 0.00 %
Agent Activity
Ben Rose created the listing.
Nearby Schools
| Name | Type | Ofsted | Distance |
|---|---|---|---|
| St Joseph'S Catholic Primary School, Withnell | Voluntary Aided School | Outstanding | 0.05 KM |
| Abbey Village Primary School | Community School | Good | 1.61 KM |
| Millfields Children'S Centre | Children's Centre | 1.80 KM | |
| Brinscall St John'S Cofe And Methodist Primary School | Voluntary Aided School | Outstanding | 1.98 KM |
| Meadow View Learning Centre | Other Independent Special School | Good | 2.04 KM |
Images
Nearby Streets
| Name | Average Price | Average Sqft | Distance |
|---|---|---|---|
| Yarrow Close | £ 359,995 | 0 | 0.00 KM |
| Lower Bank Street | £ 0 | 0 | 0.00 KM |
| Twistmoor Lane | £ 0 | 0 | 0.00 KM |
| New Street | £ 159,995 | 0 | 0.00 KM |
| Well Lane | £ 0 | 0 | 0.00 KM |
Nearby Transport
| Name | NLC | TLC | Distance |
|---|---|---|---|
| Pleasington | 2752 | PLS | 4.31 KM |
| Cherry Tree | 2573 | CYT | 6.11 KM |
| Mill Hill (Lancs) | 2750 | MLH | 7.71 KM |
| Chorley | 2745 | CRL | 8.92 KM |
Nearby Listings
| Address | Price | Type | Score | Distance |
|---|---|---|---|---|
| Bury Lane, Withnell, Chorley | £ 225,000 | BUY | 7 / 10 | 0.00 KM |
| Bury Lane, Withnell, PR6 | £ 229,995 | BUY | Unknown | 0.00 KM |
| Fellstone Vale, Withnell, Chorley | £ 419,995 | BUY | 7 / 10 | 0.06 KM |
| Fellstone Vale, Withnell, PR6 | £ 339,995 | BUY | 7 / 10 | 0.09 KM |
| Fellstone Vale, Withnell, PR6 | £ 300,000 | BUY | Unknown | 0.09 KM |
Nearby Properties
| Address | Price | Distance |
|---|---|---|
| 54 Bury Lane | £ 150,000 | 0.05 KM |
| 45a Bury Lane | £ 215,000 | 0.05 KM |
| 23 Bury Lane | £ 125,000 | 0.05 KM |
| 53 Bury Lane | £ 203,000 | 0.05 KM |
| 40 Bury Lane | £ 165,000 | 0.05 KM |