Cliffe End Road, Huddersfield, HD3
By Simon Blyth
£ 695,000
Reviews
3 out of 5 stars
Simon Blyth says ..
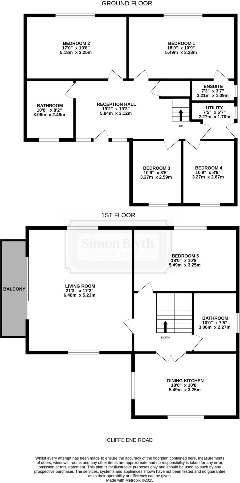
Set back from Cliffe End Road and approached down a long driveway which opens out to provide off road parking for several is this five double bedroom detached family house with inverted accommodation and magnificent south westerly views stretching down the Colne Valley.
Property Oracle says ..
This detached property is located on Cliffe End Road in Huddersfield. It features 5 bedrooms and 2 bathrooms, with a square footage of 1,729.33.
From the images, the property appears to be in good condition, with modern fixtures and fittings. The interior is well-maintained, though some may find the decor a little dated.
The property benefits from a well-maintained garden and a large driveway. The property also has a balcony.
The average price per square foot in the area is £225. The property is listed at £695,000, which equates to approximately £402 per square foot. This is significantly higher than the average for the area. However, this property is significantly larger than average.
The property is located close to several schools, including Reinwood Infant and Nursery School (Outstanding) and Reinwood Community Junior School (Good). Lockwood train station is 3.05 KM away.
Therefore, we give this property 7 / 10. *Disclaimer: This is our option and does constitute a recommendation or financial advice. Do your own research. *
- Price
- 6
- Condition
- 7
- Location
- 7
- Land
- 8
- Bedrooms
- 5
- Bathrooms
- 2
- Sqft (est)
- 1,729.33
The heatmap indicates the level of crime in the area. The color of the heatmap indicates the crime severity and recency.
Metrics Year-on-Year
- Average area value
- 217,722.00 £Decreased by 2.66 %
- Est sale value
- 428,873.84 £Increased by 6.90 %
- Average area rental value
- 802.00 £/moIncreased by 8.82 %
- Est letting value
- 0.00 £/mo
- Est rental Yield
- 4.42 %Increased by 11.90 %
- Crime Rate
- 2.00 %Unchanged by 0.00 %
Agent Activity
Simon Blyth created the listing.
Nearby Schools
| Name | Type | Ofsted | Distance |
|---|---|---|---|
| Reinwood Infant And Nursery School | Community School | Outstanding | 0.62 KM |
| Reinwood Community Junior School | Community School | Good | 0.62 KM |
| Crow Lane Primary And Foundation Stage School | Foundation School | Requires improvement | 0.65 KM |
| Royds Hall, A Share Academy | Academy Sponsor Led | 0.96 KM | |
| Huddersfield Grammar School | Other Independent School | 1.35 KM |
Images
Nearby Streets
| Name | Average Price | Average Sqft | Distance |
|---|---|---|---|
| Cliff Close | £ 0 | 0 | 0.00 KM |
| Myrtle Grove | £ 0 | 0 | 0.00 KM |
| Hope Street | £ 0 | 0 | 0.00 KM |
| Douglas Avenue | £ 0 | 0 | 0.00 KM |
| John Street | £ 0 | 0 | 0.00 KM |
Nearby Transport
| Name | NLC | TLC | Distance |
|---|---|---|---|
| Lockwood | 8443 | LCK | 3.05 KM |
| Berry Brow | 8431 | BBW | 4.54 KM |
| Huddersfield | 8437 | HUD | 4.56 KM |
| Honley | 8436 | HOY | 6.51 KM |
| Slaithwaite | 8450 | SWT | 6.64 KM |
Nearby Listings
| Address | Price | Type | Score | Distance |
|---|---|---|---|---|
| Cliffe End Road, Huddersfield, HD3 | £ 695,000 | BUY | 7 / 10 | 0.00 KM |
| Cliffe End Road, Quarmby, Huddersfield, HD3 | £ 600,000 | BUY | 6 / 10 | 0.01 KM |
| Cliffe End Road, Huddersfield, HD3 | £ 139,950 | BUY | 6 / 10 | 0.09 KM |
| Quarmby Road, Quarmby, Huddersfield, HD3 | £ 145,000 | BUY | 4 / 10 | 0.11 KM |
| Cliffe End Road, Huddersfield | £ 350,000 | BUY | 7 / 10 | 0.11 KM |
Nearby Properties
| Address | Price | Distance |
|---|---|---|
| 3 Cliffe End Road | £ 124,000 | 0.05 KM |
| 16 Cliffe End Road | £ 295,000 | 0.05 KM |
| 1 Cliffe Close | £ 150,000 | 0.07 KM |
| 5 Cliffe Close | £ 205,000 | 0.07 KM |
| 30 Cliffe End Road | £ 160,000 | 0.15 KM |