Winkworth says ..
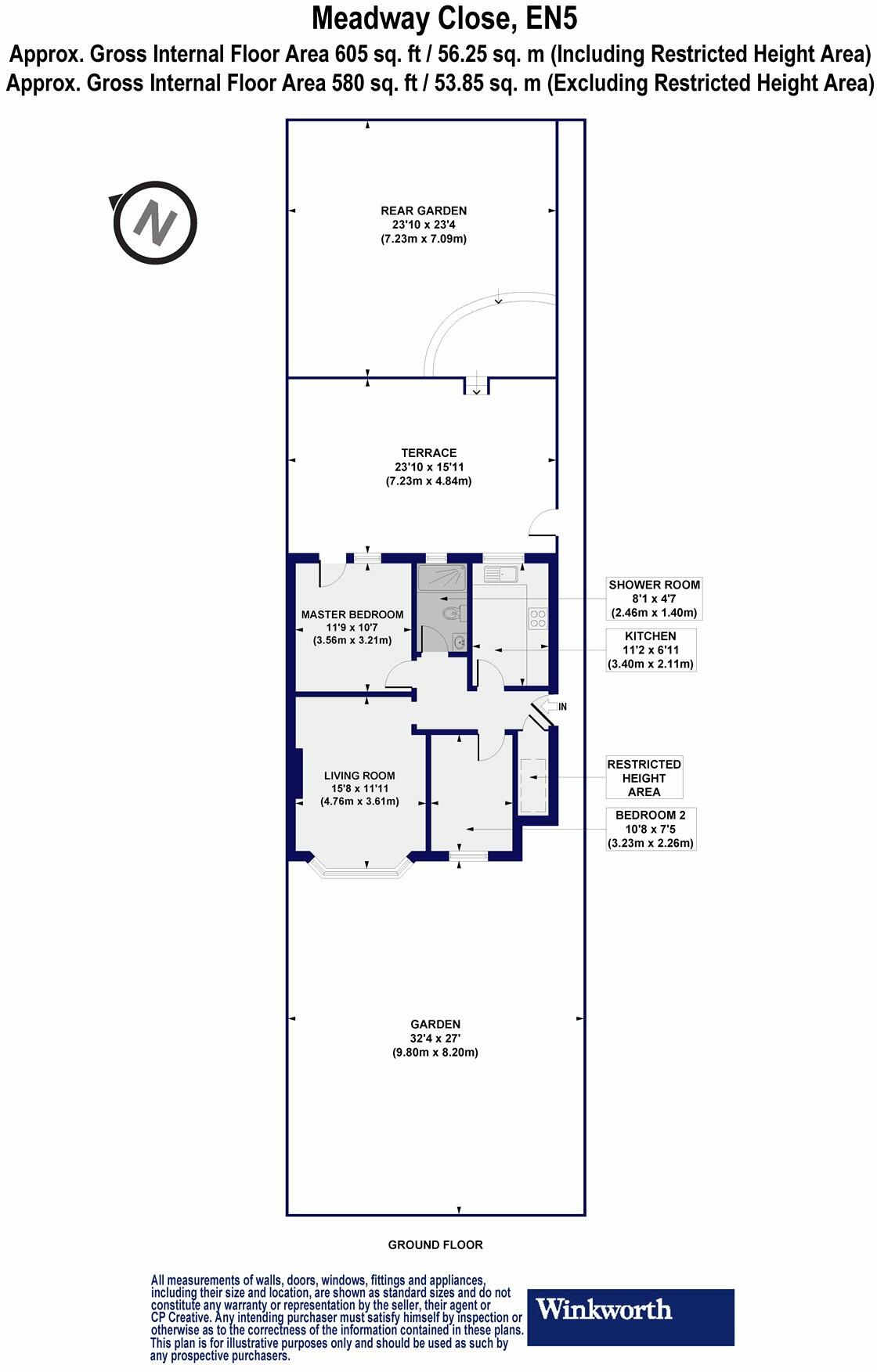
A two bedroom purpose built ground floor maisonette with direct access to its own section of garden and patio. The accommodation includes a reception/dining room, separate modern fitted kitchen two bedrooms and a shower room/wc. The property is offered in good decorative condition thr...
Property Oracle says ..
This two-bedroom maisonette in Meadway Close, New Barnet offers a blend of modern amenities and convenient location. The property boasts a recently updated kitchen and bathroom, as shown by the provided photographs, which are in a high-quality and indicative of the property’s condition. The interior appears well-maintained and presented attractively, suggesting a recent renovation or careful upkeep by the current owners. The presence of a patio and garden enhances the property’s appeal, although the exact dimensions are not available in the supplied information. The location benefits from relatively easy access to High Barnet tube station, offering convenient travel connections. Moreover, proximity to several highly-rated schools is an additional advantage for families. Nevertheless, the provided information does not cover all details necessary for a comprehensive analysis such as energy efficiency ratings, potential structural issues and the lease details for this maisonette, if applicable. Further investigation of the property’s age, leasehold information, and details on potential maintenance costs will be important before purchasing. The listed price of £430,000 appears to be competitive considering the features and location, but a more precise analysis would benefit from additional data on square footage and property comparisons of similar types. Buyers should conduct thorough due diligence before making an offer.
Therefore, we give this property 7 / 10. *Disclaimer: This is our option and does constitute a recommendation or financial advice. Do your own research. *
- Price
- 7
- Condition
- 8
- Location
- 7
- Land
- 6
- Bedrooms
- 2
- Bathrooms
- 1
- Sqft (est)
- 605.47
The heatmap indicates the level of crime in the area. The color of the heatmap indicates the crime severity and recency.
Metrics Year-on-Year
- Average area value
- 677,122.00 £Decreased by 28.61 %
- Est sale value
- 326,953.80 £Decreased by 27.71 %
- Average area rental value
- 5,020.00 £/moIncreased by 76.26 %
- Est letting value
- 2,421.88 £/moIncreased by 100.00 %
- Est rental Yield
- 8.90 %Increased by 147.22 %
- Crime Rate
- 2.00 %Unchanged by 0.00 %
Agent Activity
Winkworth created the listing.
Nearby Schools
| Name | Type | Ofsted | Distance |
|---|---|---|---|
| St Catherine'S Rc School | Voluntary Aided School | Outstanding | 0.50 KM |
| Queen Elizabeth'S Girls' School | Academy Converter | Good | 0.53 KM |
| Ark Pioneer Academy | Free Schools | 0.75 KM | |
| Susi Earnshaw Theatre School | Other Independent School | 0.86 KM | |
| Barnet And Southgate College | Further Education | Requires improvement | 0.92 KM |
Images
Nearby Streets
| Name | Average Price | Average Sqft | Distance |
|---|---|---|---|
| Underhill | £ 325,000 | 0 | 0.00 KM |
| Lion Yard | £ 0 | 0 | 0.00 KM |
| Vincent Close | £ 0 | 0 | 0.00 KM |
| Finch Close | £ 0 | 0 | 0.00 KM |
| Hermes Close | £ 0 | 0 | 0.00 KM |
Nearby Transport
| Name | NLC | TLC | Distance |
|---|---|---|---|
| New Barnet | 6018 | NBA | 2.18 KM |
| Hadley Wood | 6075 | HDW | 2.47 KM |
| Oakleigh Park | 6020 | OKL | 3.34 KM |
| Potters Bar | 6022 | PBR | 4.91 KM |
| New Southgate | 6019 | NSG | 6.95 KM |
Nearby Listings
| Address | Price | Type | Score | Distance |
|---|---|---|---|---|
| Meadway Close, New Barnet, EN5 | £ 430,000 | BUY | 7 / 10 | 0.00 KM |
| Meadway Close, Barnet, EN5 | £ 400,000 | BUY | Unknown | 0.07 KM |
| Meadway Close, Barnet, EN5 | £ 390,000 | BUY | 8 / 10 | 0.07 KM |
| Meadway Close, Barnet, EN5 | £ 385,000 | BUY | 7 / 10 | 0.07 KM |
| Meadway, Barnet, EN5 | £ 750,000 | BUY | 5 / 10 | 0.16 KM |
Nearby Properties
| Address | Price | Distance |
|---|---|---|
| 27 Meadway Close | £ 390,000 | 0.07 KM |
| 25 Meadway Close | £ 385,000 | 0.07 KM |
| 11 Meadway Close | £ 232,500 | 0.07 KM |
| 21 Meadway Close | £ 77,100 | 0.07 KM |
| 13 Meadway Close | £ 315,000 | 0.07 KM |