Rice & Roman says ..
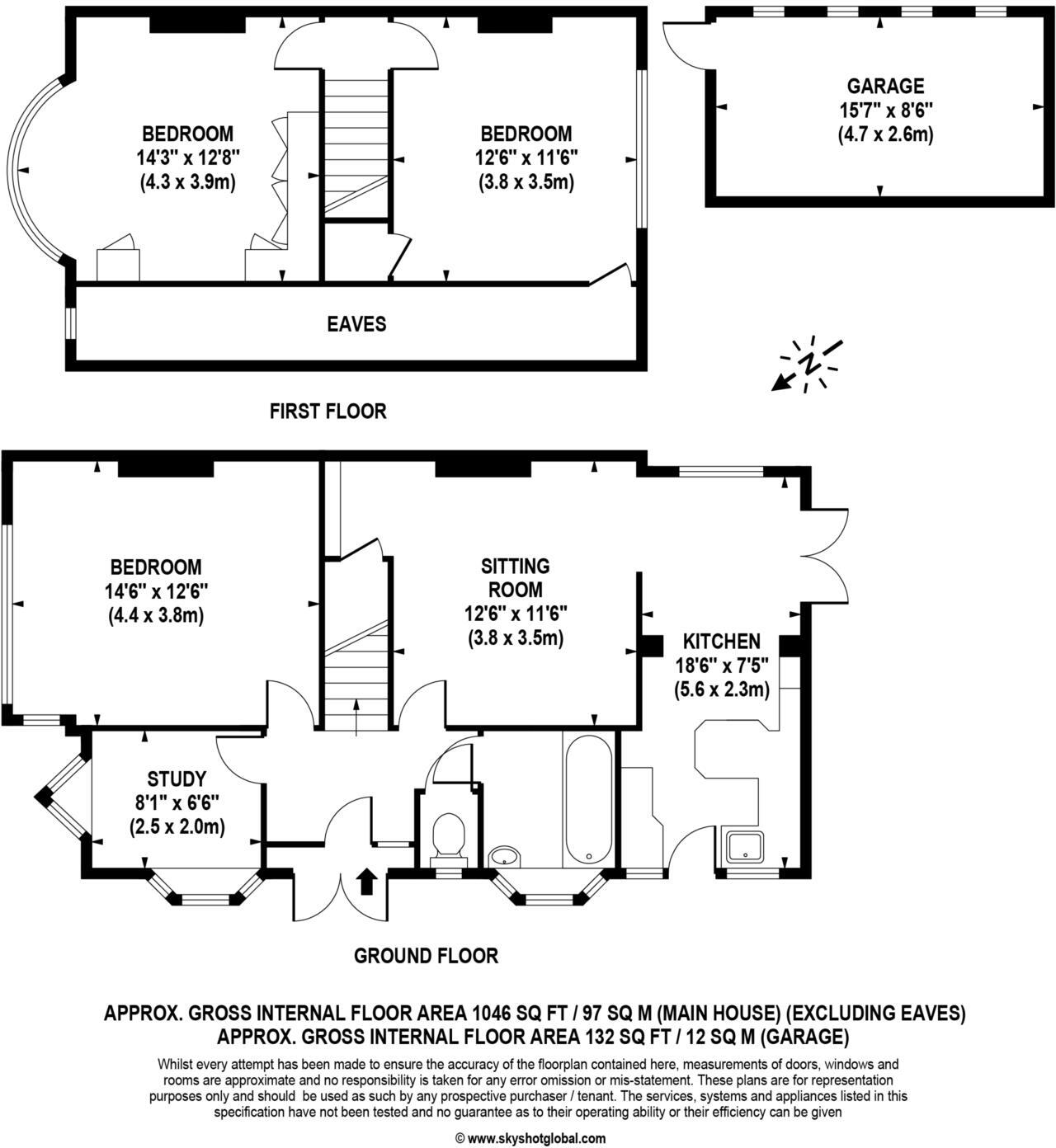
** Open House Saturday 31st of May** A two/three bedroom semi detached chalet style house with detached garage, pretty rear garden and in need of modernisation and offering potential to extend, subject to the necessary constraints.
Property Oracle says ..
Therefore, we give this property 7 / 10. *Disclaimer: This is our option and does constitute a recommendation or financial advice. Do your own research. *
- Price
- 7
- Condition
- 7
- Location
- 7
- Land
- 8
- Bedrooms
- 3
- Bathrooms
- 1
- Sqft (est)
- 1,044.10
The heatmap indicates the level of crime in the area. The color of the heatmap indicates the crime severity and recency.
Metrics Year-on-Year
- Average area value
- 756,667.00 £Increased by 25.66 %
- Est sale value
- 546,064.30 £Decreased by 7.92 %
- Average area rental value
- 1,965.00 £/moDecreased by 18.40 %
- Est letting value
- 1,044.10 £/moDecreased by 50.00 %
- Est rental Yield
- 3.12 %Decreased by 35.00 %
- Crime Rate
- 1.00 %Unchanged by 0.00 %
from 602,167.00 £
from 593,048.80 £
from 2,408.00 £/mo
from 2,088.20 £/mo
from 4.80 %
from 1.00 %
Agent Activity
Rice & Roman created the listing.
Nearby Schools
| Name | Type | Ofsted | Distance |
|---|---|---|---|
| Riverview Sure Start Children'S Centre | Children's Centre | 0.42 KM | |
| Riverview Cofe Primary And Nursery School Va | Voluntary Aided School | Requires improvement | 0.44 KM |
| Linden Bridge School | Academy Special Converter | 0.89 KM | |
| West Ewell Primary School And Nursery | Academy Converter | 0.93 KM | |
| Knollmead Primary School | Academy Sponsor Led | Good | 0.97 KM |
Images
Nearby Streets
| Name | Average Price | Average Sqft | Distance |
|---|---|---|---|
| The Grange | £ 0 | 0 | 0.00 KM |
| Timbercroft | £ 700,000 | 0 | 0.00 KM |
| Cromwell Road | £ 775,000 | 0 | 0.00 KM |
| Magnolia Way | £ 300,000 | 0 | 0.00 KM |
| Riverhill Mews | £ 0 | 0 | 0.00 KM |
Nearby Transport
| Name | NLC | TLC | Distance |
|---|---|---|---|
| Tolworth | 5573 | TOL | 1.25 KM |
| Malden Manor | 5599 | MAL | 1.79 KM |
| Stoneleigh | 5606 | SNL | 2.48 KM |
| Ewell West | 5586 | EWW | 2.73 KM |
| Worcester Park | 5579 | WCP | 2.95 KM |
Nearby Listings
| Address | Price | Type | Score | Distance |
|---|---|---|---|---|
| Kingston Road, Epsom | £ 500,000 | BUY | 7 / 10 | 0.00 KM |
| Kingston Road, Ewell | £ 675,000 | BUY | 6 / 10 | 0.13 KM |
| Riverview Road, Epsom, Surrey, KT19 | £ 525,000 | BUY | 7 / 10 | 0.14 KM |
| RIVERVIEW ROAD, WEST EWELL, KT19 | £ 510,000 | BUY | 6 / 10 | 0.14 KM |
| Francis Close, Ewell Court | £ 700,000 | BUY | 7 / 10 | 0.14 KM |
Nearby Properties
| Address | Price | Distance |
|---|---|---|
| 533 Kingston Road | £ 430,000 | 0.01 KM |
| 531 Kingston Road | £ 291,000 | 0.01 KM |
| 515 Kingston Road | £ 290,000 | 0.01 KM |
| 509 Kingston Road | £ 399,950 | 0.01 KM |
| 501 Kingston Road | £ 315,000 | 0.01 KM |