Manor Park, NEWBRIDGE, NP114RS
By Cariad Property
£ 325,000
Reviews
3 out of 5 stars
Cariad Property says ..
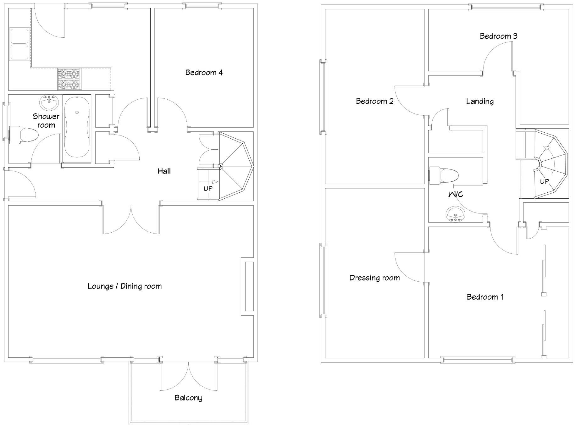
WOW SIMPLY GORGEOUS DORMA BUNGALOW, three/four bedrooms, two WCs, modern and superbly presented, fitted kitchen, dressing room, incredibly large grounds, balcony with lovely views, driveway and garage, no chain.
Property Oracle says ..
This property is located in Manor Park, Newbridge, a residential area in Caerphilly County Borough, South Wales. The area benefits from relatively close proximity to Newbridge train station, offering convenient access to Cardiff and other parts of South Wales. Several primary and secondary schools are within a reasonable distance, making it potentially attractive to families. While the provided images show the property to be in good condition, with recently updated bathrooms and kitchen, and a generally well-maintained interior, the exterior and garden appear to be in need of some landscaping and tidying. The list price of £325,000 is higher than the average house price in the area (£226,000), but comparable to other similar properties in the immediate vicinity. Given the apparent recent renovations and the relatively desirable location, the price may be justified, however a professional valuation would be recommended to confirm this.
Therefore, we give this property 7 / 10. *Disclaimer: This is our option and does constitute a recommendation or financial advice. Do your own research. *
- Price
- 7
- Condition
- 8
- Location
- 7
- Land
- 6
- Bedrooms
- 4
- Bathrooms
- 2
The heatmap indicates the level of crime in the area. The color of the heatmap indicates the crime severity and recency.
Metrics Year-on-Year
- Average area value
- 219,115.00 £Increased by 18.08 %
- Average area rental value
- 1,500.00 £/moIncreased by 50.30 %
- Est rental Yield
- 8.21 %Increased by 27.29 %
- Crime Rate
- 2.00 %Unchanged by 0.00 %
Agent Activity
Cariad Property created the listing.
Nearby Schools
| Name | Type | Ofsted | Distance |
|---|---|---|---|
| Tynewydd Primary School | Welsh Establishment | 0.35 KM | |
| Crumlin High Level Primary School | Welsh Establishment | 0.40 KM | |
| Newbridge School | Welsh Establishment | 1.00 KM | |
| Pantside Primary School | Welsh Establishment | 1.08 KM | |
| Sofrydd C.P. School | Welsh Establishment | 2.16 KM |
Images
Nearby Streets
| Name | Average Price | Average Sqft | Distance |
|---|---|---|---|
| Oakland Terrace | £ 0 | 0 | 0.00 KM |
| Park Road | £ 270,000 | 0 | 0.00 KM |
| Pen-y-Lan Terrace | £ 260,000 | 0 | 0.00 KM |
| Hillside | £ 120,000 | 0 | 0.00 KM |
| Yewtree Road | £ 0 | 0 | 0.00 KM |
Nearby Transport
| Name | NLC | TLC | Distance |
|---|---|---|---|
| Newbridge | 9919 | NBE | 0.84 KM |
| Llanhilleth | 9916 | LTH | 3.15 KM |
| Crosskeys | 9902 | CKY | 6.14 KM |
| Gilfach Fargoed | 4022 | GFF | 9.23 KM |
| Hengoed | 4028 | HNG | 9.33 KM |
Nearby Listings
| Address | Price | Type | Score | Distance |
|---|---|---|---|---|
| Manor Park, NEWBRIDGE, NP114RS | £ 325,000 | BUY | 7 / 10 | 0.00 KM |
| Manor Park, Newbridge, NP11 | £ 209,950 | BUY | 5 / 10 | 0.00 KM |
| Manor Park, Newbridge, Newport | £ 350,000 | BUY | 7 / 10 | 0.02 KM |
| Manor Park, Newbridge, Newport | £ 210,000 | BUY | 6 / 10 | 0.06 KM |
| Manor Park, Newbridge, NP11 | £ 349,950 | BUY | 6 / 10 | 0.07 KM |
Nearby Properties
| Address | Price | Distance |
|---|---|---|
| 53 Manor Park | £ 215,000 | 0.07 KM |
| 47 Manor Park | £ 155,000 | 0.07 KM |
| 56 Manor Park | £ 132,000 | 0.07 KM |
| 44 Manor Park | £ 211,000 | 0.07 KM |
| 34 Manor Park | £ 205,000 | 0.07 KM |