eXp UK says ..
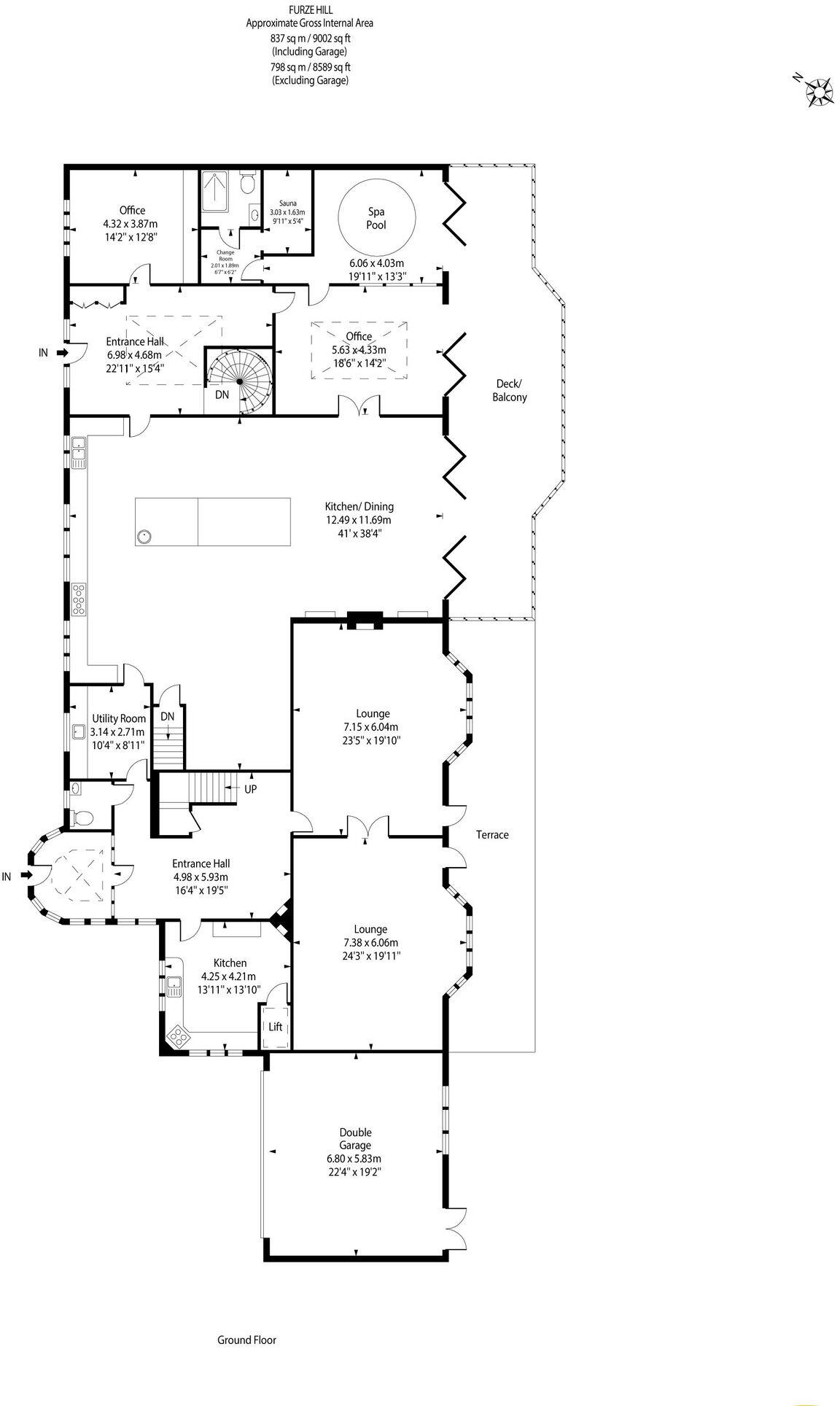
Chain free and spanning over 9,000 sq ft, this remarkable home combines grand entertaining spaces with indulgent lifestyle features, offering seven bedrooms, five bathrooms, a showpiece 41ft kitchen diner with a second kitchen, lift access, two home offices and a private spa retreat with indoo...
Property Oracle says ..
This is a substantial detached property located in the desirable Webb Estate in Purley. The house has seven bedrooms and five bathrooms. The property is in excellent condition, with modern fixtures and fittings throughout. It also benefits from a large garden with mature trees, a pond, and a large patio area. The property includes a gym, sauna, basement, and parking. The list price is high compared to the average property price in the area, but this is a large, well-maintained property in a sought-after location.
Therefore, we give this property 8 / 10. *Disclaimer: This is our option and does constitute a recommendation or financial advice. Do your own research. *
- Price
- 6
- Condition
- 9
- Location
- 8
- Land
- 9
- Bedrooms
- 7
- Bathrooms
- 5
The heatmap indicates the level of crime in the area. The color of the heatmap indicates the crime severity and recency.
Metrics Year-on-Year
- Average area value
- 616,068.00 £Decreased by 0.97 %
- Average area rental value
- 1,898.00 £/moDecreased by 5.95 %
- Est rental Yield
- 3.70 %Decreased by 4.88 %
- Crime Rate
- 2.00 %Unchanged by 0.00 %
Agent Activity
eXp UK created the listing.
Nearby Schools
| Name | Type | Ofsted | Distance |
|---|---|---|---|
| St David'S School | Other Independent School | 0.38 KM | |
| Thomas More Catholic School | Voluntary Aided School | Good | 0.88 KM |
| Margaret Roper Catholic Primary School | Voluntary Aided School | Good | 0.88 KM |
| Laleham Lea School | Other Independent School | 0.89 KM | |
| The John Fisher School | Voluntary Aided School | Good | 1.11 KM |
Images
Nearby Streets
| Name | Average Price | Average Sqft | Distance |
|---|---|---|---|
| Hill Road | £ 0 | 0 | 0.00 KM |
| Fire Station Cottages | £ 279,995 | 0 | 0.00 KM |
| Church Hill | £ 562,500 | 0 | 0.00 KM |
| Church Road | £ 0 | 0 | 0.00 KM |
| Purley Road | £ 350,000 | 0 | 0.00 KM |
Nearby Transport
| Name | NLC | TLC | Distance |
|---|---|---|---|
| Reedham (London) | 5431 | RHM | 0.93 KM |
| Purley | 5379 | PUR | 1.36 KM |
| Coulsdon Town | 5382 | CDN | 2.10 KM |
| Coulsdon South | 5408 | CDS | 2.88 KM |
| Riddlesdown | 5432 | RDD | 3.06 KM |
Nearby Listings
| Address | Price | Type | Score | Distance |
|---|---|---|---|---|
| Webb Estate, Purley, Surrey | £ 4,000,000 | BUY | 8 / 10 | 0.00 KM |
| Webb Estate, Purley, Surrey | £ 3,750,000 | BUY | 8 / 10 | 0.00 KM |
| Webb Estate, Purley, Surrey | £ 2,450,000 | BUY | 8 / 10 | 0.07 KM |
| Webb Estate, Purley, Surrey | £ 3,250,000 | BUY | 8 / 10 | 0.12 KM |
| Furze Hill, Purley, CR8 | £ 2,900,000 | BUY | 8 / 10 | 0.13 KM |
Nearby Properties
| Address | Price | Distance |
|---|---|---|
| 11 Furze Hill | £ 4,225,000 | 0.01 KM |
| 3a Furze Hill | £ 875,000 | 0.01 KM |
| 1a Furze Hill | £ 825,000 | 0.01 KM |
| 5b Furze Hill | £ 1,500,000 | 0.01 KM |
| 15 Furze Hill | £ 1,680,000 | 0.01 KM |