MC
67(A) Arundel Road, Littlehampton, BN17 7DE
By McHugh & Co
£ 40,000
Reviews
2 out of 5 stars
McHugh & Co says ..
LOT 71 **FOR SALE BY ONLINE AUCTION** on 17th September 2025 Leasehold Flat Vacant Possession
Property Oracle says ..
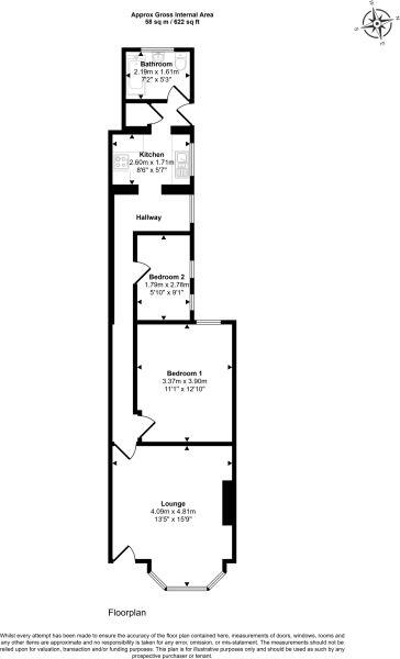
A two-bedroom flat located on Arundel Road in Littlehampton. The property is in need of renovation but is located near schools and transportation links. The listing price is significantly lower than the average property price in the area.
Therefore, we give this property 5 / 10. *Disclaimer: This is our option and does constitute a recommendation or financial advice. Do your own research. *
- Price
- 9
- Condition
- 3
- Location
- 7
- Land
- 3
- Bedrooms
- 2
- Bathrooms
- 0
- Sqft (est)
- 459.73
The heatmap indicates the level of crime in the area. The color of the heatmap indicates the crime severity and recency.
Metrics Year-on-Year
- Average area value
- 348,276.00 £Increased by 7.74 %
- Est sale value
- 162,284.69 £Unchanged by 0.00 %
- Average area rental value
- 1,393.00 £/moDecreased by 3.26 %
- Est letting value
- 459.73 £/moUnchanged by 0.00 %
- Est rental Yield
- 4.80 %Decreased by 10.28 %
- Crime Rate
- 12.00 %Unchanged by 0.00 %
from 323,270.00 £
from 162,284.69 £
from 1,440.00 £/mo
from 459.73 £/mo
from 5.35 %
from 12.00 %
Agent Activity
McHugh & Co created the listing.
Nearby Schools
| Name | Type | Ofsted | Distance |
|---|---|---|---|
| River Beach Primary School | Academy Converter | Good | 0.10 KM |
| Littlehampton Children And Family Centre | Children's Centre | 0.41 KM | |
| White Meadows Primary Academy | Academy Converter | Good | 0.59 KM |
| St Catherine'S Catholic Primary School, Littlehampton | Voluntary Aided School | Requires improvement | 0.67 KM |
| The Littlehampton Academy | Academy Sponsor Led | Requires improvement | 0.94 KM |
Images
Nearby Streets
| Name | Average Price | Average Sqft | Distance |
|---|---|---|---|
| Merton Drive | £ 0 | 0 | 0.00 KM |
| Madehurst Court | £ 0 | 0 | 0.00 KM |
| High Street | £ 237,375 | 0 | 0.00 KM |
| Loudoun Road | £ 0 | 0 | 0.00 KM |
| Talbot Road | £ 305,000 | 0 | 0.00 KM |
Nearby Transport
| Name | NLC | TLC | Distance |
|---|---|---|---|
| Littlehampton | 5260 | LIT | 0.37 KM |
| Arundel | 5251 | ARU | 3.98 KM |
| Ford | 5258 | FOD | 4.28 KM |
| Angmering | 5267 | ANG | 6.01 KM |
| Amberley | 5250 | AMY | 9.37 KM |
Nearby Listings
| Address | Price | Type | Score | Distance |
|---|---|---|---|---|
| Flat A, 67 Arundel Road, Littlehampton, West Sussex, BN17 7DE | £ 50,000 | BUY | 5 / 10 | 0.00 KM |
| 67(A) Arundel Road, Littlehampton, BN17 7DE | £ 40,000 | BUY | 5 / 10 | 0.00 KM |
| 67a Arundel Road, Littlehampton BN17 7DE | £ 45,000 | BUY | 5 / 10 | 0.00 KM |
| Arundel Road, Littlehampton | £ 143,950 | BUY | 6 / 10 | 0.00 KM |
| 67(A) Arundel Road, Littlehampton, BN17 7DE | £ 40,000 | BUY | 5 / 10 | 0.00 KM |
Nearby Properties
| Address | Price | Distance |
|---|---|---|
| 67c Arundel Road | £ 86,500 | 0.03 KM |
| 89 Arundel Road | £ 390,000 | 0.03 KM |
| 75 Arundel Road | £ 71,500 | 0.03 KM |
| 63a Arundel Road | £ 154,950 | 0.03 KM |
| 79 Arundel Road | £ 185,000 | 0.03 KM |