SO
Woodland Terrace, Mountain Ash, Rhondda Cynon Taf, CF45
By SOLD.CO.UK
£ 100,000
Reviews
3 out of 5 stars
SOLD.CO.UK says ..
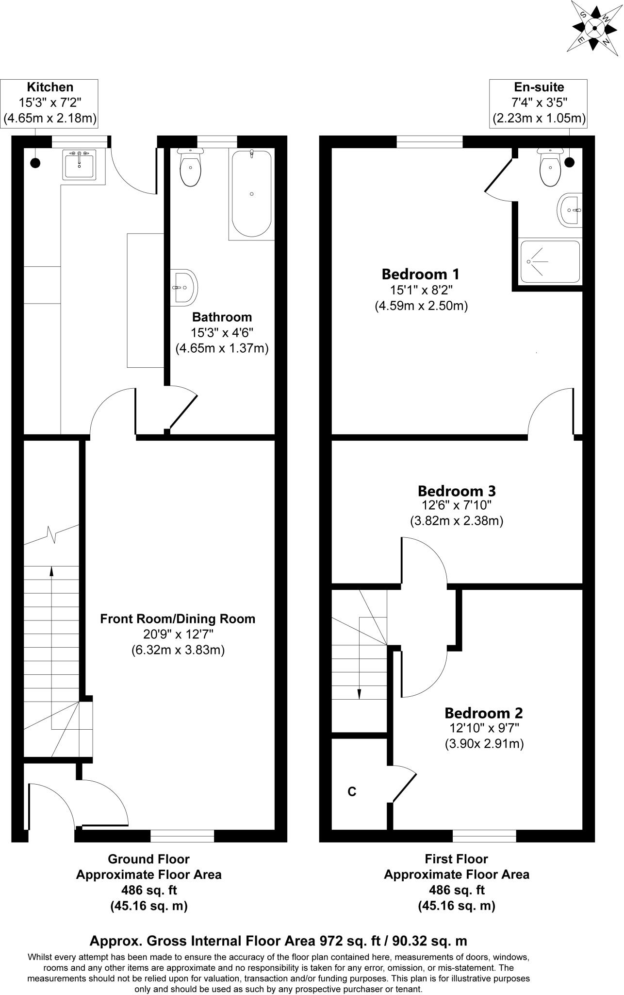
This three-bedroom terraced property on Woodland Terrace, Mountain Ash presents an excellent opportunity for buyers looking to put their personal stamp on a spacious family home. The property's layout includes a generous front room/dining room with plenty of natural light, a functiona...
Property Oracle says ..
Therefore, we give this property 6 / 10. *Disclaimer: This is our option and does constitute a recommendation or financial advice. Do your own research. *
- Price
- 8
- Condition
- 4
- Location
- 7
- Land
- 7
- Bedrooms
- 3
- Bathrooms
- 1
- Sqft (est)
- 972.20
The heatmap indicates the level of crime in the area. The color of the heatmap indicates the crime severity and recency.
Metrics Year-on-Year
- Average area value
- 242,000.00 £Decreased by 4.05 %
- Est sale value
- 228,467.00 £Increased by 10.85 %
- Average area rental value
- 437.00 £/moDecreased by 50.79 %
- Est letting value
- 0.00 £/mo
- Est rental Yield
- 2.17 %Decreased by 48.70 %
- Crime Rate
- 30.00 %Unchanged by 0.00 %
from 252,211.00 £
from 206,106.40 £
from 888.00 £/mo
from 0.00 £/mo
from 4.23 %
from 30.00 %
Agent Activity
SOLD.CO.UK created the listing.
Nearby Schools
| Name | Type | Ofsted | Distance |
|---|---|---|---|
| Darrenlas Primary School | Welsh Establishment | 0.69 KM | |
| Mountain Ash Comprehensive School | Welsh Establishment | 0.88 KM | |
| Caegarw Primary School | Welsh Establishment | 0.92 KM | |
| Our Lady'S R.C. Primary School | Welsh Establishment | 1.21 KM | |
| Miskin Primary School | Welsh Establishment | 1.28 KM |
Images
Nearby Streets
| Name | Average Price | Average Sqft | Distance |
|---|---|---|---|
| Woodland Terrace | £ 119,000 | 0 | 0.00 KM |
| High Street | £ 165,000 | 0 | 0.00 KM |
| Hamilton Street | £ 162,500 | 0 | 0.00 KM |
| Harcourt Road | £ 220,000 | 0 | 0.00 KM |
| Park Hill | £ 265,000 | 0 | 0.00 KM |
Nearby Transport
| Name | NLC | TLC | Distance |
|---|---|---|---|
| Mountain Ash | 3859 | MTA | 0.92 KM |
| Fernhill | 3862 | FER | 1.32 KM |
| Penrhiwceiber | 3992 | PER | 3.11 KM |
| Cwmbach | 3981 | CMH | 3.82 KM |
| Pentre-Bach | 3944 | PTB | 5.17 KM |
Nearby Listings
| Address | Price | Type | Score | Distance |
|---|---|---|---|---|
| Woodland Terrace, Mountain Ash | £ 135,000 | BUY | 5 / 10 | 0.00 KM |
| Woodland Terrace, Mountain Ash, Rhondda Cynon Taf, CF45 | £ 100,000 | BUY | 6 / 10 | 0.00 KM |
| Woodland Terrace, Mountain Ash, CF45 3RF | £ 135,000 | BUY | 7 / 10 | 0.06 KM |
| Lyle Street, Mountain Ash | £ 125,000 | BUY | 6 / 10 | 0.07 KM |
| Woodland Street, Mountain Ash, CF45 3RE | £ 115,000 | BUY | Unknown | 0.09 KM |
Nearby Properties
| Address | Price | Distance |
|---|---|---|
| 24 Woodland Terrace | £ 116,000 | 0.03 KM |
| 8 Woodland Terrace | £ 36,500 | 0.03 KM |
| 14 Woodland Terrace | £ 79,000 | 0.03 KM |
| 15 Woodland Terrace | £ 41,500 | 0.03 KM |
| 30 Woodland Terrace | £ 89,995 | 0.04 KM |